Prodej pozemku pro bydlení, Chlumec nad Cidlinou - Kladruby, 1449 m2
Chlumec nad Cidlinou, Kladruby
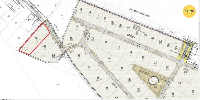
Popis
Hledáte stavební pozemek s dostatečným místem kolem svého budoucího domu? Nabízíme Vám ke koupi parcelu s výměrou 1449 m2 v projektu rodinné zástavby v Chlumci nad Cidlinou s výhledem na zámek. Inženýrské sítě jako přípojka elektrické energie s hodnotou jištění 25A, přípojka splaškové kanalizace, přípojku pitné vody jsou zakončeny na hranici pozemku. Každá nově vzniklá stavba bude mít možnost napojení na optickou síť pro připojení internetu a datových služeb. K pozemkům jsou vybudovány sjezdy z vnitřní sítě příjezdových komunikací.
Máte zájem o tuto nemovitost?
Pomůžeme Vám!
Kontakt
 
                        Michal Orliv
Přihlášení k odběru
Nenechte si ujít nejnovější nabídky prodeje pozemků pro bydlení v Chlumci nad Cidlinou.
Tipy Realitymatu
 
                                                                                     
                                                                                     
                                                                                     
                                                                                     
                                                                                     
                                             
                                 
         
         
         
         
        