Prodej rodinného domu, Hustopeče, Hradní, 282 m2
Hradní, Hustopeče
Popis
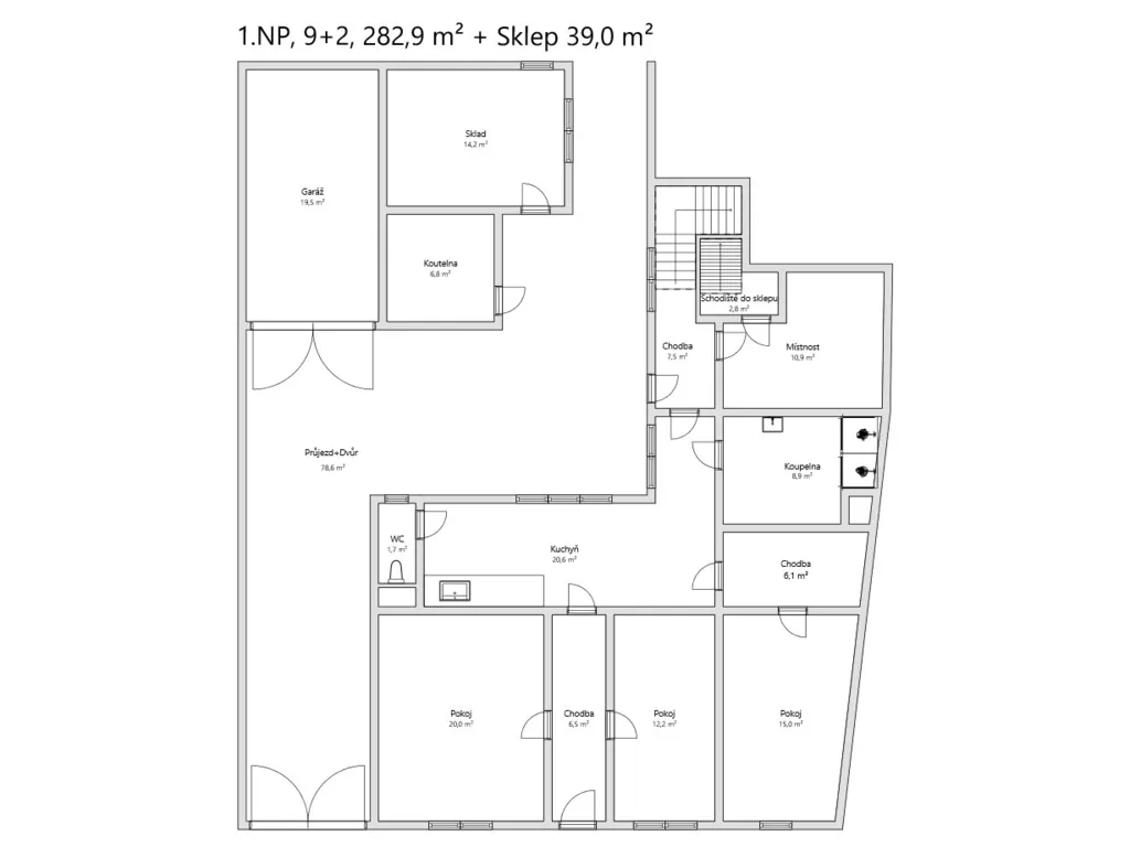
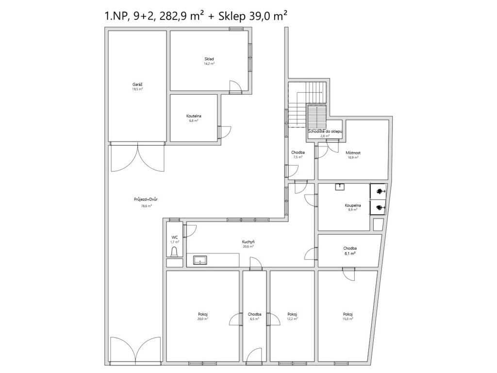
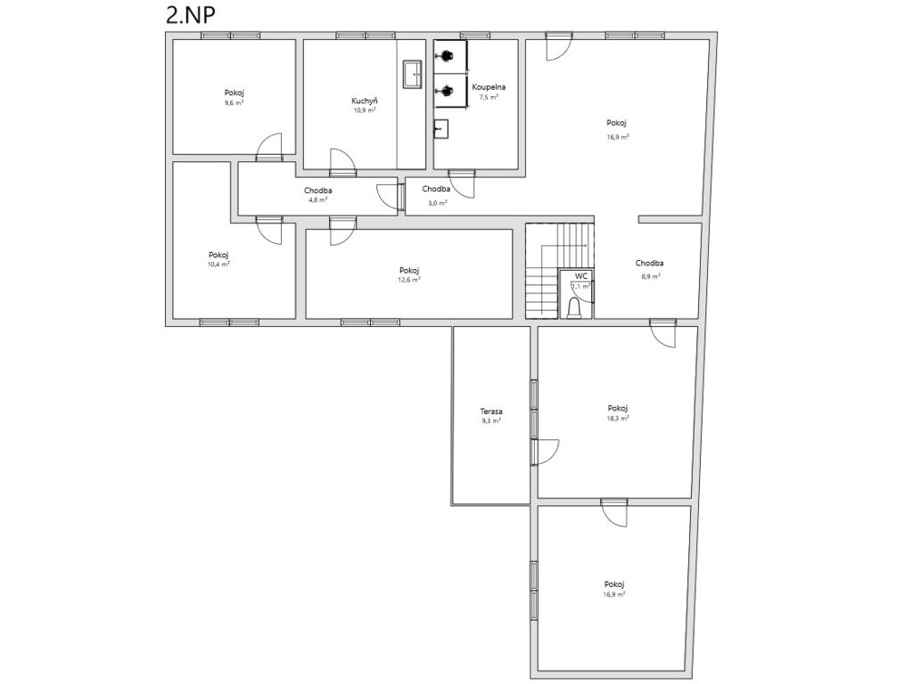
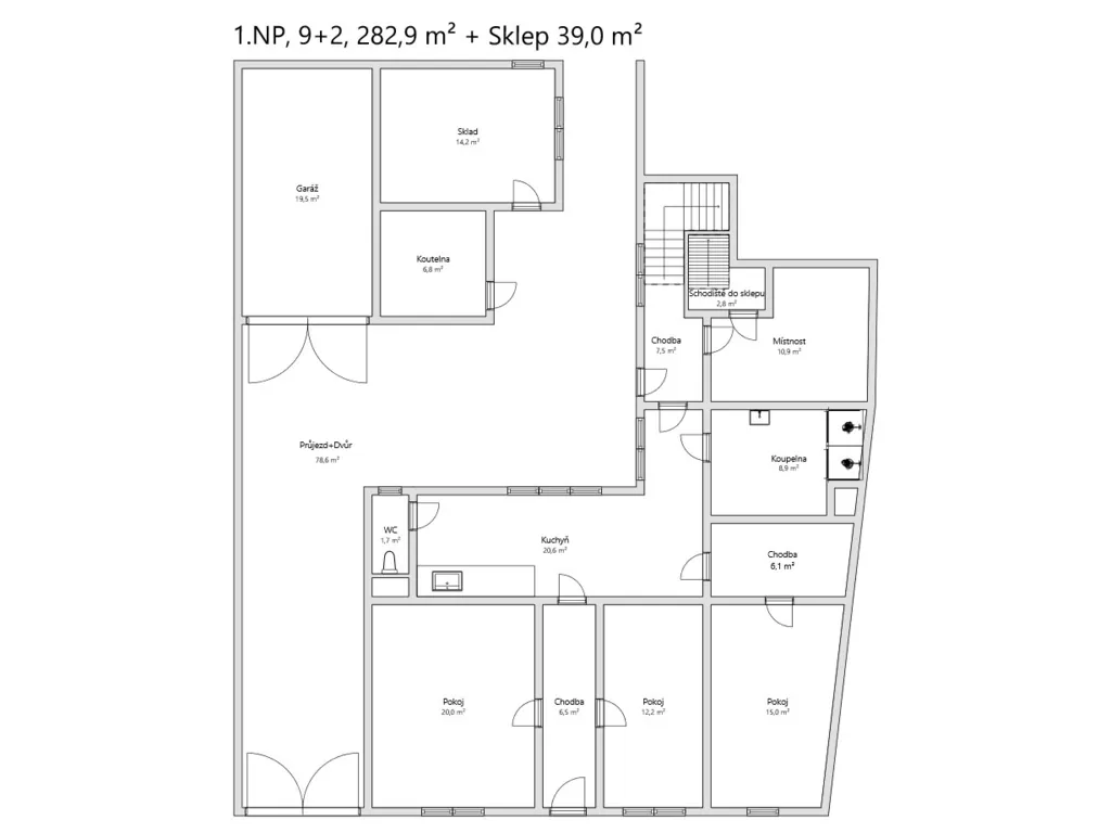
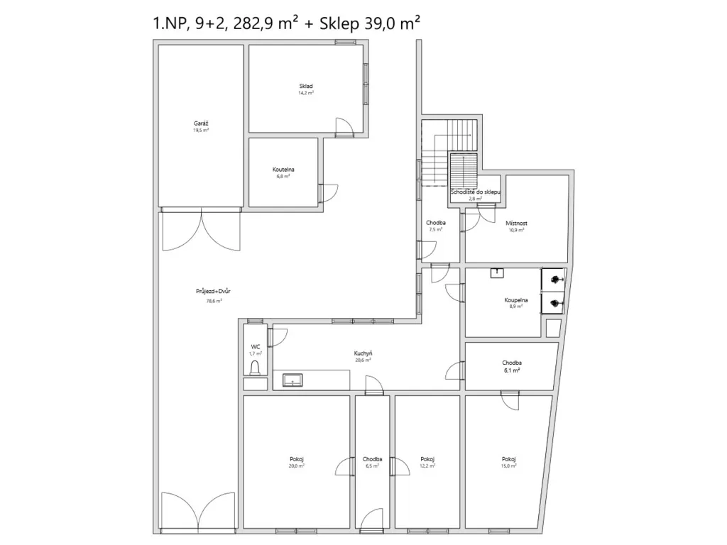
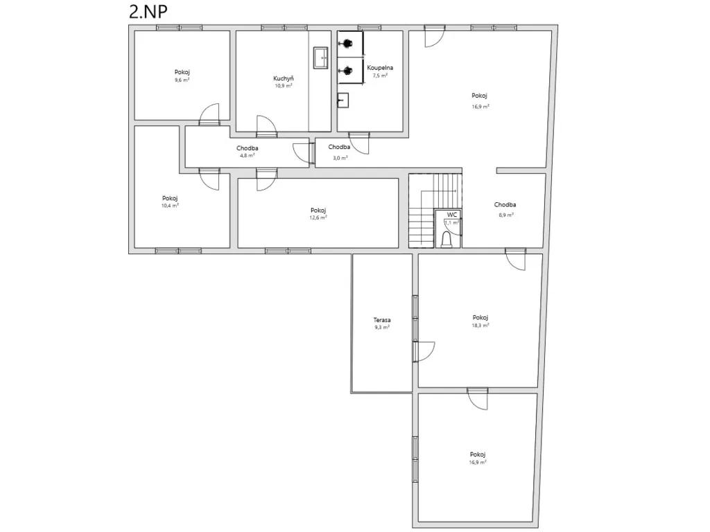
Pokud hledáte prostorný rodinný dům s velkým pozemkem, kde si můžete vše zařídit podle svých představ, pak vás tato nabídka jistě zaujme. Na adrese Hradní se nachází řadový rodinný dům o velkorysé dispozici 9+2, který nabízí skutečně široké možnosti využití.
Dům je určen ke kompletní rekonstrukci, což je velkou výhodou pro ty, kteří chtějí vytvořit originální bydlení na míru – přesně takové, jaké bude odpovídat potřebám celé rodiny. Díky dvěma samostatným bytovým jednotkám se zde pohodlně může usídlit i dvougenerační rodina, která ocení dostatek soukromí i prostoru pro společná rodinná setkání. Stejně tak ale můžete jednu část domu využít například k podnikání – ideální řešení pro ty, kdo chtějí skloubit práci a domov pod jednou střechou.
Velkým benefitem je rozlehlý pozemek, který nabízí dostatek místa pro relaxaci, dětské hry, zahradničení nebo třeba venkovní posezení s přáteli. Vše si tu snadno přetvoříte na bezpečné rodinné zázemí, kde budou děti vyrůstat v klidném prostředí, a přitom zůstanete na dosah veškeré občanské vybavenosti.
Samozřejmostí je napojení na všechny inženýrské sítě – elektřinu, plyn, kanalizaci i vodovod. Díky klidné ulici Hradní a dobré dostupnosti do centra i okolí se jedná o ideální místo pro rodinný život s dětmi, které budou mít vše potřebné doslova na dosah: školy, školky, obchody i hřiště.
Pokud tedy hledáte dům s velkým potenciálem, kde můžete spojit rodinné bydlení s podnikáním, případně vybudovat komfortní dvougenerační domov, pak vás tato nemovitost rozhodně nezklame. Ráda vás vezmu na prohlídku a ukážu vám všechno osobně.
Hustopeče jsou oblíbené město ležící v srdci vinařského kraje, které nabízí ideální kombinaci klidného bydlení a skvělé dopravní dostupnosti. Díky rychlému napojení na dálnici D2 se pohodlně dostanete do Brna za pouhých 25 minut, což ocení nejen rodiny s dětmi, ale i ti, kteří dojíždějí za prací. Město disponuje kompletní občanskou vybaveností — najdete zde školy, školky, obchody, zdravotní služby, sportoviště i množství příležitostí pro volnočasové aktivity. Nechybí ani krásná příroda, vinice a cyklostezky v okolí. Hustopeče tak spojují pohodlí menšího města s výhodami rychlého spojení do větších center.
Máte zájem o tuto nemovitost?

Na Pankráci 322/26, Praha
Pomůžeme Vám!
Pomůžeme Vám!
Kontakt

Kamila Heděncová
Přihlášení k odběru
Nenechte si ujít nejnovější nabídky prodeje rodinných domů v Hustopečích.
Tipy Realitymatu
Podobné nabídky

Prodej rodinného domu, Hustopeče, Herbenova, 437 m2
14 990 000 Kč

Prodej rodinného domu, Hustopeče, Na Hradbách, 130 m2
10 990 000 Kč

Prodej rodinného domu, Hustopeče, Hradní, 250 m2
6 900 000 Kč

Prodej rodinného domu, Kašnice, 235 m2
11 490 000 Kč