Prodej rodinného domu, Pardubice, 142 m2 (ID: 1862861)

Pardubice, Drozdice


1 830 000 Kč /za nemovitost
HYPOTÉKA od 8 179 Kč /měs.
Regionální dodavatelé v Pardubicích

Popis

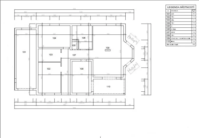
K prodeji nabízíme prostorný rodinný dům ve fázi výstavby, situovaný v klidné části obce Drozdice. Jednopodlažní dům postavený z ytongu je navržen v dispozici 4+kk a poskytuje pohodlné bydlení pro celou rodinu. Vstupní zádveří (4,46 m²) navazuje na technickou místnost (1,2 m²) a prostornou chodbu (10,29 m²). Dále zde najdete pokoj (16,95 m²), praktickou šatnu (7,02 m²), pracovnu (17,12 m²) i komfortní ložnici (16,6 m²). Srdcem domu je prostorný obývací pokoj (30,48 m²) propojený s kuchyní (8,3 m²) a spíží (2,2 m²). K dispozici je rovněž koupelna (8,9 m²) a samostatné WC (1,26 m²).
Pozemek má celkovou rozlohu 424 m², zastavěná plocha činí 155 m². Přípojky elektřiny, plynu a vody se nacházejí na hranici pozemku. Lokalita nabízí skvělou dostupnost – do Chrudimi dojedete za 8 minut, do Pardubic za 10 minut. V blízkosti domu je zastávka MHD č. 12 s přímým spojením do Pardubic. Dům je ve stádiu rozestavěnosti, průkaz energetické náročnosti budovy bude doložen v rámci stavebního povolení.
Drozdice jsou situovány nad pravým břehem řeky Chrudimky, v sousedství chráněných přírodních oblastí Drozdická a Nemošická stráň, které lákají svým bohatstvím fauny a flóry. Ideální místo pro pohodové rodinné bydlení v blízkosti přírody a zároveň s výbornou dostupností do města.

Cena
1 830 000 Kč /za nemovitost Spočítat hypotéku
Aktualizováno
24. 6. 2025
Adresa
Pardubice, Drozdice
ID
N00070
Stavba
Cihlová
Stav objektu
Ve výstavbě
Druh objektu
Samostatný
Lokalita objektu
Klidná část obce
Užitná plocha
142 m2
Zastavěná plocha
155 m2
Plocha pozemku
424 m2
Třída energetické náročnosti
C - Úsporná

Máte zájem o tuto nemovitost?

Tímto, v souladu s nařízením Evropského parlamentu a Rady (EU) 2016/679, v platném znění, prohlašuji, že mi je alespoň 16 let a uděluji tak svůj souhlas se zpracováním zadaných údajů (jméno, telefon, e-mail, ip adresa) společnosti B3 Technology, s.r.o., IČ: 07330600, se sídlem Novostavby 126/23, 435 11 Lom (správce dat), za účelem předání dotazu z tohoto formuláře Vámi vybranému inzerentovi a zpětného kontaktování mé osoby. Osobní údaje bude správce zpracovávat manuálně i automaticky přímo prostřednictvím svých zaměstnanců. Informace předané tímto formulářem budou uloženy v databázi správce maximálně po dobu 10 let. Odvolání souhlasu s uložením a zpracováním poskytnutých dat lze e-mailem na info@realitymat.cz. V případě podezření na neoprávněné použití Vámi poskytnutých údajů máte právo předat podnět k šetření Úřadu pro ochranu osobních údajů. Více informací
Chystáte se prodat nemovitost?
Pomůžeme Vám!

Kontakt

Marcela Zavadilová

Marcela Zavadilová

Přihlášení k odběru

Nenechte si ujít nejnovější nabídky prodeje rodinných domů v Pardubicích.

Podobné nabídky