Prodej rodinného domu, Borkovany, 104 m2

Borkovany


3 400 000 Kč /za nemovitost
HYPOTÉKA od 15 196 Kč /měs.
Regionální dodavatelé v Borkovanech

Pojištění a finance

Popis

Nabízíme k prodeji rodinný dům určený ke kompletní rekonstrukci, nacházející se v centru obce Borkovany (okres Břeclav), v atraktivní lokalitě jihomoravského venkova s dobrou dostupností do Brna, Hustopečí i Břeclavi.

Základní informace o nemovitosti:
• Celková plocha pozemku: 852 m²
• Zastavěná plocha a nádvoří: 353 m²
• Podlahová plocha domu: 171 m²
• Užitná plocha obytné části: 104 m²
• Zahrada (do mírného svahu): 332 m²

Dispozice domu:
Rodinný dům má převážně přízemní dispozici s rozsáhlým technickým zázemím a přístavky. Je vhodný pro rekonstrukci dle vlastních představ – ideální jak pro trvalé bydlení, bydlení spojené s podnikáním, tak pro rekreační účely.

Vnitřní prostory:
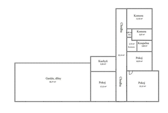
• Chodba: 22,14 m²
• Pokoj 1: 17,20 m²
• Pokoj 2: 22,12 m²
• Kuchyně: 8,36 m²
• Jídelna: 10,93 m²
• Komora: 2,73 m²
• Koupelna: 3,68 m²
• WC: 0,85 m²
• Druhá komora/sklad: 5,07 m²
• Letní komora: 11,42 m²

Vedlejší stavby a hospodářské části:
• Garáže a dílny: 66,77 m²
• Chlévy, sýpka a další technické prostory – vhodné pro přestavbu na ateliér, sklad, dílnu nebo hobby prostor.

Exteriér a zahrada:
Zahrada o ploše 332 m² navazuje na prostorný dvůr, je ve svahu nabízí možnost terasového uspořádání nebo menšího sadu, vinice či okrasné zahrady. Pozemek je oplocený a poskytuje dostatek soukromí.

Lokalita – Borkovany:
Obec Borkovany leží v mírně zvlněné krajině Jižní Moravy, cca 15 minut autem od Hustopečí a nájezdu na dálnici D2 (Brno – Břeclav). Je zde základní občanská vybavenost – obchod, školka, škola, restaurace, autobusová zastávka, knihovna a kulturní dům. V obci a okolí panuje klidná atmosféra s přírodními scenériemi a vinicemi, ideálními pro pěší výlety a cykloturistiku.

Shrnutí:
• Rodinný dům s technickým zázemím a hospodářskou částí
• Velká zahrada, soukromí, potenciál pro přestavbu
• Výborná lokalita pro klidné bydlení nebo chalupaření
• Možnost rozdělení prostor i pro podnikání (dílna, sklad)

Pro více informací nebo domluvu prohlídky mě neváhejte kontaktovat.

Cena
3 400 000 Kč /za nemovitost Spočítat hypotéku
Aktualizováno
19. 12. 2025
Adresa
Borkovany
ID
00037
Stavba
Smíšená
Stav objektu
Před rekonstrukcí
Druh objektu
Řadový
Lokalita objektu
Centrum obce
Užitná plocha
104 m2
Zastavěná plocha
353 m2
Podlahová plocha
852 m2
Plocha pozemku
852 m2
Plocha zahrady
332 m2
Třída energetické náročnosti
G - Mimořádně nehospodárná
Elektřina
230V, 400V
Odpad
Veřejná kanalizace
Topení
Lokální tuhá paliva
Komunikace
Asfaltová
Doprava
Autobus
Voda
Vodovod
Zdroj topení
Kamna
Zdroj teplé vody
Elektrokotel
Výtah
Bezbarierový přístup

Máte zájem o tuto nemovitost?

Tímto, v souladu s nařízením Evropského parlamentu a Rady (EU) 2016/679, v platném znění, prohlašuji, že mi je alespoň 16 let a uděluji tak svůj souhlas se zpracováním zadaných údajů (jméno, telefon, e-mail, ip adresa) společnosti B3 Technology, s.r.o., IČ: 07330600, se sídlem Novostavby 126/23, 435 11 Lom (správce dat), za účelem předání dotazu z tohoto formuláře Vámi vybranému inzerentovi a zpětného kontaktování mé osoby. Osobní údaje bude správce zpracovávat manuálně i automaticky přímo prostřednictvím svých zaměstnanců. Informace předané tímto formulářem budou uloženy v databázi správce maximálně po dobu 10 let. Odvolání souhlasu s uložením a zpracováním poskytnutých dat lze e-mailem na info@realitymat.cz. V případě podezření na neoprávněné použití Vámi poskytnutých údajů máte právo předat podnět k šetření Úřadu pro ochranu osobních údajů. Více informací
Chystáte se prodat nemovitost?
Pomůžeme Vám!
Theleadway banner

Kontakt

Zlatka Bedřichová

Zlatka Bedřichová

Přihlášení k odběru

Nenechte si ujít nejnovější nabídky prodeje rodinných domů v Borkovanech.

Podobné nabídky