Pronájem vily, Praha - Nebušice, Nebušická, 255 m2 (ID: 1845272)
Nebušická, Praha, Nebušice
Popis
ID zakázky: V3555-1
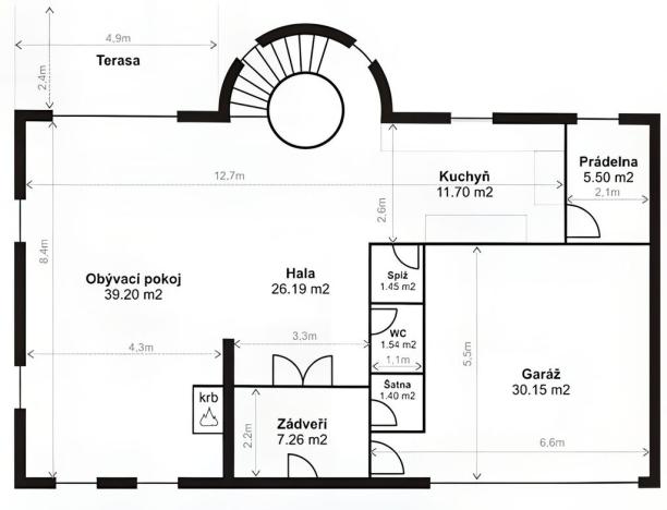
Stylová samostatně stojící vila se nachází v prestižním uzavřeném areálu v pražských Nebušicích. Nabízí obytnou plochu 243 m², dvojgaráž a terasu o rozloze 12 m². K vile náleží soukromá zahrada, jejíž součástí je vyhřívaný bazén o rozměrech 5 x 3,1 x 1,5 m.
V prestižním rezidenčním areálu Villas Šárka o rozloze 5 500 m² je umístěno celkem sedm moderních rodinných vil, z nichž každá nabízí obytnou plochu 243 m², dvougaráž a terasu o velikosti 12 m². Součástí každé vily je i soukromá zahrada s vyhřívaným bazénem, ideální pro odpočinek i aktivní relaxaci.
Vily se čtyřmi ložnicemi jsou navrženy s důrazem na pohodlí a moderní standardy bydlení – nechybí podlahové vytápění ani klimatizace. Vysoký standard bydlení doplňují tři elegantní koupelny a tři toalety, z nichž dvě jsou samostatné.
Plně zařízená kuchyně je vybavena sklokeramickou varnou deskou, horkovzdušnou troubou, myčkou, lednicí s mrazákem a digestoří. Otevřený koncept propojuje kuchyň s prostorným obývacím pokojem, jehož dominantou je krb a přímý vstup na zahradu.
Rezidenční projekt „Villas Šárka“ se nachází v bezprostřední blízkosti prestižní mezinárodní školy The International School of Prague. V okolí je k dispozici kompletní občanská vybavenost – základní a mateřská škola, zdravotní středisko, obchody, sportovní hala, tenisové kurty a golfový klub. Milovníky přírody potěší blízkost chráněné krajinné oblasti Divoká Šárka. Kompletní městskou infrastrukturu nabízí nedaleké centrum Dejvic.
Nájemné je ve výši 110.000,- Kč
K nastěhovaní ihned.
Jelikož není známa energetická třída PENB, v souladu s novelou zákona 406/2000 uvádíme energetickou třídu G.
Pro více informací a sjednání prohlídky kontaktujte prosím realitního makléře.
Máte zájem o tuto nemovitost?

Vinohradská 2133/138, Praha
Pomůžeme Vám!
Pomůžeme Vám!
Kontakt

Makers Reality
Přihlášení k odběru
Nenechte si ujít nejnovější nabídky pronájmu vil v Praze.