Prodej chalupy, Králíky, Hřbitovní, 133 m2 (ID: 1836130)

Hřbitovní, Králíky


5 730 000 Kč /za nemovitost
HYPOTÉKA od 25 610 Kč /měs.

(vč. provize RK)


Regionální dodavatelé v Králíkách

Popis

Nabízíme k prodeji půvabnou vilku z roku 1919 (užitná plocha cca 133 m2) s přístavbou (cca 24,32 m2), půdou a se zahradou 1.524m2. Budova byla téměř nepřetržitě obývána a pečlivě udržována. Zastavěná plocha domu je cca 68 m2.

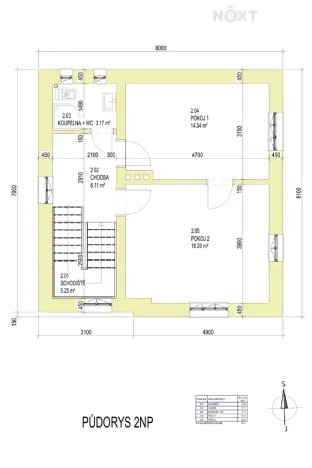
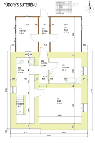
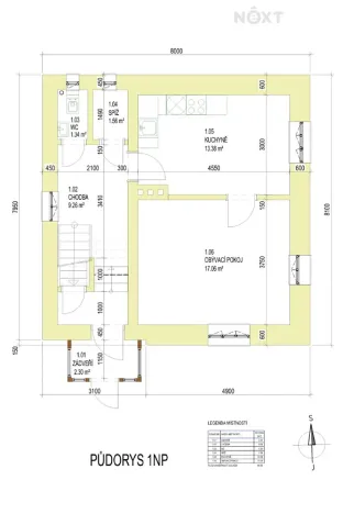
Dispozici lze detailněji nalézt na přiložených plánech:
• Přízemí (cca 44,9 m2 ): Vstup z ulice přes zádveří do vstupní chodby se schodištěm. Z chodby je přístupné WC, spíž a kuchyň, odkud vedou dveře do obývacího pokoje.
• První patro (cca 47,27 m2 ): Z centrálního schodiště a chodby se dostanete do koupelny a do dvou vzájemně propojených pokojů.
• Půda: Nezateplená půda nabízí úložné prostory a malý letní pokojík pro přespání.
• Suterén (cca 41,55 m2): Tento prostor je částečně nad terénem. Z chodby je přístupná větší místnost (sklep), uklízecí kout s umyvadlem a WC, a také prostor s plynovým kotlem a kombinovaným zásobníkem TUV, kde se nachází pračka.
• Přístavba (cca 24,32 m2): Dřevěná nezateplená přístavba sloužící jako zahradní domek, dílna či sklad je přístupná jak z RD, tak ze zahrady. V části dílny se nachází vlastní studna a verandu lze využít pro posezení.

Údržba a technické parametry:
Dům byl zakoupen v roce 2000 a od té doby prošel řadou rekonstrukcí, včetně výměny střešní krytiny (plechová šablona s imitací tašky)a obnovy fasády mezi lety 2001-2003. Úprava koupelen a kuchyně cca 2005. Topení a ohřev TUV zajišťuje plynový kotel s kombinovaným zásobníkem Dražice (cca 180 l), radiátory s termoregulačními hlavicemi lze ovládat pomocí aplikace. Většina vedení již v měděných trubkách. Objekt je napojen na obecní vodovod a kanalizaci, má také vlastní studnu pro zalévání zahrady. Plyn zaveden. Venkovní okna budou vyžadovat výměnu, jinak je objekt v dobrém technickém stavu. Dům si zachoval atmosféru starších ač idylických časů a většinu původních prvků, jako jsou vnitřní dveře, špaletová okna, prkenné podlahy aj. Místnosti jsou díky původnímu tvaru oken dostatečně prosvětlené.

Zahrada:
Součástí domu je rozlehlá stinná zahrada s množstvím ovocných stromů a keřů (jabloně, třešně, hrušně, slivoně, rybíz, maliny, angrešt, ostružiny, mišpule, muchovník, áronie, dřín) a okrasných rostlin (pivoňky, růže, floxy, bohyšky, kakosty).

Lokalita:
V okolí najdete veškeré služby (obchody, ZŠ, MŠ, lékaře, restaurace). V Králíkách se nachází nový sportovní areál a koupaliště, plánuje se výstavba nové sportovní haly. Okolní příroda nabízí možnosti cykloturistiky a běžkování. V blízkosti je poutní areál Hora Matky Boží a odpočinkový areál Dolní Morava, přehrada na Pastvinách je vzdálena 21 km.

Dům je ideální pro trvalé bydlení, rekreaci nebo i případně pro pronájem. Financování zajistíme s naším prověřeným specialistou - řešení v podobě nezávislé konzultace se zkušenou hypoteční konzultantkou s péčí připraví hypotéku přesně na míru vašim potřebám. Přijďte na prohlídku! Pro komunikaci uvádějte evidenční číslo zakázky N111132.

Cena
5 730 000 Kč /za nemovitost Spočítat hypotéku
Poznámka k ceně
vč. provize RK
Aktualizováno
3. 6. 2025
Adresa
Hřbitovní, Králíky
ID
N111132
Stavba
Smíšená
Stav objektu
Dobrý
Vybaveno
Částečně
Druh objektu
Samostatný
Lokalita objektu
Klidná část obce
Užitná plocha
133 m2
Zastavěná plocha
68 m2
Plocha pozemku
1592 m2
Třída energetické náročnosti
G - Mimořádně nehospodárná
Elektřina
230V, 400V
Plyn
Plynovod
Odpad
Veřejná kanalizace
Topení
Lokální plynové, Lokální tuhá paliva
Komunikace
Asfaltová
Doprava
Vlak, Silnice, Autobus
Voda
Místní zdroj vody, Vodovod
Sklep
Bezbarierový přístup

Máte zájem o tuto nemovitost?

Tímto, v souladu s nařízením Evropského parlamentu a Rady (EU) 2016/679, v platném znění, prohlašuji, že mi je alespoň 16 let a uděluji tak svůj souhlas se zpracováním zadaných údajů (jméno, telefon, e-mail, ip adresa) společnosti B3 Technology, s.r.o., IČ: 07330600, se sídlem Novostavby 126/23, 435 11 Lom (správce dat), za účelem předání dotazu z tohoto formuláře Vámi vybranému inzerentovi a zpětného kontaktování mé osoby. Osobní údaje bude správce zpracovávat manuálně i automaticky přímo prostřednictvím svých zaměstnanců. Informace předané tímto formulářem budou uloženy v databázi správce maximálně po dobu 10 let. Odvolání souhlasu s uložením a zpracováním poskytnutých dat lze e-mailem na info@realitymat.cz. V případě podezření na neoprávněné použití Vámi poskytnutých údajů máte právo předat podnět k šetření Úřadu pro ochranu osobních údajů. Více informací
Chystáte se prodat nemovitost?
Pomůžeme Vám!

Kontakt

Bc. Stanislav Dubec

Bc. Stanislav Dubec

Přihlášení k odběru

Nenechte si ujít nejnovější nabídky prodeje chalup v Králíkách (okr. Ústí nad Orlicí).

Tipy Realitymatu

Podobné nabídky