Prodej rodinného domu, Karlovy Vary - Drahovice, Rumunská, 895 m2 (ID: 1832370)
Rumunská, Karlovy Vary, Drahovice
Popis
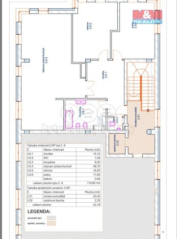
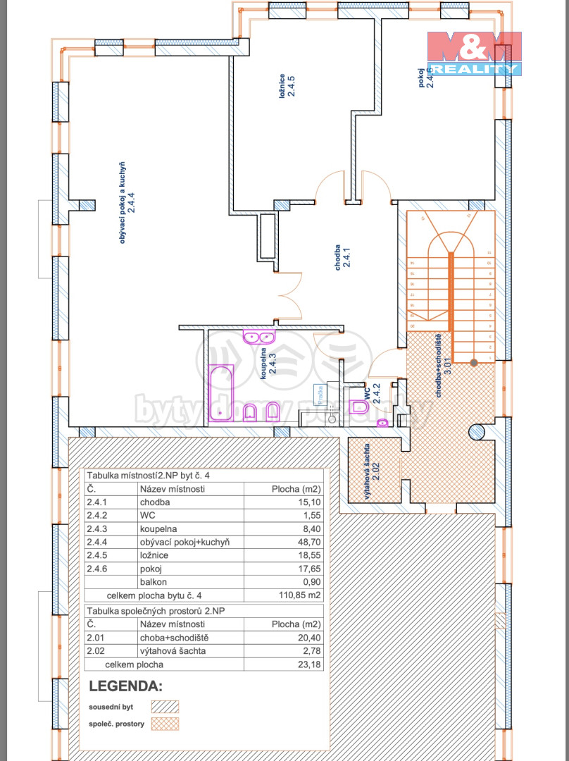
Nabízíme k prodeji bytový dům v prestižní lokalitě Karlových Varů – Rumunská ulice. Dům má osm velkorysých bytů o výměře 103–119 m². Dva z nich jsou již pronajaty a generují stabilní výnos, ostatní jsou ve stavu shell & core a umožňují budoucímu majiteli úpravy přesně podle vlastního vkusu a záměru. Ideální pro investici, pronájem či kombinaci s vlastním bydlením. V domě je moderní výtah, reprezentativní mramorové schodiště a kamerový systém. Každý byt má podlahové vytápění a samostatný plynový kotel Wolf. Součástí nemovitosti je garážové stání pro šest vozidel a dvě venkovní parkovací místa. Objekt se nachází v klidné, přesto velmi dobře dostupné lokalitě nedaleko centra města. Díky svému technickému stavu a možnostem úprav představuje tato nemovitost mimořádnou příležitost pro ty, kdo hledají kvalitu, prostor a investiční potenciál. Pro více informací mě kontaktujte.
Máte zájem o tuto nemovitost?

ulice Krakovská 583/9, Praha
Pomůžeme Vám!
Pomůžeme Vám!
Kontakt

Ing. Bc. Romana Marečková
Přihlášení k odběru
Nenechte si ujít nejnovější nabídky prodeje rodinných domů v Karlových Varech.
Tipy Realitymatu

Prodej rodinného domu, Žlutice, Čechova, 89 m2
1 800 000 Kč
Podobné nabídky

Prodej rodinného domu, Karlovy Vary, Vančurova, 260 m2
15 000 000 Kč

Prodej rodinného domu, Karlovy Vary, Krokova, 280 m2
11 900 000 Kč