Prodej bytu 1+kk, Praha - Horní Měcholupy, Hornoměcholupská, 26 m2

Hornoměcholupská, Horní Měcholupy - Praha 15


5 100 000 Kč /za nemovitost
HYPOTÉKA od 22 794 Kč /měs.

(včetně provize RK)


Regionální dodavatelé v Praze 10

Stěhovací služby

Výkup a prodej starého nábytku

Popis

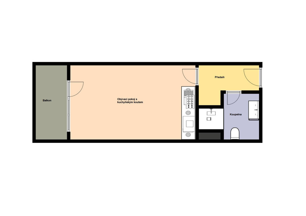
Prodej hezkého bytu 1+kk/B/S, 26 m2, Praha 10 - Horní Měcholupy, Hornoměcholupská
Hledáte vlastní dostupné bydlení v novostavbě? Toužíte po balkonu? Oceníte sklep?

Soccer Reality vám nabízí útulný byt, který se nachází ve 2. nadzemním podlaží moderní novostavby od CENTRAL GROUP v oblíbené Javorové čtvrti v Praze 10 – Horních Měcholupech. Byt se pyšní výhodnou polohou s výhledem do klidné části projektu, příjemnou východní orientací a balkonem o velikosti 5 m², ideálním pro ranní kávu nebo chvíle odpočinku.

Hlavní výhody: zateplený plášť budovy, plastová okna s izolačními dvojskly, centrální dálkové vytápění, bezpečnostní dveře NEXT, datové rozvody pro internet, praktická kuchyňská linka se spotřebiči, hezká laminátová plovoucí podlaha. V chodbě je praktická skříň. Koupelna je vybavena sprchovým koutem, pračkou a žebříčkovým radiátorem.

V ceně bytu je navíc vlastní uzamykatelný sklep (3,7 m2), ideální na uskladnění kol, lyží, nářadí, pneumatik a všeho ostatního.

Lokalita má vynikající dopravní dostupnost MHD. Na metro C – Háje a metro A – Strašnickou a Skalku jezdí autobusy 183, 154 a 175.

Veškerá občanská vybavenost je v místě. Kaufland, Retail Park. Dostatek zeleně, hřišť a sportovišť naleznete u blízké Hostivařské přehrady. Dostatek parkovacích míst je přímo u domu.

Prohlídky a rezervace jsou možné ihned.

Cena
5 100 000 Kč /za nemovitost Spočítat hypotéku
Poznámka k ceně
včetně provize RK
Aktualizováno
13. 10. 2025
Adresa
Hornoměcholupská, Horní Měcholupy - Praha 15
ID
N66102
Stavba
Cihlová
Stav objektu
Novostavba
Patro
2. z 5
Vybaveno
Částečně
Typ objektu
Patrový
Lokalita objektu
Klidná část obce
Vlastnictví
Osobní
Užitná plocha
26 m2
Podlahová plocha
35 m2
Třída energetické náročnosti
C - Úsporná
Elektřina
230V
Topení
Ústřední dálkové
Telekomunikace
Internet
Doprava
Vlak, Dálnice, Silnice, MHD, Autobus
Voda
Vodovod
Balkon
Sklep
Výtah
Bezbarierový přístup

Máte zájem o tuto nemovitost?

Tímto, v souladu s nařízením Evropského parlamentu a Rady (EU) 2016/679, v platném znění, prohlašuji, že mi je alespoň 16 let a uděluji tak svůj souhlas se zpracováním zadaných údajů (jméno, telefon, e-mail, ip adresa) společnosti B3 Technology, s.r.o., IČ: 07330600, se sídlem Novostavby 126/23, 435 11 Lom (správce dat), za účelem předání dotazu z tohoto formuláře Vámi vybranému inzerentovi a zpětného kontaktování mé osoby. Osobní údaje bude správce zpracovávat manuálně i automaticky přímo prostřednictvím svých zaměstnanců. Informace předané tímto formulářem budou uloženy v databázi správce maximálně po dobu 10 let. Odvolání souhlasu s uložením a zpracováním poskytnutých dat lze e-mailem na info@realitymat.cz. V případě podezření na neoprávněné použití Vámi poskytnutých údajů máte právo předat podnět k šetření Úřadu pro ochranu osobních údajů. Více informací
Chystáte se prodat nemovitost?
Pomůžeme Vám!

Kontakt

Ing. Jaroslav Šesták

Ing. Jaroslav Šesták

Přihlášení k odběru

Nenechte si ujít nejnovější nabídky prodeje bytů 1+kk v Praze 10.

Podobné nabídky