Prodej rodinného domu, Úvaly, 142 m2 (ID: 1819376)
Škvorec
(včetně DPH, pozemku a inženýrských sítí)
Popis
Dovolujeme si Vám nabídnout prodej nízkoenergetického moderního rodinného domu IDEAL II v nově zahájené nabídce z exkluzivního projektu ZAHRADY ŠKVOREC. 
V tomto projektu bude nabízeno pouze 25 rodinných domů, jedná se tedy o individuální řešení celé lokality, které Vám zaručí dostatek soukromí při zachování plné občanské vybavenosti a výborné dostupnosti do Prahy.
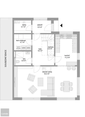
Jedná se o architektonicky promyšlený a velmi zajímavě řešený patrový dům, který se pyšní podlahovou plochou 142 m² a který tak svým majitelům nabízí celkem 5 obytných místností při současném využití nadstandardních ploch pro technické a skladovací účely (k dispozici je zejména zádveří, šatna, technická místnost atd.). Samozřejmostí je velkorysá zahrada 425 m².
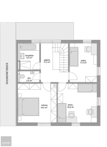
Srdcem domu je prosluněný obývací pokoj s výměrou téměř 34 m², terasovými dveřmi s výstupem na zahradu a účelně oddělenou kuchyní. Kromě toho je v přízemí praktická koupelna se sprchovým koutem a toaletou, technická místnost připravená pro umístění pračky se sušičkou, komora pod schody a nesmí chybět ani šatna. V patře je hlavní ložnice, 2 samostatné dětské pokoje a další koupelna s vanou, sprchovým koutem a toaletou zvlášť.  Jednotlivé místnosti propojuje prostorná hala.
Součástí příslušenství domu je parkovací stání pro 3 automobily a přístupový chodník. 
Dům je navržen ve vysokém nadstandardu s ohledem na funkčnost a pohodlí a poskytuje moderní technologie a úsporná řešení. Nízké provozní náklady jsou zaručeny díky tepelnému čerpadlu.
Výběr vnitřních dveří, podlahových krytin, obkladů, dlažby, sanitární keramiky přizpůsobíme vašim individuálním požadavkům. Dům bude dle Vašich požadavků kompletně dokončen a připraven k nastěhování.
Celková cena nezahrnuje poplatek obci na rozvoj infrastruktury ve výši 150.000 Kč.
Cena je konečná včetně pozemku, oplocení, vybudování inženýrských sítí a DPH. Výstavba bude zahájena v létě 2025 a termín dokončení a předání prvních domů je naplánován na zimu 2026. 
Naše domy se těší dlouholeté oblibě. Jejich přednosti ocenilo za téměř 35 let více než 8500 spokojených majitelů v celé ČR. Díky unikátní masivní technologii poskytujeme zárukou 50 let na konstrukční systém.  
Městys Škvorec se nachází v okrese Praha - východ s výbornou dostupností do hlavního města, s kompletní občanskou vybaveností (školy, školky, restaurace, obchody, zdravotnické služby, kulturní a sportovní zařízení, MHD atd.). 
Rádi a zdarma Vám zajistíme výhodný hypoteční úvěr s nejnižší úrokovou sazbou na trhu.
V případě zájmu nás neváhejte kontaktovat a my dáme vašemu životu místo.
Máte zájem o tuto nemovitost?
Štětkova 1001/5, Praha, Nusle
Pomůžeme Vám!
Pomůžeme Vám!
Kontakt
 
                        Ing. Adriana Čarnecká
Přihlášení k odběru
Nenechte si ujít nejnovější nabídky prodeje rodinných domů v Úvalech.
Tipy Realitymatu
Podobné nabídky
 
        Prodej rodinného domu, Úvaly, Táboritská, 309 m2
18 915 000 Kč
 
        Prodej rodinného domu, Úvaly, 198 m2
17 900 000 Kč
 
        Prodej rodinného domu, Úvaly, 250 m2
23 900 000 Kč
 
        Prodej rodinného domu, Úvaly, Rokycanova, 132 m2
15 900 000 Kč
 
                                                                                     
                                                                                     
                                                                                     
                                                                                     
                                                                                     
                                                                                     
         
        