Prodej bytu 3+1, Kozolupy, 105 m2

Kozolupy


7 900 000 Kč /za nemovitost
HYPOTÉKA od 35 308 Kč /měs.

(PO VÝRAZNÉ SLEVĚ, včetně provize, včetně právního servisu, cena k jednání)


Regionální dodavatelé v Kozolupech

Podlahy

Stěhovací služby

Popis

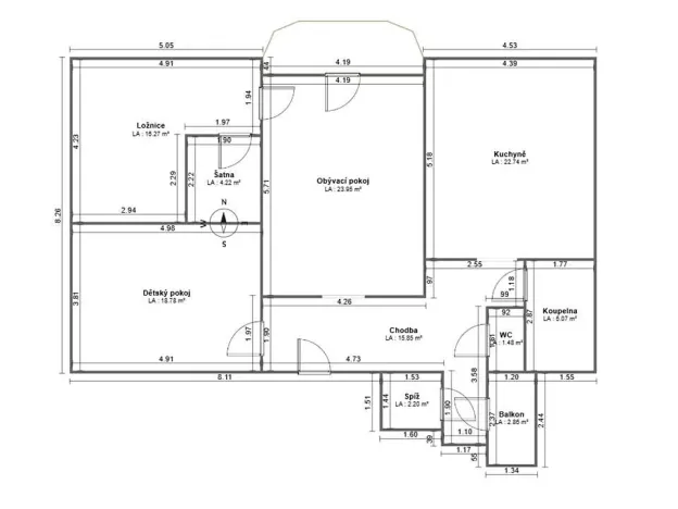
Nabízíme Vám exkluzivně k prodeji byt 3+1 v osobním vlastnictví o celkové podlahové ploše 105 m2, v obci Kozolupy, okr. Plzeň - sever. Bytová jednotka prošla v roce 2023 kompletní rekonstrukcí a nachází se ve 3.p. třípatrového cihlového domu. Dispozičně je řešena předsíní se samostatnými vstupy do kuchyně, obývacího, dětského pokoje, koupelny, samostatného WC, komory a ložnicí se šatnou. Vytápění a teplá voda jsou zde zajištěny kombinovaným plynovým kotlem nebo krbovými kamny s výměníkem s rozvody do radiátorů a kombinovaného elektrického bojleru. K bytu náleží praktická komora přímo v bytě, velká lodžie, balkon a sklep. Dále je zde garáž v osobním vlastnictví a možnost využívání společné zahrady o velikosti 797 m2 V obci je veškerá občanská vybavenost (škola, školka, pošta, obchod s potravinami). Doprava zajištěna MHD a IDS. Parkování je možno přímo před domem.

DOPORUČUJI VZHLEDEM K NESTANDARDNÍ DISPOZICI

Cena
7 900 000 Kč /za nemovitost Spočítat hypotéku
Poznámka k ceně
PO VÝRAZNÉ SLEVĚ, včetně provize, včetně právního servisu, cena k jednání
Aktualizováno
10. 8. 2025
Adresa
Kozolupy
ID
00576
Stavba
Cihlová
Stav objektu
Po rekonstrukci
Patro
3. z 3
Vybaveno
Ano
Lokalita objektu
Okraj obce
Vlastnictví
Osobní
Užitná plocha
105 m2
Plocha zahrady
797 m2
Třída energetické náročnosti
G - Mimořádně nehospodárná
Elektřina
120V, 230V
Plyn
Plynovod
Odpad
Veřejná kanalizace
Komunikace
Asfaltová
Telekomunikace
Internet
Doprava
Vlak, Silnice, MHD, Autobus
Voda
Vodovod
Topné těleso
Podlahové vytápění, Radiátory, Krbová kamna
Zdroj topení
Plynový kotel, Krbová kamna
Zdroj teplé vody
Plynový kotel, Bojler - elektro
Balkon
Garáž
Sklep
Lodžie
Výtah

Máte zájem o tuto nemovitost?

Tímto, v souladu s nařízením Evropského parlamentu a Rady (EU) 2016/679, v platném znění, prohlašuji, že mi je alespoň 16 let a uděluji tak svůj souhlas se zpracováním zadaných údajů (jméno, telefon, e-mail, ip adresa) společnosti B3 Technology, s.r.o., IČ: 07330600, se sídlem Novostavby 126/23, 435 11 Lom (správce dat), za účelem předání dotazu z tohoto formuláře Vámi vybranému inzerentovi a zpětného kontaktování mé osoby. Osobní údaje bude správce zpracovávat manuálně i automaticky přímo prostřednictvím svých zaměstnanců. Informace předané tímto formulářem budou uloženy v databázi správce maximálně po dobu 10 let. Odvolání souhlasu s uložením a zpracováním poskytnutých dat lze e-mailem na info@realitymat.cz. V případě podezření na neoprávněné použití Vámi poskytnutých údajů máte právo předat podnět k šetření Úřadu pro ochranu osobních údajů. Více informací
Chystáte se prodat nemovitost?
Pomůžeme Vám!

Kontakt

Lukáš Stupka

Lukáš Stupka

Přihlášení k odběru

Nenechte si ujít nejnovější nabídky prodeje bytů 3+1 v Kozolupech.

Podobné nabídky