Prodej rodinného domu, Litomyšl, B. Němcové, 661 m2

B. Němcové, Litomyšl-Město


Cena na vyžádání /za nemovitost
Získejte výhodnou HYPOTÉKU

(Cena je včetně právního servisu a provize realitní kanceláři.)


Regionální dodavatelé v Litomyšli

Popis

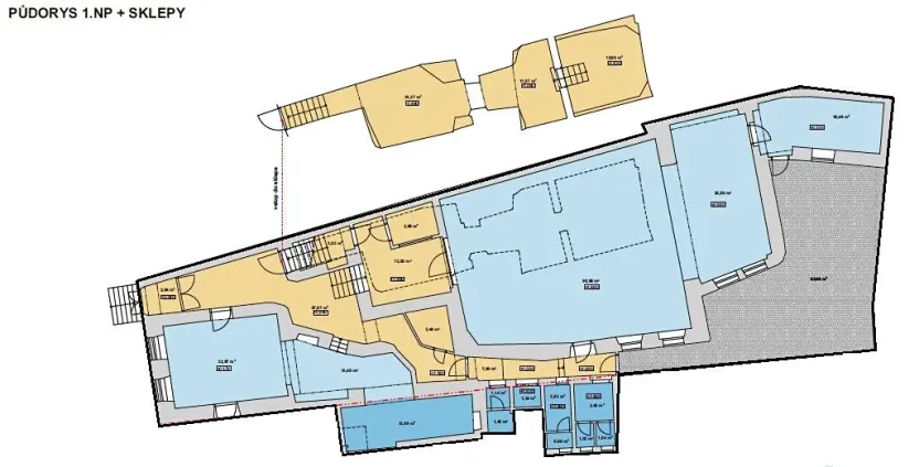
K prodeji je dům čp. 177 v historickém centru Litomyšle, v ulici B. Němcové, v těsném sousedství významných kulturních památek a s výhledem do Klášterních zahrad. Jedná se o klasicistní stavby, jejichž dnešní podoba je z velké části zachována z 20. letech 19. století, po posledním velkém požáru v Litomyšli. Nemovitost podléhá kulturní a památkové ochraně. V přízemí se nachází první divadelní sál v Litomyšli, kde v polovině 19. století hrál např. Josef Kajetán Tyl a zmínky o divadle najdeme v mnoha literárních dílech. Nachází se zde hlavní zázemí hostince U Černého orla, které se též pyšní návštěvami mnoha známých osobností, z nichž zmíním například návštěvu španělského královského páru. V patře je prostorný byt 2+1 a podkroví nabízí obrovský půdní prostor o velikosti přes 300 m2. Na základě průzkumů a projektů lze usnadnit budoucí práci novému majiteli, nemovitost je ke kompletní rekonstrukci. Průčelí nemovitosti je orientováno na jižní stranu. Ráda poskytnu více informací nebo Vám budu průvodcem nemovitostí při osobní prohlídce.

Cena
Cena na vyžádání Spočítat hypotéku
Poznámka k ceně
Cena je včetně právního servisu a provize realitní kanceláři.
Aktualizováno
3. 11. 2025
Adresa
B. Němcové, Litomyšl-Město
ID
0586
Stavba
Smíšená
Stav objektu
Dobrý
Druh objektu
Řadový
Užitná plocha
661 m2
Zastavěná plocha
369 m2
Podlahová plocha
661 m2
Plocha pozemku
369 m2
Plocha zahrady
64 m2
Plyn
Plynovod
Odpad
Veřejná kanalizace
Doprava
Vlak, Silnice, Autobus
Voda
Vodovod
Topné těleso
Radiátory
Sklep
Bezbarierový přístup

Máte zájem o tuto nemovitost?

Tímto, v souladu s nařízením Evropského parlamentu a Rady (EU) 2016/679, v platném znění, prohlašuji, že mi je alespoň 16 let a uděluji tak svůj souhlas se zpracováním zadaných údajů (jméno, telefon, e-mail, ip adresa) společnosti B3 Technology, s.r.o., IČ: 07330600, se sídlem Novostavby 126/23, 435 11 Lom (správce dat), za účelem předání dotazu z tohoto formuláře Vámi vybranému inzerentovi a zpětného kontaktování mé osoby. Osobní údaje bude správce zpracovávat manuálně i automaticky přímo prostřednictvím svých zaměstnanců. Informace předané tímto formulářem budou uloženy v databázi správce maximálně po dobu 10 let. Odvolání souhlasu s uložením a zpracováním poskytnutých dat lze e-mailem na info@realitymat.cz. V případě podezření na neoprávněné použití Vámi poskytnutých údajů máte právo předat podnět k šetření Úřadu pro ochranu osobních údajů. Více informací
Chystáte se prodat nemovitost?
Pomůžeme Vám!

Kontakt

Mgr. Monika  Kindlová

Mgr. Monika Kindlová

Přihlášení k odběru

Nenechte si ujít nejnovější nabídky prodeje rodinných domů v Litomyšli.

Podobné nabídky