Prodej rodinného domu, Zborovice, 164 m2

Zborovice, Medlov


2 900 000 Kč /za nemovitost
HYPOTÉKA od 12 961 Kč /měs.
Regionální dodavatelé v Zborovicích

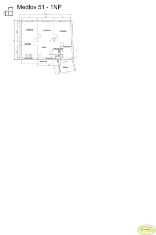
Popis

Hledáte dům na vesnici v klidné lokalitě obklopené přírodou, nedaleko lesů a přitom s dostupností cca 15 min. do centra města? Jeden takový tu máme, jedná se o řadový RD s dispozicí 5+1 v obci Medlov, okres Kroměříž. Dům prošel částečnou rekonstrukcí cca před 15ti lety v přízemní části (elektřina, odpady, podlahy, kuchyňská linka) o podlahové ploše 81m2, kde se nachází - vstupní chodba, komora, kuchyně s obývacím prostorem, hala se vstupem na dvůr, pokoj a koupelna se sprochovým koutem i vanou. První patro o podlahové ploše 92m2 je v původním stavu z cca 80-tých let a prošlo pouze udržovacími úpravami, zde se nachází chodba, balkón, 3 pokoje, komora se vstupem na půdu, koupelna se sprchovým koutem a samostatné WC. K domu náleží i garáž, kotelna, prádelna a sklad. Je napojen na elektřinu, plyn, vodovod i kanalizaci. Ohřev vody zajišťuje elektrický bojler, vytápění převážně elektrickými přímotopy či plynovými wafkami. Dům je z větší části zděný - cihly plné pálené v kombinaci s nepálenými, které jsou převážně v přízemní části, někdejsou použity i švárobetonové tvárnice, střecha sedlová - původní stav. Doporučujeme prohlídku. K dispozici ihned. PENB - G .

Cena
2 900 000 Kč /za nemovitost Spočítat hypotéku
Aktualizováno
7. 10. 2025
Adresa
Zborovice, Medlov
ID
97267
Stavba
Smíšená
Stav objektu
Dobrý
Druh objektu
Řadový
Lokalita objektu
Klidná část obce
Užitná plocha
164 m2
Zastavěná plocha
165 m2
Podlahová plocha
191 m2
Plocha pozemku
348 m2
Třída energetické náročnosti
G - Mimořádně nehospodárná
Odpad
Veřejná kanalizace
Topení
Lokální elektrické
Doprava
Silnice, MHD
Topné těleso
WAW, Přímotop
Zdroj topení
WAW, Přímotop
Zdroj teplé vody
Elektrokotel
Garáž

Máte zájem o tuto nemovitost?

Tímto, v souladu s nařízením Evropského parlamentu a Rady (EU) 2016/679, v platném znění, prohlašuji, že mi je alespoň 16 let a uděluji tak svůj souhlas se zpracováním zadaných údajů (jméno, telefon, e-mail, ip adresa) společnosti B3 Technology, s.r.o., IČ: 07330600, se sídlem Novostavby 126/23, 435 11 Lom (správce dat), za účelem předání dotazu z tohoto formuláře Vámi vybranému inzerentovi a zpětného kontaktování mé osoby. Osobní údaje bude správce zpracovávat manuálně i automaticky přímo prostřednictvím svých zaměstnanců. Informace předané tímto formulářem budou uloženy v databázi správce maximálně po dobu 10 let. Odvolání souhlasu s uložením a zpracováním poskytnutých dat lze e-mailem na info@realitymat.cz. V případě podezření na neoprávněné použití Vámi poskytnutých údajů máte právo předat podnět k šetření Úřadu pro ochranu osobních údajů. Více informací
Chystáte se prodat nemovitost?
Pomůžeme Vám!

Kontakt

Veronika Došlíková

Veronika Došlíková

Přihlášení k odběru

Nenechte si ujít nejnovější nabídky prodeje rodinných domů v Zborovicích.

Podobné nabídky