Pronájem bytu 3+kk, Praha - Hlubočepy, Dreyerova, 71 m2
Dreyerova, Hlubočepy - Praha 5
(vratná jistota, náklady na bydlení 8.501 Kč, poplatek za podnájem)
Popis
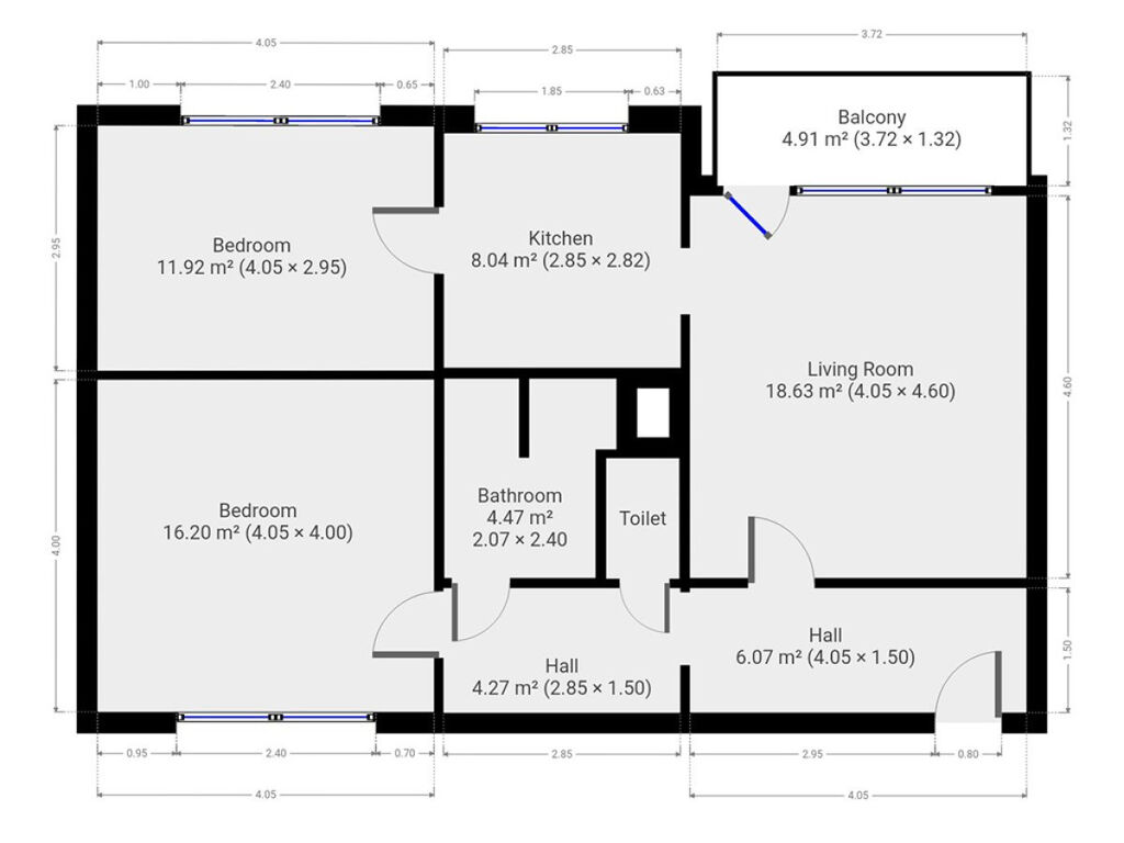
K dlouhodobému podnájmu nabízíme pěkný byt o dispozici 3+kk v klidné části Prahy, na adrese Dreyerova. Byt o celkové výměře 71 m2 se nachází v prvním patře panelového domu. K bytu patří i krásná lodžie a k dispozici je klimatizace.
Byt se nabízí částečně vybavený. Kuchyně disponuje elektrickou troubou, elektrickou varnou deskou, myčkou a úložným prostorem. V obývacím pokoji jsou k dispozici skříně. a ostatní ložnice jsou nezařízené. Součástí moderní koupelny je prostorný sprchový kout, umyvadlo a úložné skříňky. Toaleta je v samostatné místnosti.
V blízkosti je možné relaxovat nebo sportovat v Prokopském údolí.
V klidném okolí domu jsou základní a mateřské školy, lékárna, supermarkety Billa a Lidl, pošta atd. Dopravní dostupnost je zajištěna zastávkou Dreyerova, která je přímo u domu.
Byt je volný k nastěhování od 1.1.2026. Majitel preferuje zájemce bez domácích mazlíčků.
Uvedena energetická kategorie G, jelikož nemáme k dispozici PENB.
Byt pronajímá Ideální nájemce - služba, se kterou budete bydlet bezstarostně a za férových podmínek. Když se něco přihodí, k dispozici jsou správci, kteří s vámi vše vyřeší. Pomůžeme s veškerou administrativou, s nastavením plateb a zajistíme vám speciální pojištění. Pojďte bydlet s námi!
Máte zájem o tuto nemovitost?

Milady Horákové 1957/13, Brno
Pomůžeme Vám!
Pomůžeme Vám!
Kontakt

Miloslava Kačerová
Přihlášení k odběru
Nenechte si ujít nejnovější nabídky pronájmu bytů 3+kk v Praze 5.
Tipy Realitymatu