Prodej rodinného domu, Železná Ruda, 679 m2
Železná Ruda, Špičák
(včetně DPH, včetně poplatků, včetně provize, včetně právního servisu)
Popis
Nabízím vám ke koupi rodinný dům na Špičáku, který se nachází v jednom z nejoblíbenějších šumavských středisek. Tento dům nabízí široké možnosti využití jak pro bydlení, tak i pro podnikání.
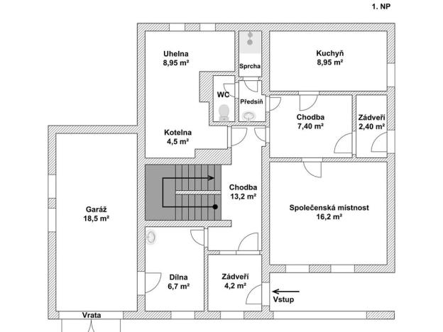
Dům nabízí byt o dispozici 3+1, se dvěma koupelnami. V přízemí je v levé části prostorná garáž, přístupná i z domu, dřevník, kotelna s kotlem na tuhá paliva, v pravé části je velká kuchyň s možností uskladňování potravin a společenskou místností cca pro 15 lidí, které mohou využívat hosté ubytovaní v pěti apartmánech přistavěných v zadní části domu. Dva apartmány jsou dvoulůžkové, dva čtyřlůžkové a jeden třílůžkový. Všechny apartmány mají své vlastní koupelny se sprchou a WC.
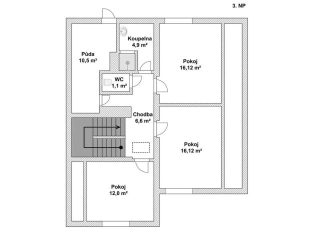
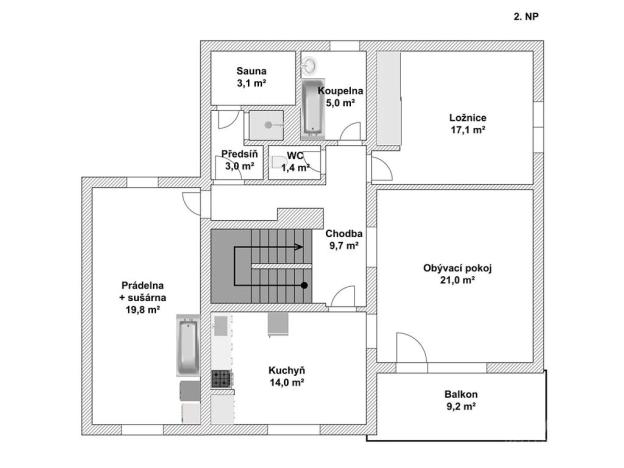
Byt majitele obsahuje v prvním patře kuchyň, obývací pokoj spojený s ložnicí, na chodbě jsou dvě koupelny, jedna s vanoua druhá se sprchovým koutem, v druhém patře je dětský pokoj s patrovým spaním. Vedle tohoto pokoje je místnost, která byla využívaná jako prádelna.
Prádelna je zároveň i jedním ze vstupů do přistavěné části, ve které jsou apartmány na pronájem. Do této části je i samostatný vstup zvenku domu. Každý apartmán je zařízen postelemi podle potřebného počtu osob, koupelnou se sprchovým koutem, zátěžovými koberci.
K domu patří trojgaráž o podlahové ploše 65m2, postavená hned u silnice. Zvenku jsou to tři samostatné vjezdy, ale uvnitř je to jeden celek, kdy v jedné části je i zdviž pro opravování aut. Zároveň další možnost parkování je vedle domu pod přístřeškem, další varianta je i v garáži domu, poslední možnost je i parkování přímo před domem.
Nad trojgaráží je vybudovaný jeden apartmán o podlahové ploše 49m2. Ten je nejnovější a nepotřebuje žádné opravy či rekonstrukce. V tomto apartmánu se v koupelně topí podlahovým topením, ostatní části vytopí krb. Je tady i moderně zařízená kuchyňská linka, v koupelně je sprchový kout.
Dům je v obyvatelném stavu, ale určitě potřebuje rekonstrukci. Užitná ploccha je 570m2, plocha pozemku je 968m2. Na pozemku je venkovní posezení. Penzion disponuje kotelnou s dvěma samostatnými okruhy na topení. . Voda je zajištěna vlastní vrtanou studnou, elektřina je 220V i 380V jak v domě, tak v garážích.
Železnorudsko leží 5 km od hranic s Německem, nabízí desítky kilometrů strojově upravovaných běžeckých tras. Na 8 km sjezdových tratí najde místo každý, od začátečníků až pro profesionální lyžaře. Špičák je nejen rájem pro lyžaře, ale i skvělým místem pro letní rodinné dovolené. V obci jekompletní občanská vybavenost, obchody, školka, škola, restaurace, pošta, bankomaty, dopravní spojení - vlak, autobus, spousta cyklostezek.
Pro domluvení prohlídky mne neváhejte kontaktovat, ráda vás nemovitostí provedu.
Máte zájem o tuto nemovitost?
Sladkovského 2757/38, Plzeň
Pomůžeme Vám!
Pomůžeme Vám!
Kontakt

Mgr. Barbora Provinská
Přihlášení k odběru
Nenechte si ujít nejnovější nabídky prodeje rodinných domů v Železné Rudě.
Tipy Realitymatu

Prodej zemědělské usedlosti, Klatovy - Beňovy, 2222 m2
Cena na vyžádání
Podobné nabídky

Prodej rodinného domu, Železná Ruda, 540 m2
5 865 000 Kč

Prodej rodinného domu, Železná Ruda, Debrnická, 260 m2
12 700 000 Kč

Prodej rodinného domu, Železná Ruda, 85 m2
9 970 000 Kč

Prodej rodinného domu, Strašín, Lazny, 116 m2
9 450 000 Kč