Prodej rodinného domu, Kladno, Jeronýmova, 135 m2
Jeronýmova, Kladno, Kročehlavy
(Kupní cena je včetně právního servisu, advokátní úschovy kupní ceny, zajištění HÚ, odměny RK.)
Popis
Nabízíme prodej moderní novostavby v Kladně, Jeronýmova 3317, s možností dvougeneračního bydlení, fotovoltaikou a výborným spojením s Prahou.
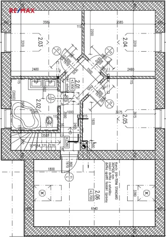
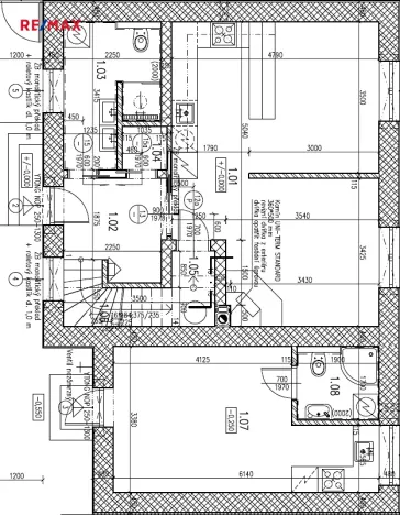
Jedná se o rodinný dům o dvou nadzemních podlažích, který zaujme nejen svým kvalitním provedením, ale také praktickým dispozičním řešením. Dům je vhodný jak pro větší rodinu, tak i pro dvougenerační bydlení – nabízí až 5 ložnic, 3 plně vybavené koupelny, obývací pokoj navazující na kuchyň s menší jídelnou a promyšlené dispoziční řešení, které zajišťuje soukromí i pohodlí pro všechny členy domácnosti. Součástí domu je moderní fotovoltaický systém s bateriovým úložištěm, který výrazně snižuje náklady na energie a zajišťuje soběstačnost.
Na dům navazuje nově zhotovený přístřešek se sklípkem, který je určen pro pohodlné posezení majitelů za jakéhokoliv počasí. Ten zatím čeká na svou kolaudaci.
V domě je i samostatná jednotka s vlastním vchodem, koupelnou s wc a malou kuchyňkou.
Ohřev TUV a topné panely jsou elektrické. Dům má izolační trojskla a kvalitní izolační zateplení.
Nemovitost se nachází na menším, ale prakticky řešeném pozemku, který i přes svou velikost nabízí dostatek soukromí a možnosti venkovního využití. Celý dům působí velmi příjemným a útulným dojmem – ideální volba pro ty, kteří hledají klidné, ale moderní bydlení.
Velkou předností je výborné dopravní spojení s Prahou díky dálnici D7, po které se do centra hlavního města dostanete během několika desítek minut. Lokalita tak ideálně kombinuje klidné bydlení mimo městský ruch s rychlým dosahem všech služeb a pracovních příležitostí v metropoli.
Pro více informací či sjednání prohlídky nás neváhejte kontaktovat.
Máte zájem o tuto nemovitost?
Kleinerova 1466, Kladno
Pomůžeme Vám!
Pomůžeme Vám!
Kontakt

Josef Hotový
Přihlášení k odběru
Nenechte si ujít nejnovější nabídky prodeje rodinných domů v Kladně.
Podobné nabídky

Prodej rodinného domu, Kladno, Klikorkova, 125 m2
7 990 000 Kč

Prodej rodinného domu, Kladno, Pod hájem, 120 m2
5 950 000 Kč

Prodej rodinného domu, Kladno, 144 m2
14 490 000 Kč

Prodej rodinného domu, Kladno - Dubí, Kalinova, 165 m2
12 500 000 Kč