Prodej pozemku pro bydlení, Králíky, 5797 m2

Králíky, Prostřední Lipka


Cena na vyžádání /za metr čtvereční
Získejte výhodnou HYPOTÉKU

(volejte makléři, včetně DPH, včetně poplatků, včetně provize, včetně právního servisu)


Regionální dodavatelé v Králíkách

Popis

Exklusivně Vám nabízíme k prodeji krásný rovinatý soubor
stavebních pozemků, určený územním plánem k výstavbě objektů
bydlení venkovského typu v obci Prostřední Lipka okr. Ústí nad Orlicí, Pardubický kraj.

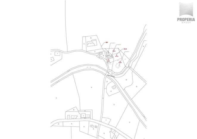
Celková výměra souboru pozemků je 5 797m²
Pozemky se nachází v atraktivní lokalitě přibližně 4 km vzdušnou
čarou (8 minut autem) od Dolní Moravy, jednoho z nejoblíbenějších
lyžařských středisek v ČR- ski areál Dolní Morava se svou dominantou
"Stezkou v oblacích" a nově vybudovaným visutým mostem, který je
nejdelší na světě. Dále se zde nachází nejdelší sjezdovka v ČR a to 3,7
km dlouhá.
Tyto pozemky jsou ideální pro výstavbu klidného bydlení nebo
investičních rekreačních objektů. V okolí je rozsáhlá síť turistických
stezek, cyklistických tras, dalších ski areálů jako Červená voda (7 km,
9 minut autem), Buková hora a další. 
Intenzita využití pozemků - koeficient zastavění pozemku stavby -
maximálně 30%.
Intenzita využití pozemků - koeficient zeleně pozemku stavby -
minimálně 50%, pokud není územním plánem stanoveno jinak.

Inženýrské sítě: sloup NN na pozemku, přípojka v řešení. Vodu nutno
řešit studnou, na povolení se pracuje. Odpady – čistička odpadních
vod.
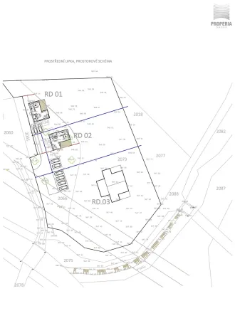
Po konzultaci na příslušném stavební úřadu týkající se nového
územního plánu je přípustné rozdělit soubor pozemků až na 3 části/
parcely, kde by šlo postavit dva rodinné domy a jeden větší bytový
dům s 3 byty. Viz. vizualizace.

Je možnost prodeje po jednotlivých parcelách označených jako pozemek č.1, č.2 a č.3.

Pro více informací k prodávaným pozemkům mě kontaktujte.

Cena
Cena na vyžádání Spočítat hypotéku
Poznámka k ceně
volejte makléři, včetně DPH, včetně poplatků, včetně provize, včetně právního servisu
Aktualizováno
14. 12. 2025
Adresa
Králíky, Prostřední Lipka
ID
03329
Plocha pozemku
5797 m2

Máte zájem o tuto nemovitost?

Tímto, v souladu s nařízením Evropského parlamentu a Rady (EU) 2016/679, v platném znění, prohlašuji, že mi je alespoň 16 let a uděluji tak svůj souhlas se zpracováním zadaných údajů (jméno, telefon, e-mail, ip adresa) společnosti B3 Technology, s.r.o., IČ: 07330600, se sídlem Novostavby 126/23, 435 11 Lom (správce dat), za účelem předání dotazu z tohoto formuláře Vámi vybranému inzerentovi a zpětného kontaktování mé osoby. Osobní údaje bude správce zpracovávat manuálně i automaticky přímo prostřednictvím svých zaměstnanců. Informace předané tímto formulářem budou uloženy v databázi správce maximálně po dobu 10 let. Odvolání souhlasu s uložením a zpracováním poskytnutých dat lze e-mailem na info@realitymat.cz. V případě podezření na neoprávněné použití Vámi poskytnutých údajů máte právo předat podnět k šetření Úřadu pro ochranu osobních údajů. Více informací
Chystáte se prodat nemovitost?
Pomůžeme Vám!

Kontakt

Martin Schuppler

Martin Schuppler

Přihlášení k odběru

Nenechte si ujít nejnovější nabídky prodeje pozemků pro bydlení v Králíkách (okr. Ústí nad Orlicí).

Podobné nabídky