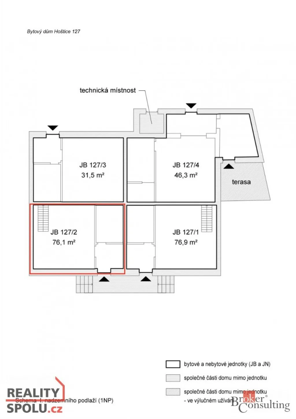
Prodej bytu 2+kk, Hoštice, 76 m2 (ID: 1729596)

Hoštice


1 990 000 Kč /za nemovitost
HYPOTÉKA od 8 894 Kč /měs.

(provizi hradí prodávající)


Regionální dodavatelé v Hošticích

Popis

Prodej bytu 2+kk, 77 m², Hoštice – Klidné a útulné bydlení, skvělá investiční příležitost

Nabízíme k prodeji bytovou jednotku 2+kk o velikosti 77 m² v menším bytovém domě, který se nachází v klidné části obce Hoštice. Byt prošel rekonstrukcí v roce 2024, takže je připraven k okamžitému nastěhování. Díky své dispozici a lokalitě je vhodný nejen k vlastnímu bydlení, ale také jako investiční nemovitost s možností pronájmu.

✅ Dispozice bytu:

Přízemí: kuchyň spojená s obývací částí, koupelna

Podkroví: otevřený prostor, který si nový majitel může vybavit dle svého – například jako obývací část, pracovnu či ložnici

Byt se nachází v klidné lokalitě s dobrou dostupností.

Kroměříž je vzdálená přibližně 15 minut jízdy autem
Otrokovice jsou vzdálené přibližně 20 minut jízdy autem

ℹ️ Poznámka: Výměry uvedené v inzerátu jsou pouze orientační a vycházíme z informací od prodávajícího.

Zaujala vás tato nabídka? Neváhejte mě kontaktovat pro více informací nebo osobní prohlídku!

Cena
1 990 000 Kč /za nemovitost Spočítat hypotéku
Poznámka k ceně
provizi hradí prodávající
Aktualizováno
9. 12. 2025
Adresa
Hoštice
ID
69193
Stavba
Cihlová
Stav objektu
Po rekonstrukci
Patro
1. z 2
Druh objektu
Samostatný
Vlastnictví
Osobní
Užitná plocha
76 m2
Třída energetické náročnosti
G - Mimořádně nehospodárná
Převod do OV

Máte zájem o tuto nemovitost?

Broker Consulting, a.s.

Jiráskovo náměstí 2684/2, Plzeň, Východní Předměstí

Chystáte se prodat nemovitost?
Pomůžeme Vám!
Tímto, v souladu s nařízením Evropského parlamentu a Rady (EU) 2016/679, v platném znění, prohlašuji, že mi je alespoň 16 let a uděluji tak svůj souhlas se zpracováním zadaných údajů (jméno, telefon, e-mail, ip adresa) společnosti B3 Technology, s.r.o., IČ: 07330600, se sídlem Novostavby 126/23, 435 11 Lom (správce dat), za účelem předání dotazu z tohoto formuláře Vámi vybranému inzerentovi a zpětného kontaktování mé osoby. Osobní údaje bude správce zpracovávat manuálně i automaticky přímo prostřednictvím svých zaměstnanců. Informace předané tímto formulářem budou uloženy v databázi správce maximálně po dobu 10 let. Odvolání souhlasu s uložením a zpracováním poskytnutých dat lze e-mailem na info@realitymat.cz. V případě podezření na neoprávněné použití Vámi poskytnutých údajů máte právo předat podnět k šetření Úřadu pro ochranu osobních údajů. Více informací
Chystáte se prodat nemovitost?
Pomůžeme Vám!

Přihlášení k odběru

Nenechte si ujít nejnovější nabídky prodeje bytů 2+kk v Hošticích (okr. Kroměříž).

Podobné nabídky