Prodej bytu 2+kk, Žleby, 58 m2 (ID: 1728116)

Žleby


4 137 822 Kč /za nemovitost
HYPOTÉKA od 18 494 Kč /měs.
Regionální dodavatelé v Žlebech

Popis

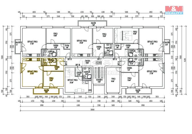
Tento světlý a vzdušný byt 2+kk vznikne v rámci 2. etapy úspěšného v obci Žleby.

Nachází se v 1. nadzemním podlaží (přízemí) zděného bytového domu, což zajišťuje komfortní bydlení bez nutnosti překonávat schody – ideální volba pro ty, kteří upřednostňují pohodlí a snadnou dostupnost.

Byt má celkovou plochu 58,2 m² (byt 48,8 m², dva balkony o ploše 6,6 m², sklep 2,8 m²) a bude připraven k nastěhování na začátku roku 2027.

Díky dvěma balkonům působí byt velmi otevřeně a nabízí příjemné místo k odpočinku na čerstvém vzduchu.

Součástí bytu je vlastní parkovací stání, sklepní kóje a k dispozici jsou i společné prostory domu. Bydlení je energeticky úsporné (třída B), s vlastním plynovým kotlem pro vytápění i ohřev vody.

Obec Žleby nabízí kompletní občanskou vybavenost a výbornou dostupnost do Čáslavi (cca 5 minut). Rezervace je možná již s 13,6 % z kupní ceny, doplatek až po kolaudaci.

Pro více informací kontaktujte makléře nebo navštivte stránky projektu bytyzleby.

Cena
4 137 822 Kč /za nemovitost Spočítat hypotéku
Aktualizováno
10. 3. 2026
Adresa
Žleby
ID
896901
Stavba
Cihlová
Stav objektu
Ve výstavbě
Vybaveno
Ne
Lokalita objektu
Okraj obce
Vlastnictví
Osobní
Užitná plocha
58 m2
Balkon

Máte zájem o tuto nemovitost?

Tímto, v souladu s nařízením Evropského parlamentu a Rady (EU) 2016/679, v platném znění, prohlašuji, že mi je alespoň 16 let a uděluji tak svůj souhlas se zpracováním zadaných údajů (jméno, telefon, e-mail, ip adresa) společnosti B3 Technology, s.r.o., IČ: 07330600, se sídlem Novostavby 126/23, 435 11 Lom (správce dat), za účelem předání dotazu z tohoto formuláře Vámi vybranému inzerentovi a zpětného kontaktování mé osoby. Osobní údaje bude správce zpracovávat manuálně i automaticky přímo prostřednictvím svých zaměstnanců. Informace předané tímto formulářem budou uloženy v databázi správce maximálně po dobu 10 let. Odvolání souhlasu s uložením a zpracováním poskytnutých dat lze e-mailem na info@realitymat.cz. V případě podezření na neoprávněné použití Vámi poskytnutých údajů máte právo předat podnět k šetření Úřadu pro ochranu osobních údajů. Více informací
Chystáte se prodat nemovitost?
Pomůžeme Vám!

Kontakt

Michaela Kalašová

Michaela Kalašová

Přihlášení k odběru

Nenechte si ujít nejnovější nabídky prodeje bytů 2+kk v Žlebech.

Podobné nabídky