Prodej rodinného domu, Kosoř, Štěrková, 160 m2 (ID: 1708879)

Štěrková, Kosoř


13 500 000 Kč /za nemovitost
HYPOTÉKA od 60 337 Kč /měs.
Regionální dodavatelé v Kosoři

Popis

PRAVÁ POLOVINA DOMU JE JIŽ ZAREZERVOVÁNA.


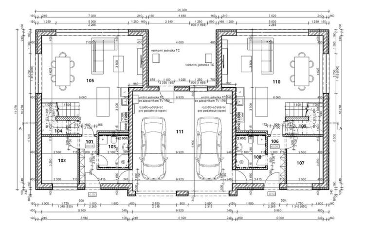
Dovolujeme si Vám nabídnout novostavbu prostorného 6+kk s garáží o celkové podlahové ploše 150 m2.

Dům bude postaven z kvalitních keramických cihel Porotherm s použití technologií tepelného čerpadla. Ty se postarají o snížení měsíčních nákladů na provoz Vaší domácnosti.

Hlavní místností v tomto domě je obývací pokoj spojený s kuchyní o velikosti 38,65 m2, kde budete moci trávit společný čas se svoji rodinou. Je zde velkoformátový HS portál na zahradu, díky kterému budete mít dostatek denního světla a jednoduchý přístup k terase. Orientace JZ.

Další místnost v přízemí je samostatná koupelna se sprchovým koutem, umyvadlem, WC a prostorem pro pračku. V přízemí je i pokoj, který lze využít buď pro návštěvy nebo třeba jako pracovnu. Je zde prostorná chodba, přes kterou vedou dveře do garáže.

V druhém patře jsou 4 pokoje a koupelna s vanou i sprchovým koutem.
V domě bude připraven půdní prostor. Okna jsou orientovaná na SV a JZ

V ceně:

tepelné čerpadlo
podlahy, obklady, dlažba
dveře, zárubně
HS portál
izolační trojskla
příprava na venkovní žaluzie
příprava na kamerový systém
příprava pro video-zvonek
oplocení pozemku
parkovací stání na pozemku
garážová vrata

Pro více informací mě neváhejte kontaktovat. Ráda zašlu podrobné výkresy domu.

Cena
13 500 000 Kč /za nemovitost Spočítat hypotéku
Aktualizováno
13. 1. 2026
Adresa
Štěrková, Kosoř
ID
Kosoř
Stavba
Cihlová
Stav objektu
Novostavba
Lokalita objektu
Klidná část obce
Užitná plocha
150 m2
Zastavěná plocha
110 m2
Podlahová plocha
160 m2
Plocha pozemku
419 m2
Plocha zahrady
309 m2
Třída energetické náročnosti
B - Velmi úsporná
Elektřina
230V
Odpad
Veřejná kanalizace
Doprava
Silnice, MHD, Autobus
Voda
Místní zdroj vody, Retenční nádrž na dešt’ovou vodu
Topné těleso
Podlahové vytápění
Zdroj topení
Tepelné čerpadlo
Zdroj teplé vody
Tepelné čerpadlo
Garáž
Parkování

Máte zájem o tuto nemovitost?

Tímto, v souladu s nařízením Evropského parlamentu a Rady (EU) 2016/679, v platném znění, prohlašuji, že mi je alespoň 16 let a uděluji tak svůj souhlas se zpracováním zadaných údajů (jméno, telefon, e-mail, ip adresa) společnosti B3 Technology, s.r.o., IČ: 07330600, se sídlem Novostavby 126/23, 435 11 Lom (správce dat), za účelem předání dotazu z tohoto formuláře Vámi vybranému inzerentovi a zpětného kontaktování mé osoby. Osobní údaje bude správce zpracovávat manuálně i automaticky přímo prostřednictvím svých zaměstnanců. Informace předané tímto formulářem budou uloženy v databázi správce maximálně po dobu 10 let. Odvolání souhlasu s uložením a zpracováním poskytnutých dat lze e-mailem na info@realitymat.cz. V případě podezření na neoprávněné použití Vámi poskytnutých údajů máte právo předat podnět k šetření Úřadu pro ochranu osobních údajů. Více informací
Chystáte se prodat nemovitost?
Pomůžeme Vám!

Kontakt

Kateřina Kocmanová

Kateřina Kocmanová

Přihlášení k odběru

Nenechte si ujít nejnovější nabídky prodeje rodinných domů v Kosoři.

Podobné nabídky