Prodej činžovního domu, Police nad Metují, U Opatrovny, 800 m2

U Opatrovny, Police nad Metují, okres náchod


Cena na vyžádání /za nemovitost
Získejte výhodnou HYPOTÉKU

(Na vyžádání k jednání)


Regionální dodavatelé v Polici nad Metují

Popis

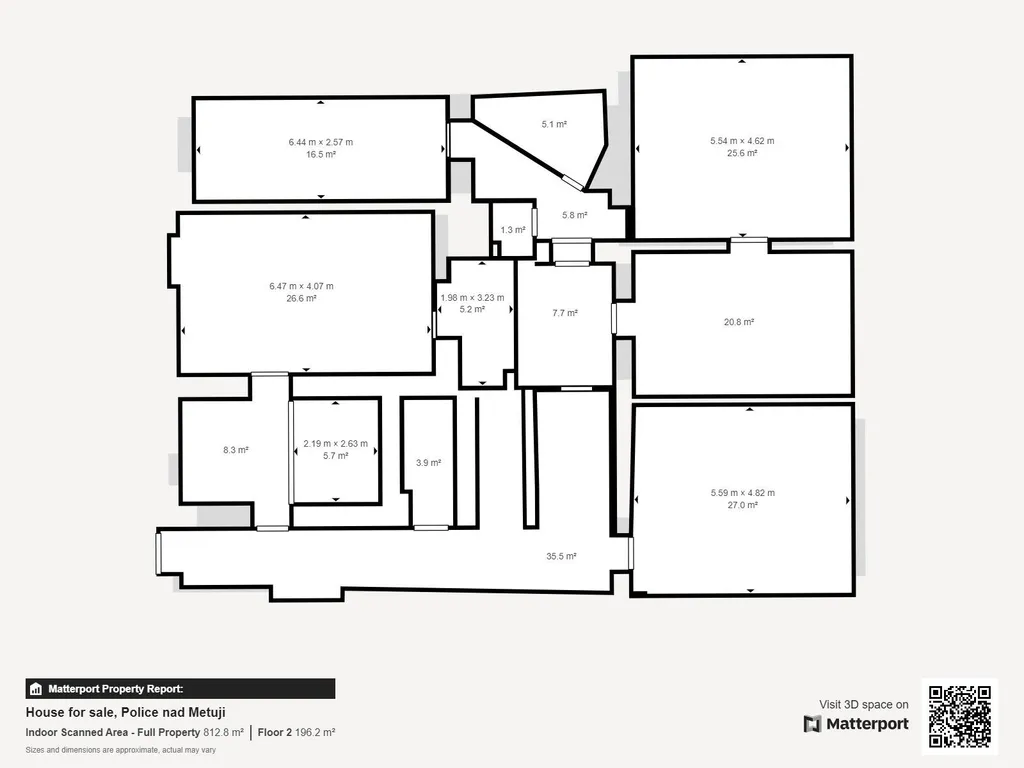
Dovolujeme si Vám nabídnout k prodeji 4 podlažní bytový dům o celkové podlahové ploše 800 m2, v centru města Police nad Metují, nedaleko vyhledávané turistické oblasti Adršpašsko Teplických skal a Broumovských stěn.

Jedná se o nemovitost k rekonstrukci, s potenciálem vybudování 6 až 8 bytových jednotek (2+1, 1kk), což v kombinaci se 3 komerčními prostory v přízemí přináší zajímavý investiční potenciál. Také je nabízí možnost vybodování ubytovacího zařízení s obchody, či restaurací/bistre.
Se svou polohou město, díky novým obchvatům a dálnici, poskytuje výbornou dostupnost veškerých služeb a dopravní spojení pomocí silnic a autobusů.

Užitná plocha domu činí úctyhodných 600 m², tedy 150m² v každém podlaží, což Vás jistě potěší svou velkorysou dispozicí. Celková plocha pozemku činí úctyhodných 749 m², z čehož 500 m² je vyčleněno pro zahradu za domem, přístupnou osobním automobilem, či dodávkou. Je zde tedy možnost parkování pro rezidenty, či ponechání zeleně pro odpočinek a relaxaci.

Doporučujeme osobní prohlídku nemovitosti pro vyhodnocení skutečného potenciálu, který tento velkorysý prostor nabízí.

Přízemí tvoří 3 oddělené prostory, využívané pro podnikání (2 z nich s výlohou do ulice), 1. patro je dispozičně předurčeno k vybudování dvou bytových jednotek 2x 2+1, či 1+1 a 3+1. Ve 2. patře se nachází půdní prostor, rozdělený na jednotlivé koje snadno odstranitelnými dřevěnými příčkami, ve 3. patře pak volný prostor bez příček. Nad 3. patrem se nachází ještě pochozí hambalaka. Ve 2.a 3.patře pak lze vybudovat 4x 2+1, či 6x 1+1 či jejich kombinace.

Průkaz PENB není vypracován, nemovitost tedy spadá podle průkazu do třídy G. Vzhledem k tomu, že je dům postaven před rokem 1947, bude se souhlasem budoucího kupujícího využita vyjímka podle § 7a, odst. 9 zákona č. 406 /2000 Sb.

Pro více informací o této nemovitosti nebo sjednání osobní prohlídky nás prosím kontaktujte nebo vyplňte níže uvedený formulář. Rádi Vám nemovitost ukážeme a pomůžeme s čímkoliv, co budete potřebovat.

Vážným zájemcům případně zašleme VR prohlídku na vyžádání.

Cena
Cena na vyžádání Spočítat hypotéku
Poznámka k ceně
Na vyžádání k jednání
Aktualizováno
18. 3. 2026
Adresa
U Opatrovny, Police nad Metují, okres náchod
ID
932086
Stavba
Smíšená
Stav objektu
Před rekonstrukcí
Typ objektu
Patrový
Vlastnictví
Osobní
Užitná plocha
600 m2
Zastavěná plocha
251 m2
Podlahová plocha
800 m2
Plocha pozemku
749 m2
Plocha nebytových prostor
150 m2
Třída energetické náročnosti
G - Mimořádně nehospodárná
Elektřina
400V
Plyn
Plynovod
Odpad
Veřejná kanalizace
Topení
Jiné
Voda
Vodovod
Parkování

Máte zájem o tuto nemovitost?

Tímto, v souladu s nařízením Evropského parlamentu a Rady (EU) 2016/679, v platném znění, prohlašuji, že mi je alespoň 16 let a uděluji tak svůj souhlas se zpracováním zadaných údajů (jméno, telefon, e-mail, ip adresa) společnosti B3 Technology, s.r.o., IČ: 07330600, se sídlem Novostavby 126/23, 435 11 Lom (správce dat), za účelem předání dotazu z tohoto formuláře Vámi vybranému inzerentovi a zpětného kontaktování mé osoby. Osobní údaje bude správce zpracovávat manuálně i automaticky přímo prostřednictvím svých zaměstnanců. Informace předané tímto formulářem budou uloženy v databázi správce maximálně po dobu 10 let. Odvolání souhlasu s uložením a zpracováním poskytnutých dat lze e-mailem na info@realitymat.cz. V případě podezření na neoprávněné použití Vámi poskytnutých údajů máte právo předat podnět k šetření Úřadu pro ochranu osobních údajů. Více informací
Chystáte se prodat nemovitost?
Pomůžeme Vám!

Kontakt

Petr Michálek

Petr Michálek

Přihlášení k odběru

Nenechte si ujít nejnovější nabídky prodeje činžovních domů v Polici nad Metují.

Podobné nabídky