Prodej pozemku pro bydlení, Praha - Kunratice, Strouhalova, 934 m2 (ID: 1683666)
Strouhalova, Praha 4, Kunratice
Popis
Nabízíme k prodeji pozemek o celkové výměře 934 m2 v oblíbené lokalitě Praha-Kunratice, ulice Strouhalova. Pozemek je připraven k výstavbě, s veškerými inženýrskými sítěmi, což poskytuje ideální podmínky pro realizaci stavebního záměru. Na pozemku byl vypracován projekt pro výstavbu vícegeneračního domu. Pozemek tak přináší jedinečnou příležitost pro investory i zájemce o rodinné bydlení.
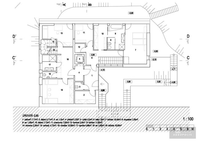
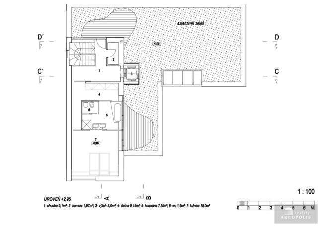
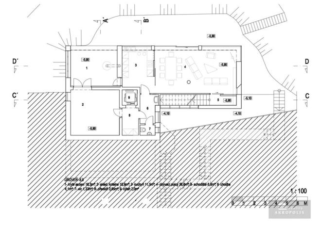
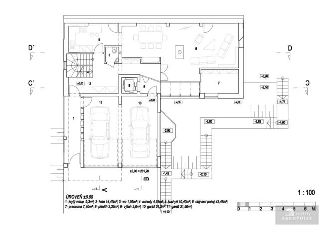
V minulosti bylo vydáno územní rozhodnutí pro výstavbu rodinného domu se čtyřmi podlažími a se 2 bytovými jednotkami a s vestavěnou garáží pro 2 park. stání (Dle stavebního zákona ovšem lze rodinný dům rozdělit až na 3 bytové jednotky). Jedná se o objekt z jedné strany zapuštěný do svahu o 1.PP + 2.NP+podkroví. Na základě vydaného rozhodnutí byla povolena výjimka na vyšší zastavitelnost plochy pozemku na 31,9%. Stavba bude napojena na inženýrské sítě jako je vodovod, kanalizace a elektřina. Pro vytápění budou sloužit 2 vrty pro tepelná čerpadla.
Pozemek je rozdělen do dvou funkčních částí: na části o výměře 465 m2 platí regulativ OB – čistě obytné, což umožňuje výstavbu rodinného domu, a část o velikosti 469 m2 má regulativ ZMK – zeleň městská a krajinná, která nabízí možnosti k vybudování zelené plochy, zahrady nebo parku, čímž se zajišťuje dostatek prostoru pro rekreační účely a příjemné prostředí pro relaxaci.
Lokalita Kunratice je velmi vyhledávanou částí Prahy s kompletní občanskou vybaveností v okolí. V docházkové vzdálenosti se nacházejí mateřské a základní školy, což ocení především rodiny s dětmi. Pro sportovní nadšence jsou v blízkosti různé sportovní areály, hřiště, a možnost krásných procházek nebo cyklistiky v okolí Kunratického lesa. Kunratice jsou známé také svou přátelskou komunitou a příjemným prostředím.
V okolí najdete také širokou nabídku obchodů a supermarketů, které vám zajistí pohodlné nákupy bez nutnosti dojíždět. V oblasti se nachází pošta, lékařské služby a několik restaurací a kaváren, které přináší pohodlí a komfort pro každodenní potřeby obyvatel. Dopravní dostupnost do centra Prahy je velmi dobrá, s pravidelnými autobusovými linkami MHD (linky193 a 203) směřujícími na stanici metra Kačerov (linka C), což zajišťuje snadný přístup do města i širšího okolí.
Tento pozemek nabízí ideální kombinaci klidného prostředí, dostupnosti veškerých služeb a výborné dopravní dostupnosti do centra Prahy.
Máte zájem o tuto nemovitost?

Pštrossova 6/1925, Praha
Pomůžeme Vám!
Pomůžeme Vám!
Kontakt

Jan Hrnčíř
Přihlášení k odběru
Nenechte si ujít nejnovější nabídky prodeje pozemků pro bydlení v Praze 4.
Podobné nabídky

Prodej pozemku pro bydlení, Praha, 6104 m2
37 900 000 Kč