Prodej rodinného domu, Vratimov - Horní Datyně, Emana Slívy, 198 m2

Emana Slívy, Horní Datyně


7 500 000 Kč /za nemovitost
HYPOTÉKA od 33 520 Kč /měs.
Regionální dodavatelé v Vratimově

Popis

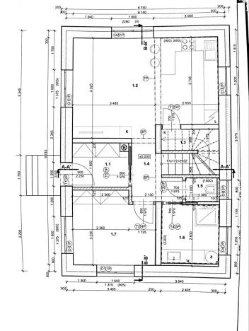
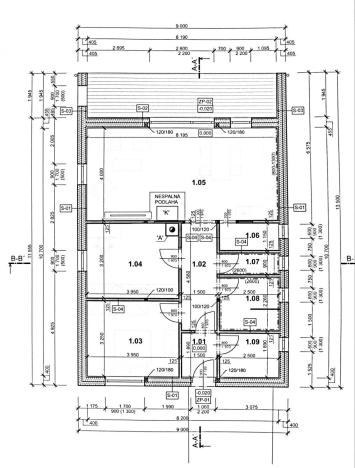
K prodeji pro Vás máme dva rozestavěné rodinné domy na pozemku o výměře 2435 m2.

K dispozici kompletní projektová dokumentace, platné stavební povolení. Původní záměr je Rodinný dům a dům pro hosty. Možno také dokončit jako dva samostatné rodinné domy. Pozemek je dostatečně velký. V obci Vratimov je povolená zastavěnost 50% a minimální velikost pozemku 1000 m2.

Dům 1 je dvoupodlažní, o zastavěné ploše 77 m2, podlahová plocha 114 m2, v interiéru je již konstrukce schodiště,
Dům 2 je jednopodlažní o zastavěné ploše 120 m2, podlahová plocha 84 m2 + terasa.

Oba domy jsou napojeny na inženýrské sítě, voda, kanalizace. Elektřina na pozemku. V objektech je komín Schiedel UNI l s přípravou na krbová kamna, Okna - plastová s trojskly. Materiál na podlahové topení je částečně připraven,. stejně jako množství dalších potřebných materiálů k dokončení. omítek, fasády - nutno vidět.

Okolí tvoří zástavba rodinných domů, louky. pole, krajina má až venkovský ráz. Přesto je zde v dosahu ve Vratimově, cca 3 km, autem, MHD, kompletní síť obchodů, služeb, školy, školky, kulturní dům, kino, knihovna, městský úřad, zdravotnická zařízení. Ostrava, Frýdek - Místek, Havířov - vše do 15 minut. Ideální místo pro rodinné bydlení.

S financováním rádi pomůžeme, máme dlouholeté zkušenosti a najdeme Vám nejlepší řešení.

Těšíme se na Vás na prohlídce.

Cena
7 500 000 Kč /za nemovitost Spočítat hypotéku
Aktualizováno
5. 12. 2025
Adresa
Emana Slívy, Horní Datyně
ID
403
Stavba
Cihlová
Stav objektu
Novostavba
Typ objektu
Patrový
Druh objektu
Samostatný
Užitná plocha
220 m2
Zastavěná plocha
197 m2
Podlahová plocha
198 m2
Plocha pozemku
2233 m2
Plocha zahrady
2036 m2
Komunikace
Štěrková, Asfaltová
Doprava
Silnice, MHD, Autobus
Bezbarierový přístup

Máte zájem o tuto nemovitost?

Tímto, v souladu s nařízením Evropského parlamentu a Rady (EU) 2016/679, v platném znění, prohlašuji, že mi je alespoň 16 let a uděluji tak svůj souhlas se zpracováním zadaných údajů (jméno, telefon, e-mail, ip adresa) společnosti B3 Technology, s.r.o., IČ: 07330600, se sídlem Novostavby 126/23, 435 11 Lom (správce dat), za účelem předání dotazu z tohoto formuláře Vámi vybranému inzerentovi a zpětného kontaktování mé osoby. Osobní údaje bude správce zpracovávat manuálně i automaticky přímo prostřednictvím svých zaměstnanců. Informace předané tímto formulářem budou uloženy v databázi správce maximálně po dobu 10 let. Odvolání souhlasu s uložením a zpracováním poskytnutých dat lze e-mailem na info@realitymat.cz. V případě podezření na neoprávněné použití Vámi poskytnutých údajů máte právo předat podnět k šetření Úřadu pro ochranu osobních údajů. Více informací
Chystáte se prodat nemovitost?
Pomůžeme Vám!

Kontakt

Mgr. Klára Krystýnková

Mgr. Klára Krystýnková

Přihlášení k odběru

Nenechte si ujít nejnovější nabídky prodeje rodinných domů v Vratimově.

Podobné nabídky