Prodej pozemku pro bydlení, Kamenice - Těptín, Višňovka I, 615 m2

Višňovka I, Kamenice, Těptín


4 790 000 Kč /za nemovitost
HYPOTÉKA od 21 408 Kč /měs.
Regionální dodavatelé v Kamenici

Popis

Hledáte pozemek umístěný v klidné části s výhledem, s inženýrskými sítěmi a chcete začít hned stavět?

Pak je pro vás ideální pozemek v Kamenici - Těptíně, který vše výše uvedené splňuje. Aktuální vlastník zde nechal vypracovat stavební povolení na kompletní přestavbu chaty a to na dům vhodný k bydlení. Dům si můžete nechat postavit od firmy, která projekt zpracovala, nebo jakoukoliv jinou cestou, majitelé vše ostatní připravili, stavbu můžete zahájit prakticky ihned. Náklad pro stavbu na klíč činí dle rozpočtu 4,5 mio Kč.

Navržená stavba je moderním rekreačním domem, který však může sloužit i pro trvalé bydlení. Dům o zastavěné ploše 80m2, funkční uspořádání odpovídá velkorysé dispozici 3+kk. Dům se rozkládá do dvou podlaží, část přízemí je otevřena až do krovu. Rád Vám poskytnu projektovou dokumentaci a podklady ke stavebnímu povolení. Výsledná stavba lze upravit formou změny stavby před dokončením, nebo postavit dům úplně odlišný.

Elektrická energie je zavedena do stávajícího objektu, vodovod a kanalizace je v příjezdové obecní komunikaci, je možné se jednoduše připojit. Nad rámec toho je na pozemku studna, vhodná třeba na zalévání, nebo jako voda do bazénu.

Díky odlišné výšce okolních pozemků je zde příjemné soukromí. Na pozemku již proběhly nákladné terénní úpravy, tím vznikl dostatek místa pro realizaci stavby.

Pozemek se nachází v lokalitě na okraji Těptína, která dříve sloužila pro rekreaci, v dnešní době se transformuje na plochu pro trvalé bydlení.

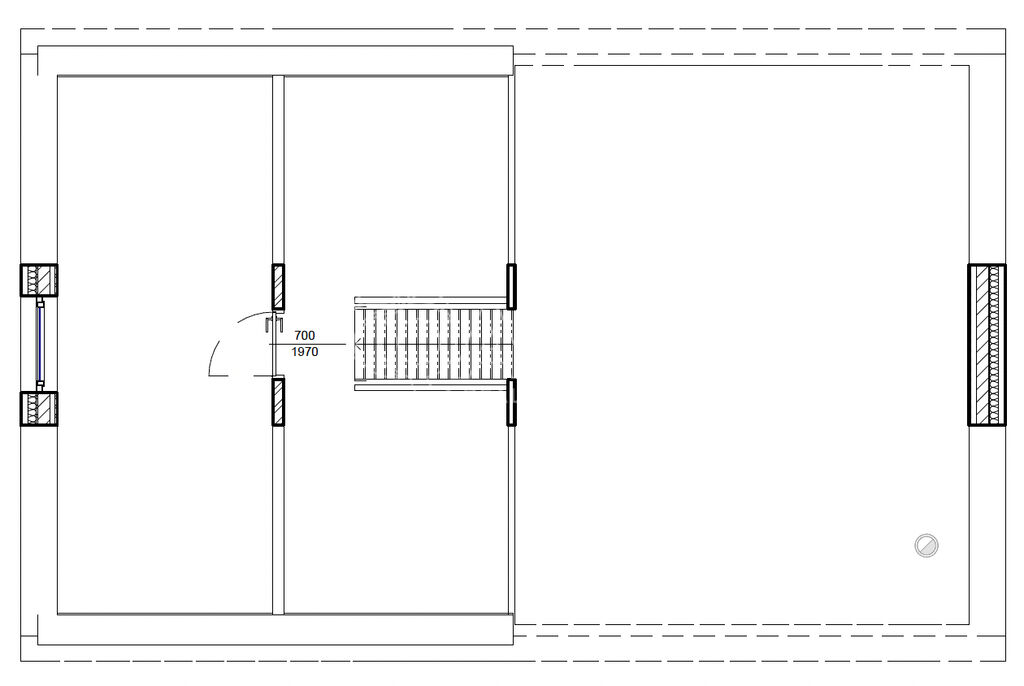
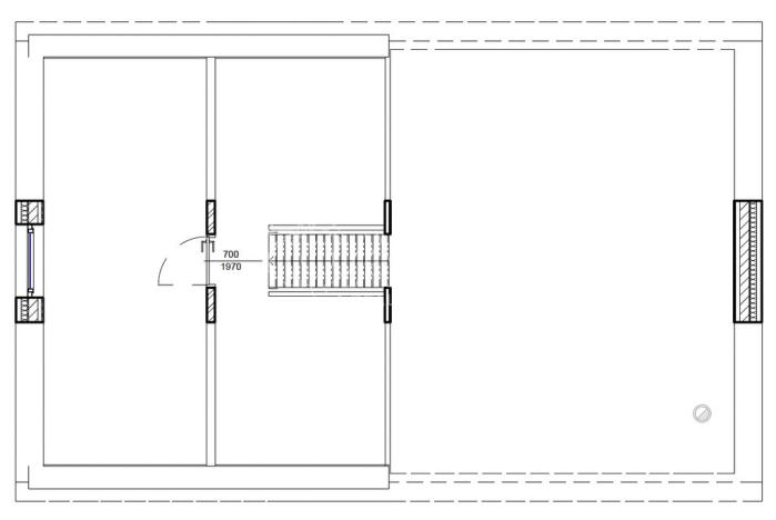
V galerii také naleznete náhled půdorysu a 3D vizualizace od firmy Prefast, která vytvořila stavbu na klíč dle požadavků územního plánu. Celková cena této stavby vč. DPH činí 4 465 440,- Kč.

V Těptíně najdete soukromou základní školu, potraviny. Širší vybavenost je pak v nedaleké Kamenici, několik supermarketů, státní základní škola, restaurace.
Spojení do Prahy zajišťuje autobus - 45 minut. Okolní lesy jsou skvělé pro toulky přírodou, výlety na kole, nebo cokoliv dalšího, co vás napadne.

Cena
4 790 000 Kč /za nemovitost Spočítat hypotéku
Aktualizováno
10. 12. 2025
Adresa
Višňovka I, Kamenice, Těptín
ID
13465
Lokalita objektu
Klidná část obce
Plocha pozemku
615 m2
Odpad
Veřejná kanalizace
Komunikace
Asfaltová, Šotolina
Telekomunikace
Internet, Satelit
Voda
Vodovod, Studna
Převod do OV

Máte zájem o tuto nemovitost?

Tímto, v souladu s nařízením Evropského parlamentu a Rady (EU) 2016/679, v platném znění, prohlašuji, že mi je alespoň 16 let a uděluji tak svůj souhlas se zpracováním zadaných údajů (jméno, telefon, e-mail, ip adresa) společnosti B3 Technology, s.r.o., IČ: 07330600, se sídlem Novostavby 126/23, 435 11 Lom (správce dat), za účelem předání dotazu z tohoto formuláře Vámi vybranému inzerentovi a zpětného kontaktování mé osoby. Osobní údaje bude správce zpracovávat manuálně i automaticky přímo prostřednictvím svých zaměstnanců. Informace předané tímto formulářem budou uloženy v databázi správce maximálně po dobu 10 let. Odvolání souhlasu s uložením a zpracováním poskytnutých dat lze e-mailem na info@realitymat.cz. V případě podezření na neoprávněné použití Vámi poskytnutých údajů máte právo předat podnět k šetření Úřadu pro ochranu osobních údajů. Více informací
Chystáte se prodat nemovitost?
Pomůžeme Vám!

Kontakt

Ondřej Petr

Ondřej Petr

Přihlášení k odběru

Nenechte si ujít nejnovější nabídky prodeje pozemků pro bydlení v Kamenici (okr. Praha-východ).

Podobné nabídky