Prodej rodinného domu, Mikulov, Vídeňská, 490 m2
Vídeňská, Mikulov
Popis
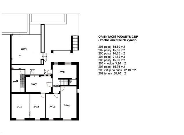
Nabízíme k prodeji rozlehlý objekt v historickém centru Mikulova s krásnými výhledy na Svatý kopeček. Jedná se o částečně podsklepený rodinný dům se dvěma dvěma nadzemními podlažími a sedlovou střechou s dosud nevyužitým podkrovím. Dům je stavebně propojen s přilehlou dílnou, která ústí do souběžné ulice. Z této ulice je také vybudován krytý průjezd do dvora, který v minulosti sloužil jako garáž. Díky širokému vjezdu, lze k parkování využít i již zmíněnou dílnu s montážní jámou. Zejména v letních měsících oceníte možnost využití dvou vyvýšených teras s krásnými výhledy, z nichž jedna je zastřešená. Dům disponuje dvěma samostatnými vchody z ulice, což může být výhodou jak při komerčním využití, tak u vícegeneračního bydlení, či penzionu. Nemovitost, jenž v minulosti sloužila jak k bydlení, tak ke komerci v současné chvíli čeká na kompletní rekonstrukci. Máte tak jedinečnou příležitost vtisknout jí nový vzhled a využít její potenciál i umístění v centru turisticky oblíbeného města.
Pokud vás nemovitost zaujala a rádi by jste si ji prohlédli osobně, tak neváhejte a domluvte si s námi prohlídku ještě dnes.
Financování nemovitosti zajistíme.
Klasifikační třída ukazatele energetické náročnosti: G – realitní kancelář neobdržela grafickou část průkazu energetické náročnosti budovy a proto uvádí nejhorší klasifikační třídu.
Máte zájem o tuto nemovitost?

Kostelní nám. 12/5, Mikulov
Pomůžeme Vám!
Pomůžeme Vám!
Kontakt

Dagmar Novotná
Přihlášení k odběru
Nenechte si ujít nejnovější nabídky prodeje rodinných domů v Mikulově (okr. Břeclav).
Tipy Realitymatu

Prodej rodinného domu, Velké Pavlovice, 106 m2
9 900 000 Kč
Podobné nabídky

Prodej rodinného domu, Mikulov, 150 m2
6 750 000 Kč

Prodej rodinného domu, Mikulov, Pod Platanem, 140 m2
11 500 000 Kč

Prodej rodinného domu, Mikulov, Brněnská, 130 m2
9 900 000 Kč

Prodej rodinného domu, Mikulov, Sadová, 168 m2
9 500 000 Kč