Pronájem skladu, Jirkov, Mostecká, 380 m2 (ID: 1230053)

Mostecká,


22 800 Kč /za měsíc
Získejte výhodnou HYPOTÉKU

(Cena bez energii 22 800,-Kč, provize pro RK 1452,-Kč včetně DPH.)


Regionální dodavatelé v Jirkově

Okna a dveře

Rekonstrukce

Zámečnické práce

Popis

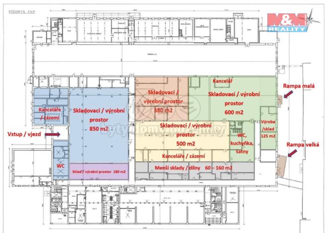
Nabízíme k pronájmu nebytové prostory bez kauce, jedná se o skladové prostory o velikosti 380 m2 v přízemí objektu. Objekt je v uzavřeném, oploceném areálu.
V nabídce je několik typů výrobních a skladovacích prostor od menších až po velké haly, které jsou vhodné jak k uskladnění materiálu či zboží, tak i k výrobě.
Vjezd je vhodný i pro kamiony

Cena
22 800 Kč /za měsíc
Poznámka k ceně
Cena bez energii 22 800,-Kč, provize pro RK 1452,-Kč včetně DPH.
Aktualizováno
7. 11. 2024
Adresa
Mostecká, <![CDATA[ Jirkov ]]>
ID
854984
Stavba
Panelová
Stav objektu
Dobrý
Vybaveno
Ne
Lokalita objektu
Klidná část obce
Vlastnictví
Osobní
Užitná plocha
380 m2
Plocha pozemku
431 m2

Máte zájem o tuto nemovitost?

Tímto, v souladu s nařízením Evropského parlamentu a Rady (EU) 2016/679, v platném znění, prohlašuji, že mi je alespoň 16 let a uděluji tak svůj souhlas se zpracováním zadaných údajů (jméno, telefon, e-mail, ip adresa) společnosti B3 Technology, s.r.o., IČ: 07330600, se sídlem Novostavby 126/23, 435 11 Lom (správce dat), za účelem předání dotazu z tohoto formuláře Vámi vybranému inzerentovi a zpětného kontaktování mé osoby. Osobní údaje bude správce zpracovávat manuálně i automaticky přímo prostřednictvím svých zaměstnanců. Informace předané tímto formulářem budou uloženy v databázi správce maximálně po dobu 10 let. Odvolání souhlasu s uložením a zpracováním poskytnutých dat lze e-mailem na info@realitymat.cz. V případě podezření na neoprávněné použití Vámi poskytnutých údajů máte právo předat podnět k šetření Úřadu pro ochranu osobních údajů. Více informací
Chystáte se prodat nemovitost?
Pomůžeme Vám!

Kontakt

Anna Fléglová

Anna Fléglová

Přihlášení k odběru

Nenechte si ujít nejnovější nabídky pronájmu skladů v Jirkově.

Podobné nabídky