Pronájem skladu, Jirkov, Mostecká, 155 m2 (ID: 1230054)

Mostecká, Jirkov


9 300 Kč /za měsíc
Získejte výhodnou HYPOTÉKU

(Cena bez energii)


Regionální dodavatelé v Jirkově

Okna a dveře

Rekonstrukce

Zámečnické práce

Popis

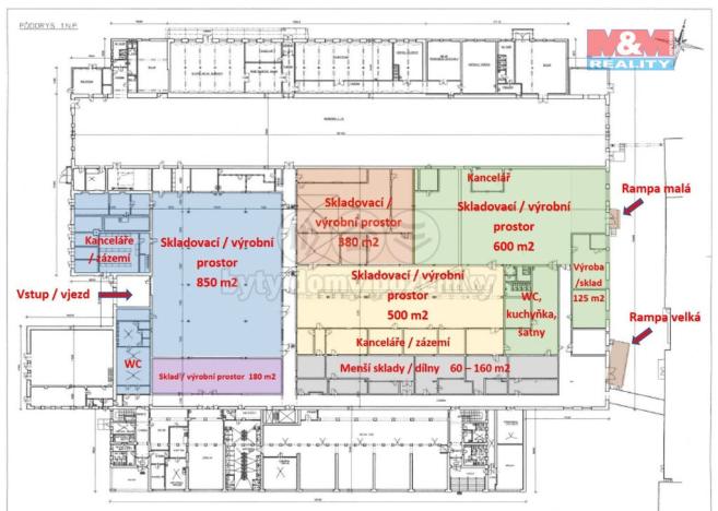
Nabízíme k pronájmu nebytové prostory bez kauce, jedná se o skladové prostory o velikosti 155m2 v přízemí objektu. Objekt je v uzavřeném, oploceném areálu.
V nabídce je několik typů výrobních a skladovacích prostor od menších až po velké haly, které jsou vhodné jak k uskladnění materiálu či zboží, tak i k výrobě.
Vjezd je vhodný i pro kamiony. Pro více informací kontaktujte makléře.

Cena
9 300 Kč /za měsíc
Poznámka k ceně
Cena bez energii
Aktualizováno
27. 5. 2025
Adresa
Mostecká, Jirkov
ID
854982
Stavba
Panelová
Stav objektu
Dobrý
Vybaveno
Ne
Lokalita objektu
Klidná část obce
Vlastnictví
Osobní
Užitná plocha
155 m2
Plocha pozemku
431 m2

Máte zájem o tuto nemovitost?

Tímto, v souladu s nařízením Evropského parlamentu a Rady (EU) 2016/679, v platném znění, prohlašuji, že mi je alespoň 16 let a uděluji tak svůj souhlas se zpracováním zadaných údajů (jméno, telefon, e-mail, ip adresa) společnosti B3 Technology, s.r.o., IČ: 07330600, se sídlem Novostavby 126/23, 435 11 Lom (správce dat), za účelem předání dotazu z tohoto formuláře Vámi vybranému inzerentovi a zpětného kontaktování mé osoby. Osobní údaje bude správce zpracovávat manuálně i automaticky přímo prostřednictvím svých zaměstnanců. Informace předané tímto formulářem budou uloženy v databázi správce maximálně po dobu 10 let. Odvolání souhlasu s uložením a zpracováním poskytnutých dat lze e-mailem na info@realitymat.cz. V případě podezření na neoprávněné použití Vámi poskytnutých údajů máte právo předat podnět k šetření Úřadu pro ochranu osobních údajů. Více informací
Chystáte se prodat nemovitost?
Pomůžeme Vám!

Kontakt

Anna Fléglová

Anna Fléglová

Přihlášení k odběru

Nenechte si ujít nejnovější nabídky pronájmu skladů v Jirkově.

Podobné nabídky