Pronájem obchodního prostoru, Havířov - Město, Mickiewiczova, 40 m2

Mickiewiczova, Havířov, Město


8 000 Kč /za měsíc
Získejte výhodnou HYPOTÉKU

(+ energie a služby)


Regionální dodavatelé v Havířově

Popis

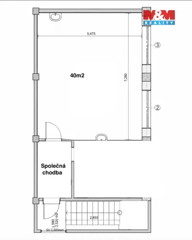
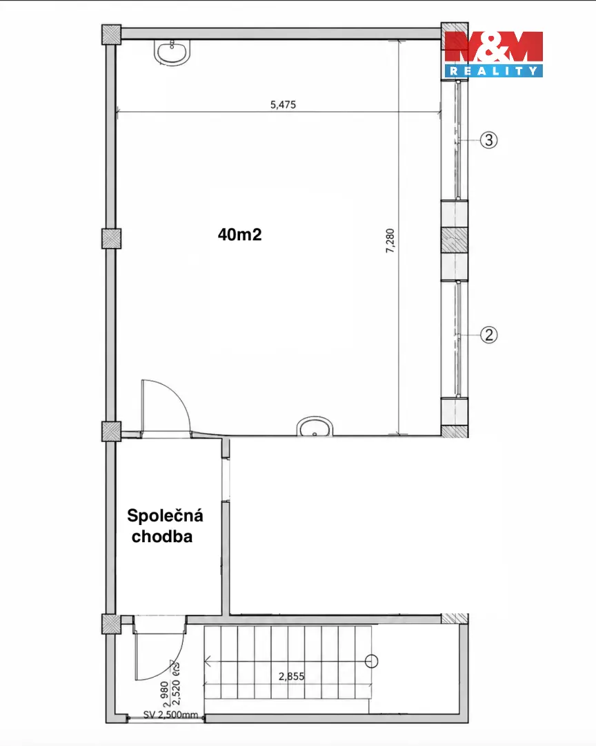
Pronájem komerčního prostoru 40 m² v centru Havířova. Jedna prostorná místnost v 1. NP cihlového domu (z 2 nadzemních podlaží). Vhodné pro obchod, kancelář nebo služby. Doposud prostor sloužil jako tatérské studio. Součástí je menší kuchyňka, dvě umyvadla, bar, a kancelářský stůl se zídkou. Strategická poloha s výbornou dostupností. Fotografie jsou upraveny o aktuální vybavení tatérky. Některé detaily nemusí odpovídat zcela přesně. Pro více informací a domluvení prohlídky kontaktujte makléře. Cena nájmu je bez služeb a energií. Provize RK ve výši jednoho nájmu.

Cena
8 000 Kč /za měsíc
Poznámka k ceně
+ energie a služby
Aktualizováno
29. 4. 2026
Adresa
Mickiewiczova, Havířov, Město
ID
941223
Stavba
Cihlová
Stav objektu
Velmi dobrý
Vybaveno
Ne
Lokalita objektu
Centrum obce
Vlastnictví
Osobní
Užitná plocha
40 m2

Máte zájem o tuto nemovitost?

Tímto, v souladu s nařízením Evropského parlamentu a Rady (EU) 2016/679, v platném znění, prohlašuji, že mi je alespoň 16 let a uděluji tak svůj souhlas se zpracováním zadaných údajů (jméno, telefon, e-mail, ip adresa) společnosti B3 Technology, s.r.o., IČ: 07330600, se sídlem Novostavby 126/23, 435 11 Lom (správce dat), za účelem předání dotazu z tohoto formuláře Vámi vybranému inzerentovi a zpětného kontaktování mé osoby. Osobní údaje bude správce zpracovávat manuálně i automaticky přímo prostřednictvím svých zaměstnanců. Informace předané tímto formulářem budou uloženy v databázi správce maximálně po dobu 10 let. Odvolání souhlasu s uložením a zpracováním poskytnutých dat lze e-mailem na info@realitymat.cz. V případě podezření na neoprávněné použití Vámi poskytnutých údajů máte právo předat podnět k šetření Úřadu pro ochranu osobních údajů. Více informací
Chystáte se prodat nemovitost?
Pomůžeme Vám!

Kontakt

Bc. Jennifer Matzkeová

Bc. Jennifer Matzkeová

Přihlášení k odběru

Nenechte si ujít nejnovější nabídky pronájmu obchodních prostor v Havířově.

Podobné nabídky