Soccer reality

Pronájem bytu 2+kk, Praha - Běchovice, Mladých Běchovic, 51 m2

Mladých Běchovic, Praha, Běchovice


21 000 Kč /za měsíc
Získejte výhodnou HYPOTÉKU
Regionální dodavatelé v Praze 9

Stěhovací služby

Výkup a prodej starého nábytku

Popis

K nastěhování ihned.

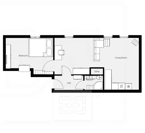
Nabízíme Vám k pronájmu byt 2+kk s obytnou plochou 51 m², situovaný v posledním patře cihlového domu s výtahem, v ulici Mladých Běchovic 2a. Byt se sestává ze vstupní chodby, koupelny se sprchovým koutem a toaletou, ložnice a obývacím prostorem propojeným s kuchyní vybavenou elektrickým sporákem, troubou, myčkou nádobí a lednicí. V obývacím pokoji najdeme pohovku, vestavnou skříň s pračkou a kancelářský kout. Ložnice nabízí další úložné prostory a postel. Cca 1 rok stará matrace může v bytě zůstat, nebo jí můžete vyhodit.

Měsíční nájem činí 21 000 Kč. Poplatky za služby ve výši 3 200 Kč - Elektrická energie se převádí na nájemníky. Vratná kauce. Provize RK 24 000 Kč + DPH.

Byt se nachází v bytovém komplexu 2 minuty chůze od vlakového nádraží Běchovice - město. 1 minutu chůze najdeme zastávku bus na černý most a do centra města.

Nechcete ztrácet čas? V případě zájmu Vám rád pošlu odkaz na virtuální prohlídku, abyste měli úplnou představu o nabízené nemovitosti.

Byt je spravován společností Bohemian Estates, která zajišťuje profesionální správu této nemovitosti. Nájemcům je k dispozici kontaktní osoba, která pomáhá s řešením všech běžných záležitostí spojených s nájmem – od administrativy až po zajištění oprav a údržby. V případě potřeby zajistíme prověřené dodavatele pro servisní zásahy či opravy, což nájemníkům usnadňuje řešení běžných situací spojených s užíváním bytu.
V případě zájmu o tuto nemovitost prosíme o uvedení základních informací (zda Vám vyhovuje počátek nájmu; počet osob, které by byt obývaly, zaměstnání, zda máte domácího mazlíčka).

Dle požadavků majitele musí mít nájemce rejstřík exekucí/trestů/insolvencí bez záznamu. Dlouhodobý pronájem vítán.

Cena
21 000 Kč /za měsíc
Náklady na bydlení
Měsíční nájem činí 21 000 Kč. Poplatky za služby ve výši 3 200 Kč - Elektrická energie se převádí na nájemníky. Vratná kauce. Provize RK 24 000 Kč + DPH
Aktualizováno
25. 4. 2026
Adresa
Mladých Běchovic, Praha, Běchovice
ID
N09153
Stavba
Cihlová
Stav objektu
Dobrý
Patro
4. z 4
Vybaveno
Ano
Lokalita objektu
Klidná část obce
Vlastnictví
Osobní
Užitná plocha
51 m2
Podlahová plocha
51 m2
Třída energetické náročnosti
G - Mimořádně nehospodárná
Výtah

Máte zájem o tuto nemovitost?

Tímto, v souladu s nařízením Evropského parlamentu a Rady (EU) 2016/679, v platném znění, prohlašuji, že mi je alespoň 16 let a uděluji tak svůj souhlas se zpracováním zadaných údajů (jméno, telefon, e-mail, ip adresa) společnosti B3 Technology, s.r.o., IČ: 07330600, se sídlem Novostavby 126/23, 435 11 Lom (správce dat), za účelem předání dotazu z tohoto formuláře Vámi vybranému inzerentovi a zpětného kontaktování mé osoby. Osobní údaje bude správce zpracovávat manuálně i automaticky přímo prostřednictvím svých zaměstnanců. Informace předané tímto formulářem budou uloženy v databázi správce maximálně po dobu 10 let. Odvolání souhlasu s uložením a zpracováním poskytnutých dat lze e-mailem na info@realitymat.cz. V případě podezření na neoprávněné použití Vámi poskytnutých údajů máte právo předat podnět k šetření Úřadu pro ochranu osobních údajů. Více informací
Chystáte se prodat nemovitost?
Pomůžeme Vám!

Kontakt

Josef Vojtíšek

Josef Vojtíšek

Přihlášení k odběru

Nenechte si ujít nejnovější nabídky pronájmu bytů 2+kk v Praze 9.

Podobné nabídky