Pronájem bytu 1+1, Praha - Smíchov, Hořejší nábřeží, 37 m2

Hořejší nábřeží, Smíchov - Praha 5


18 000 Kč /za měsíc
Získejte výhodnou HYPOTÉKU

(vratná jistota, náklady na bydlení 6364 Kč, poplatek za podnájem)


Regionální dodavatelé v Praze 5

Stěhovací služby

Výkup a prodej starého nábytku

Popis

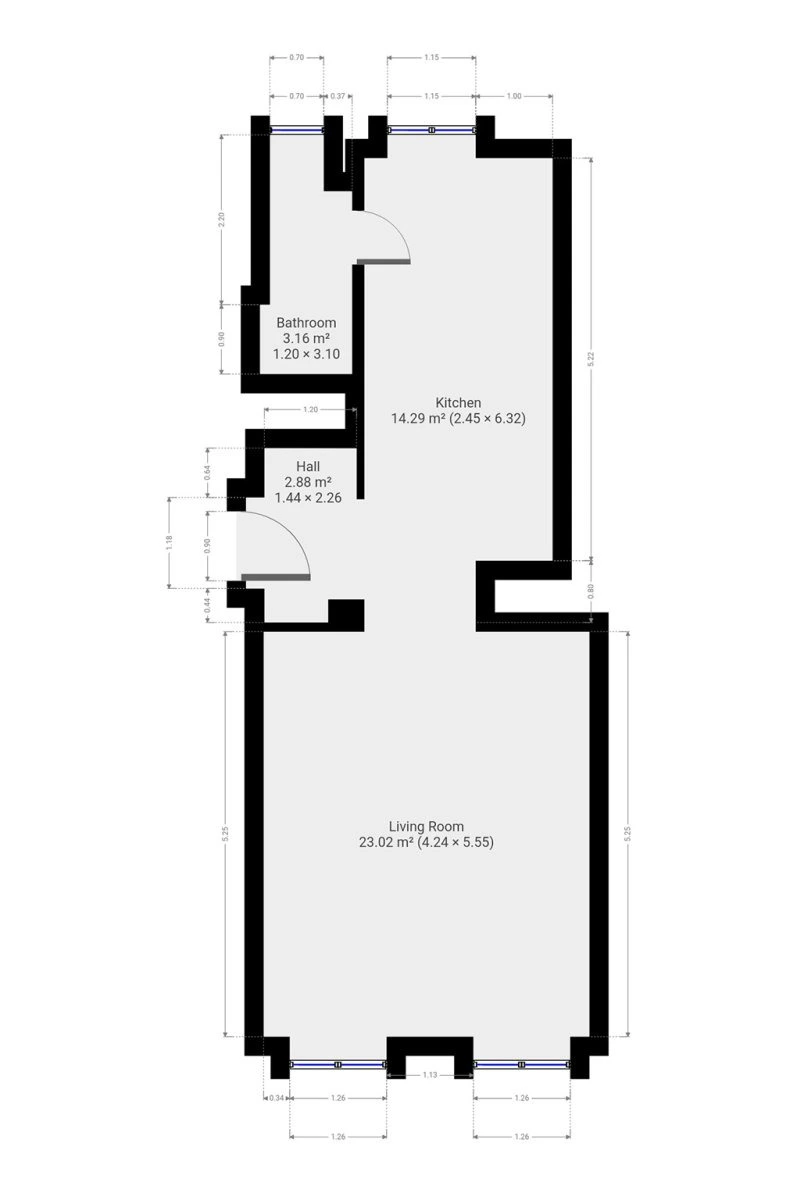
K dlouhodobému podnájmu nabízíme prostorný byt o dispozici 1+1 v oblíbené lokalitě Praha - Smíchov. Byt o celkové výměře 37 m2 se nachází v prvním patře cihlového domu.

V kuchyni se nachází trouba se sklokeramickou varnou deskou (Pračka na fotkách není součástí vybavení). Ložnice je nevybavená. Koupelna s toaletou disponuje sprchou, umyvadlem a zrcadlem.

V blízkosti bytu se nachází smíchovská náplavka, restaurace, potraviny, kavárny a park. Dále pak nákupní centrum Nový Smíchov s hypermarketem a kinem. Dopravní dostupnost zajišťuje zastávka Zborovská a metro Anděl/Palackého náměstí.

Byt je volný od 1.7.2026.

Uvedena energetická kategorie G, jelikož nemáme k dispozici PENB.

Byt pronajímá Ideální nájemce - služba, se kterou budete bydlet bezstarostně a za férových podmínek. Když se něco přihodí, k dispozici jsou správci, kteří s vámi vše vyřeší. Pomůžeme s veškerou administrativou, s nastavením plateb a zajistíme vám speciální pojištění. Pojďte bydlet s námi!

Cena
18 000 Kč /za měsíc
Poznámka k ceně
vratná jistota, náklady na bydlení 6364 Kč, poplatek za podnájem
Aktualizováno
23. 4. 2026
Adresa
Hořejší nábřeží, Smíchov - Praha 5
ID
N2878
Stavba
Cihlová
Stav objektu
Velmi dobrý
Patro
1. z 5
Vybaveno
Částečně
Typ objektu
Patrový
Lokalita objektu
Centrum obce
Vlastnictví
Osobní
Užitná plocha
37 m2
Podlahová plocha
37 m2
Elektřina
230V
Topení
Lokální elektrické
Doprava
Vlak, Dálnice, Silnice, MHD, Autobus
Výtah

Máte zájem o tuto nemovitost?

Tímto, v souladu s nařízením Evropského parlamentu a Rady (EU) 2016/679, v platném znění, prohlašuji, že mi je alespoň 16 let a uděluji tak svůj souhlas se zpracováním zadaných údajů (jméno, telefon, e-mail, ip adresa) společnosti B3 Technology, s.r.o., IČ: 07330600, se sídlem Novostavby 126/23, 435 11 Lom (správce dat), za účelem předání dotazu z tohoto formuláře Vámi vybranému inzerentovi a zpětného kontaktování mé osoby. Osobní údaje bude správce zpracovávat manuálně i automaticky přímo prostřednictvím svých zaměstnanců. Informace předané tímto formulářem budou uloženy v databázi správce maximálně po dobu 10 let. Odvolání souhlasu s uložením a zpracováním poskytnutých dat lze e-mailem na info@realitymat.cz. V případě podezření na neoprávněné použití Vámi poskytnutých údajů máte právo předat podnět k šetření Úřadu pro ochranu osobních údajů. Více informací
Chystáte se prodat nemovitost?
Pomůžeme Vám!

Kontakt

Miloslava Kačerová

Miloslava Kačerová

Přihlášení k odběru

Nenechte si ujít nejnovější nabídky pronájmu bytů 1+1 v Praze 5.

Podobné nabídky