Dražba bytu 2+kk, Zlín, Lorencova, 65 m2 (ID: 2144653)

Lorencova, Zlín


5 135 200 Kč /za nemovitost
Získejte výhodnou HYPOTÉKU

(včetně provize)


Regionální dodavatelé v Zlíně

Popis

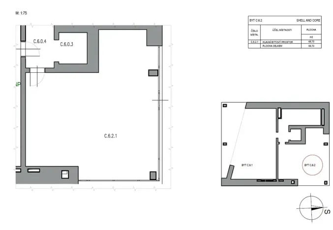
Bytová jednotka č. 3791/129 o dispozici 2+kk a podlahové ploše 65,7 m2, situovanou v 6. nadzemním podlaží moderního bytového domu na ulici Lorencova v centru Zlína.

Dispozice a stav bytu:
Byt je řešen jako nadstandardně prosvětlené praktické 2+kk s dostatečnou výměrou, která umožňuje komfortní bydlení jednotlivci i páru. Jednotka je aktuálně ve fázi rozestavěnosti přibližně 70 %. To představuje ideální příležitost pro dokončení dle vlastních představ a standardu budoucího vlastníka. V bytě jsou dokončeny nosné konstrukce, okna, základní rozvody a část instalací. Naopak chybí finální povrchy podlah, kompletní vnitřní povrchové úpravy, sanitární vybavení, kuchyňská linka a část technologií. Tento stav umožňuje přizpůsobení interiéru individuálním požadavkům.

Příslušenství:
K bytové jednotce pak náleží garážové parkovací stání P36 a odpovídající spoluvlastnický podíl na společných částech domu a pozemku.

Bytový dům:
Dům je zděné konstrukce, má 11 podlaží a je rozdělen do několika funkčních celků. Objekt je zateplen kontaktním zateplovacím systémem, disponuje výtahem a moderním architektonickým řešením. Součástí domu jsou rovněž nebytové prostory a technické zázemí.

Lokalita:
Nemovitost se nachází ve vyhledávané části města s kompletní občanskou vybaveností v bezprostředním okolí. V docházkové vzdálenosti je zastávka MHD, obchody, služby i další občanská infrastruktura. Výborné napojení na hlavní dopravní tahy zajišťuje pohodlné spojení v rámci města i mimo něj. 

Cena
5 135 200 Kč /za nemovitost
Poznámka k ceně
včetně provize
Aktualizováno
23. 4. 2026
Adresa
Lorencova, Zlín
ID
26DR000291
Stavba
Smíšená
Stav objektu
Novostavba
Patro
6.
Vlastnictví
Osobní
Užitná plocha
65 m2
Třída energetické náročnosti
G - Mimořádně nehospodárná
Garáž
Parkování

Máte zájem o tuto nemovitost?

Tímto, v souladu s nařízením Evropského parlamentu a Rady (EU) 2016/679, v platném znění, prohlašuji, že mi je alespoň 16 let a uděluji tak svůj souhlas se zpracováním zadaných údajů (jméno, telefon, e-mail, ip adresa) společnosti B3 Technology, s.r.o., IČ: 07330600, se sídlem Novostavby 126/23, 435 11 Lom (správce dat), za účelem předání dotazu z tohoto formuláře Vámi vybranému inzerentovi a zpětného kontaktování mé osoby. Osobní údaje bude správce zpracovávat manuálně i automaticky přímo prostřednictvím svých zaměstnanců. Informace předané tímto formulářem budou uloženy v databázi správce maximálně po dobu 10 let. Odvolání souhlasu s uložením a zpracováním poskytnutých dat lze e-mailem na info@realitymat.cz. V případě podezření na neoprávněné použití Vámi poskytnutých údajů máte právo předat podnět k šetření Úřadu pro ochranu osobních údajů. Více informací
Chystáte se prodat nemovitost?
Pomůžeme Vám!

Kontakt

Mgr. Klára Křížová

Mgr. Klára Křížová

Přihlášení k odběru

Nenechte si ujít nejnovější nabídky dražby bytů 2+kk v Zlíně.

Podobné nabídky