Pronájem bytu 2+kk, Praha - Hlubočepy, Ondrákové, 49 m2

Ondrákové, Praha, Hlubočepy


22 000 Kč /za měsíc
Získejte výhodnou HYPOTÉKU
Regionální dodavatelé v Praze 5

Stěhovací služby

Výkup a prodej starého nábytku

Popis

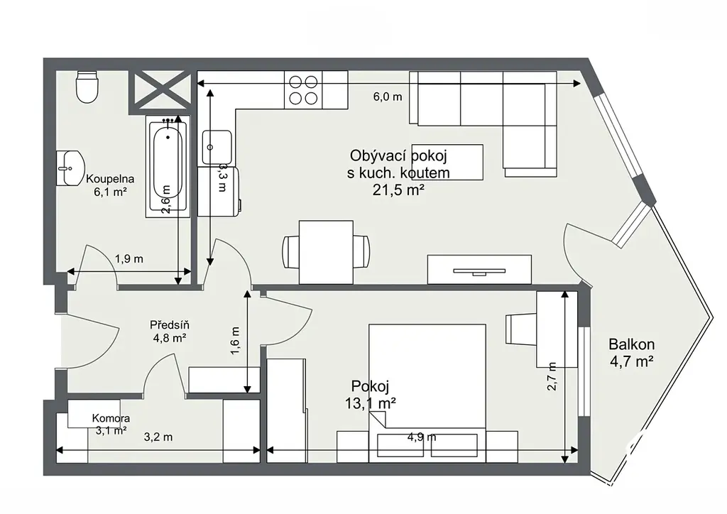
Nabízíme k pronájmu světlý a prakticky řešený byt o dispozici 2+kk a podlahové ploše 49 m², který se nachází ve velmi příjemné a vyhledávané lokalitě Praha 5 – Hlubočepy, v ulici Ondrákové. Součástí bytu je také terasa o velikosti 5 m², která příjemně rozšiřuje obytný prostor a nabízí ideální místo pro ranní kávu i odpočinek po náročném dni.

Byt zaujme svým funkčním uspořádáním i příjemnou atmosférou. Dominantou je obývací pokoj s kuchyňským koutem, ze kterého je přímý vstup na terasu. Kuchyňská linka je již součástí vybavení, což novému nájemci usnadní nastěhování i každodenní fungování. Praktickým benefitem bytu je také komora, která poskytuje cenný úložný prostor pro věci, které nechcete mít na očích, ale potřebujete je mít stále po ruce.

Velkou výhodou této nabídky je rovněž větší parkovací místo v garážích, které je k bytu k dispozici. Komfortní parkování oceníte nejen v rámci každodenního provozu, ale i z hlediska bezpečnosti a pohodlí.

Lokalita Praha – Hlubočepy patří dlouhodobě mezi oblíbené části metropole díky spojení klidnějšího bydlení s dobrou dostupností do centra města. V okolí naleznete potřebnou občanskou vybavenost i možnosti pro volnočasové aktivity, což z této adresy dělá velmi příjemné místo pro život.

Tento byt je skvělou volbou pro jednotlivce či pár, kteří hledají moderní bydlení s terasou, dostatkem úložného prostoru a vlastním parkováním v atraktivní pražské lokalitě.

Nájemné 22 000 Kč
Kauce 30 000 Kč
Provize 22 000 Kč + DPH
Zálohy na služby 3000 Kč
+ elektřinu si nájemník přihlašuje sám


V případě zájmu o více informací nebo sjednání prohlídky mě neváhejte kontaktovat.

Cena
22 000 Kč /za měsíc
Aktualizováno
19. 4. 2026
Adresa
Ondrákové, Praha, Hlubočepy
ID
2026011
Stavba
Cihlová
Stav objektu
Novostavba
Patro
5.
Vybaveno
Částečně
Vlastnictví
Osobní
Užitná plocha
49 m2
Třída energetické náročnosti
B - Velmi úsporná
Ukazatel energetické náročnosti
69 kWh/m2 za rok
Elektřina
230V
Odpad
Veřejná kanalizace
Voda
Vodovod
Topné těleso
Radiátory
Zdroj teplé vody
Centrální dálkový ohřev
Garáž
Terasa
Výtah

Máte zájem o tuto nemovitost?

Tímto, v souladu s nařízením Evropského parlamentu a Rady (EU) 2016/679, v platném znění, prohlašuji, že mi je alespoň 16 let a uděluji tak svůj souhlas se zpracováním zadaných údajů (jméno, telefon, e-mail, ip adresa) společnosti B3 Technology, s.r.o., IČ: 07330600, se sídlem Novostavby 126/23, 435 11 Lom (správce dat), za účelem předání dotazu z tohoto formuláře Vámi vybranému inzerentovi a zpětného kontaktování mé osoby. Osobní údaje bude správce zpracovávat manuálně i automaticky přímo prostřednictvím svých zaměstnanců. Informace předané tímto formulářem budou uloženy v databázi správce maximálně po dobu 10 let. Odvolání souhlasu s uložením a zpracováním poskytnutých dat lze e-mailem na info@realitymat.cz. V případě podezření na neoprávněné použití Vámi poskytnutých údajů máte právo předat podnět k šetření Úřadu pro ochranu osobních údajů. Více informací
Chystáte se prodat nemovitost?
Pomůžeme Vám!

Kontakt

Bc. Leo Kopecký, MBA

Bc. Leo Kopecký, MBA

Přihlášení k odběru

Nenechte si ujít nejnovější nabídky pronájmu bytů 2+kk v Praze 5.

Podobné nabídky