Remax Monarcha

Pronájem skladu, Šternberk, Nádražní, 210 m2

Nádražní, Šternberk


23 100 Kč /za měsíc
Získejte výhodnou HYPOTÉKU
Regionální dodavatelé v Šternberku

Popis

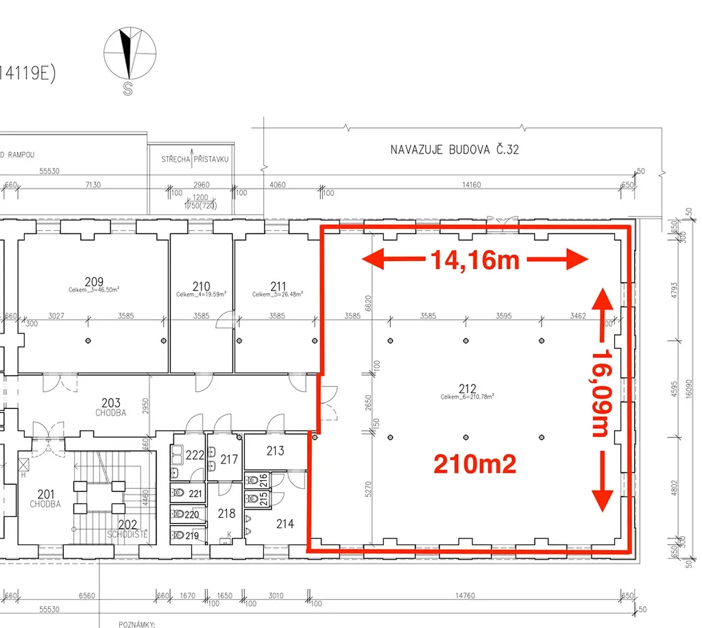
Předmětem pronájmu je nebytový prostor čtvercového tvaru 210m2 (14,65m x 16,09m) + sociální zázemí. V místnosti se nachází vyšší stropy cca 3,2m. Přístup je po schodišti nebo nákladním výtahem. K dispozici může být taky WC v případě potřeby. Prostor je vytápěný. Samostatné měření spotřeby elektrické energie.

V případě potřeby jde prostor ještě zvětšit.

Prohlídky jsou možné po domluvě.

Cena
23 100 Kč /za měsíc
Aktualizováno
19. 4. 2026
Adresa
Nádražní, Šternberk
Stavba
Cihlová
Stav objektu
Dobrý
Patro
2.
Užitná plocha
210 m2
Parkování

Máte zájem o tuto nemovitost?

Tímto, v souladu s nařízením Evropského parlamentu a Rady (EU) 2016/679, v platném znění, prohlašuji, že mi je alespoň 16 let a uděluji tak svůj souhlas se zpracováním zadaných údajů (jméno, telefon, e-mail, ip adresa) společnosti B3 Technology, s.r.o., IČ: 07330600, se sídlem Novostavby 126/23, 435 11 Lom (správce dat), za účelem předání dotazu z tohoto formuláře Vámi vybranému inzerentovi a zpětného kontaktování mé osoby. Osobní údaje bude správce zpracovávat manuálně i automaticky přímo prostřednictvím svých zaměstnanců. Informace předané tímto formulářem budou uloženy v databázi správce maximálně po dobu 10 let. Odvolání souhlasu s uložením a zpracováním poskytnutých dat lze e-mailem na info@realitymat.cz. V případě podezření na neoprávněné použití Vámi poskytnutých údajů máte právo předat podnět k šetření Úřadu pro ochranu osobních údajů. Více informací
Chystáte se prodat nemovitost?
Pomůžeme Vám!

Kontakt

Petr Štolba

Petr Štolba

Přihlášení k odběru

Nenechte si ujít nejnovější nabídky pronájmu skladů v Šternberku.

Podobné nabídky