Soccer reality

Prodej atypického bytu, Praha - Vysočany, Kolbenova, 181 m2 (ID: 2139234)

Kolbenova, Praha, Vysočany


30 634 000 Kč /za nemovitost
HYPOTÉKA od 136 915 Kč /měs.
Regionální dodavatelé v Praze 9

Stěhovací služby

Výkup a prodej starého nábytku

Popis

Prodej byt 6+kk, Praha 9 – Vysočany | designové bydlení v projektu Lofty Kolbenova

Nabízíme k prodeji exkluzivní loftový byt o dispozici 6+kk v projektu Lofty Kolbenova, Praha 9 – Vysočany. Byt se nachází v 1. nadzemním podlaží a disponuje podlahovou plochou 215,63 m².

**Základní parametry**

✓ dispozice: 6+kk

✓ podlahová plocha: 215,63 m²

✓ podlaží: 1. NP

✓ parkování: možnost dokoupení

✓ sklep: možnost dokoupení

✓ energetická náročnost: B – velmi úsporná

**Stav nemovitosti**

Jedná se o byt v kompletně zrekonstruovaném industriálním objektu, který byl citlivě přeměněn na moderní rezidenční projekt Lofty Kolbenova. Byly zde zachovány typické prvky jako vysoké stropy, betonové konstrukce a velkoformátová tovární okna. Tento developerský projekt získal ocenění jako uznání za nejlepší stavbu využívající stávající objekt v bývalé průmyslové lokalitě.

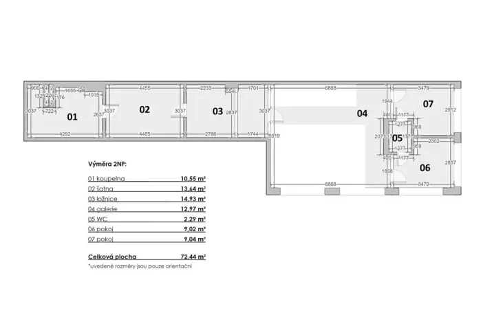
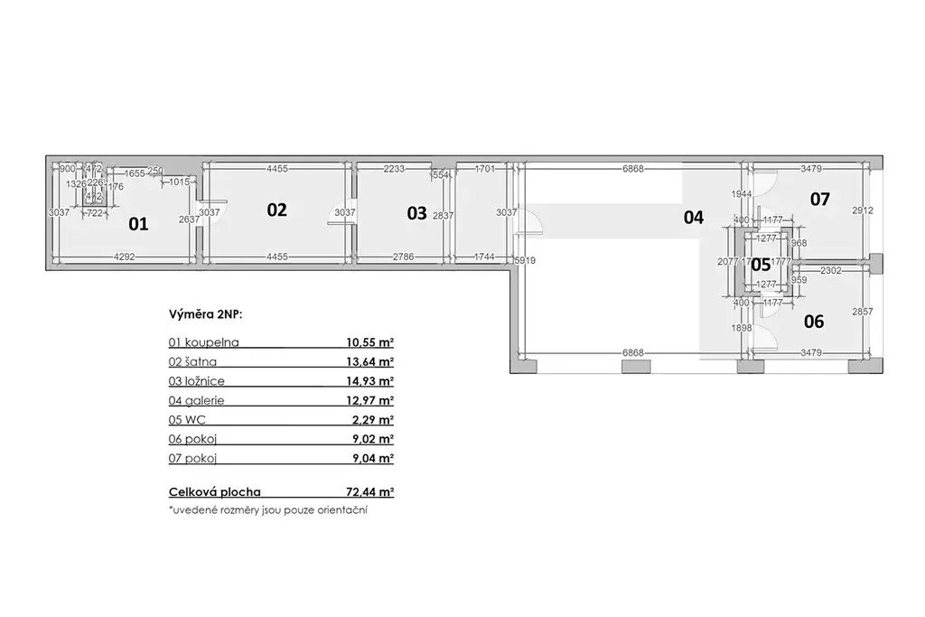
**Dispozice**

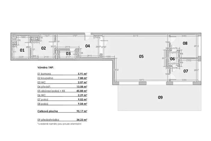
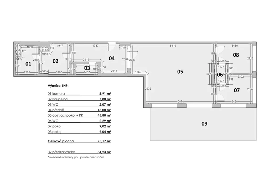
V přízemí se nachází prostorná vstupní chodba, samostatná toaleta, koupelna s vanou i sprchovým koutem a technická místnost. Dominantou podlaží je velkorysý otevřený prostor připravený pro kuchyňskou linku s jídelní a obývací částí. Dále jsou zde dva samostatné pokoje vhodné jako ložnice, pracovna nebo dětské pokoje.

Ve druhém podlaží se nachází další dva samostatné pokoje, hlavní ložnice, šatna a koupelna vybavená vanou, sprchovým koutem a toaletou.

**Příslušenství**

Standard zahrnuje moderní technologie, jako je klimatizace, podlahové vytápění a rekuperací, která zajišťuje stabilní a zdravé vnitřní klima. Samozřejmostí jsou také předokenní žaluzie pro regulaci světla a teploty.

Interiér kombinuje industriální prvky s kvalitními materiály – dřevěné podlahy v dekoru dubu, designové schodiště, osvětlení v industriálním stylu, stěna z pohledového betonu, ocelové detaily a přiznané betonové konstrukce. Pokoje jsou oddělené designovými skleněnými příčkami.

K bytu je možné dokoupit parkovací stání a sklep. Byt je vhodný jak pro rodinné bydlení, tak i pro klienty hledající prostor s charakterem a originalitou.

**Lokalita**

Projekt Lofty Kolbenova se nachází v rychle se rozvíjející části Prahy 9 – Vysočany, která postupně mění svůj původní industriální charakter na moderní městskou čtvrť. Lokalita nabízí kombinaci nové rezidenční výstavby, služeb a autentické atmosféry bývalých průmyslových areálů.

Skvělou dopravní dostupnost zajišťuje metro B Kolbenova (cca 4 minuty chůze) a tramvajová zastávka vzdálená jen 2 minuty. Do centra města se dostanete přibližně za 15 minut.

V okolí najdete kompletní občanskou vybavenost – obchody, restaurace, kavárny i sportovní zařízení. V blízkosti se nachází také oblíbená lokalita Pragovka s kulturním a komunitním přesahem.

Pro volný čas lze využít parky Podviní a Zahrádky nebo cyklostezku podél Rokytky. Lokalita tak nabízí vyvážené spojení městského života a zeleně.

Cena
30 634 000 Kč /za nemovitost Spočítat hypotéku
Aktualizováno
17. 4. 2026
Adresa
Kolbenova, Praha, Vysočany
ID
15813503
Stavba
Smíšená
Stav objektu
Novostavba
Patro
2. z 5
Vybaveno
Ne
Vlastnictví
Osobní
Užitná plocha
181 m2
Podlahová plocha
181 m2
Plocha zahrady
35 m2
Třída energetické náročnosti
B - Velmi úsporná
Ukazatel energetické náročnosti
75 kWh/m2 za rok
Elektřina
230V
Odpad
Veřejná kanalizace
Komunikace
Asfaltová
Telekomunikace
Telefon, Internet, Kabelová televize
Doprava
Silnice, MHD, Autobus
Voda
Vodovod
Garáž
Sklep
Terasa
Výtah
Bezbarierový přístup
Parkování

Máte zájem o tuto nemovitost?

Tímto, v souladu s nařízením Evropského parlamentu a Rady (EU) 2016/679, v platném znění, prohlašuji, že mi je alespoň 16 let a uděluji tak svůj souhlas se zpracováním zadaných údajů (jméno, telefon, e-mail, ip adresa) společnosti B3 Technology, s.r.o., IČ: 07330600, se sídlem Novostavby 126/23, 435 11 Lom (správce dat), za účelem předání dotazu z tohoto formuláře Vámi vybranému inzerentovi a zpětného kontaktování mé osoby. Osobní údaje bude správce zpracovávat manuálně i automaticky přímo prostřednictvím svých zaměstnanců. Informace předané tímto formulářem budou uloženy v databázi správce maximálně po dobu 10 let. Odvolání souhlasu s uložením a zpracováním poskytnutých dat lze e-mailem na info@realitymat.cz. V případě podezření na neoprávněné použití Vámi poskytnutých údajů máte právo předat podnět k šetření Úřadu pro ochranu osobních údajů. Více informací
Chystáte se prodat nemovitost?
Pomůžeme Vám!

Kontakt

Erika Mezková

Erika Mezková

Přihlášení k odběru

Nenechte si ujít nejnovější nabídky prodeje atypických bytů v Praze 9.

Podobné nabídky