Prodej bytu 3+kk, Zlín, Lešetín I, 95 m2

Lešetín I, Zlín


13 499 000 Kč /za nemovitost
HYPOTÉKA od 60 332 Kč /měs.
Regionální dodavatelé v Zlíně

Popis

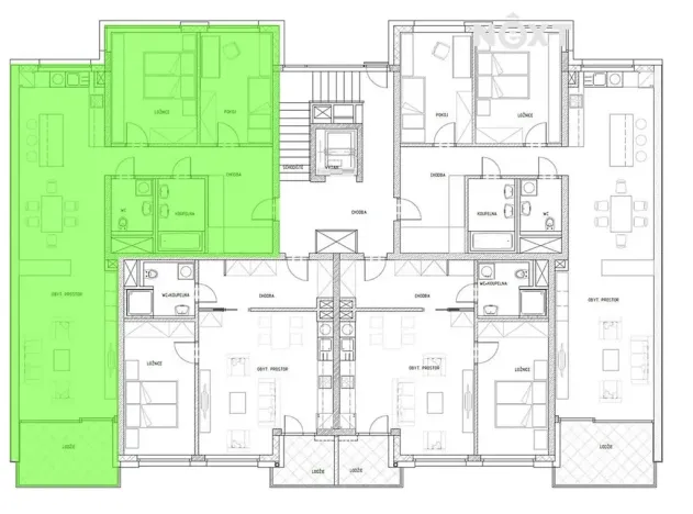
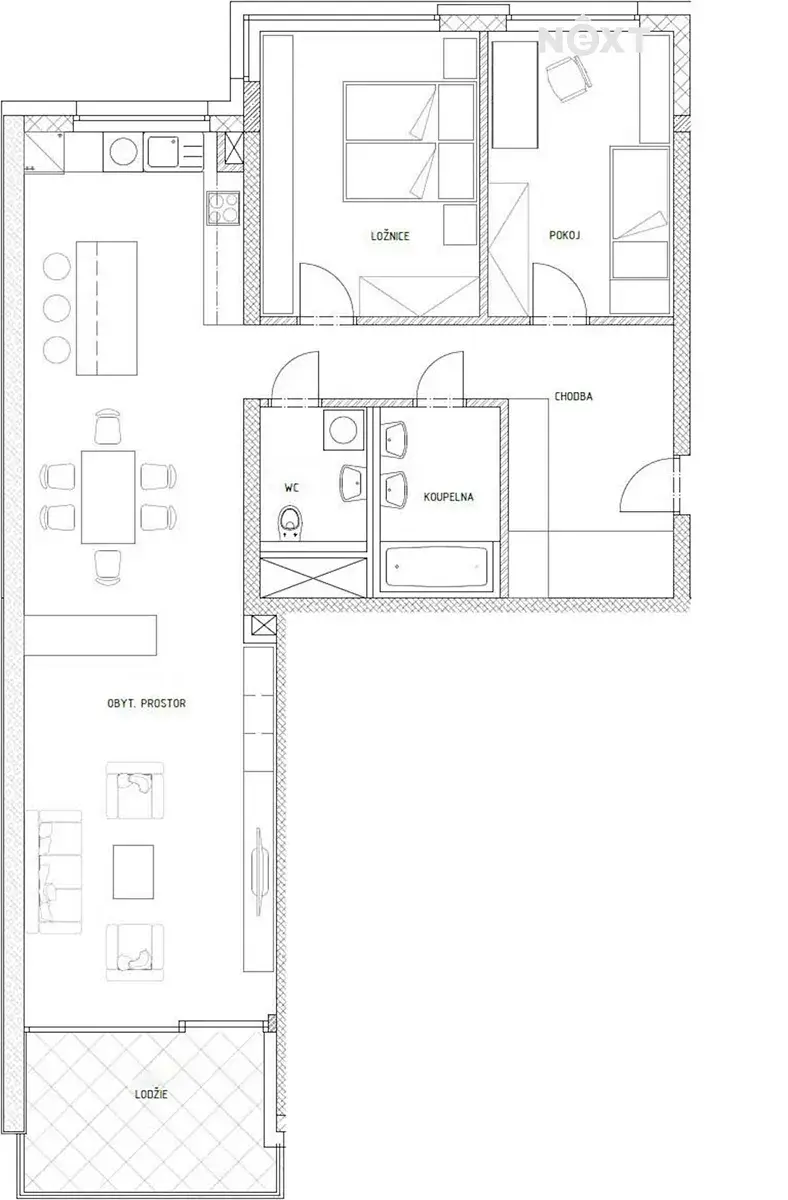
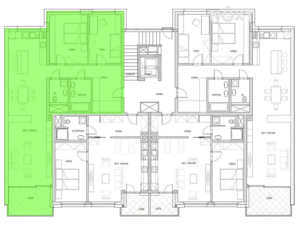
Prodej bytu 3+kk 95,13 m², terasa 9,29 m2, Zlín – Rezidence Lešetín I. | centrum města | novostavba | parkování a sklep v ceně, výtah

Nabízíme k prodeji byt o dispozici 3+kk a podlahové ploše 95,13 m², který vznikne v rámci nového rezidenčního projektu v samotném centru Zlína – lokalita Lešetín.

Bytová jednotka bude umístěna ve 3. nadzemním podlaží novostavby a je navržena jako moderní a prostorný obytný celek s kuchyňským koutem, dvěma samostatnými pokoji a terasou. Dispozice klade důraz na funkčnost, dostatek prostoru a komfort současného bydlení.
Projekt je aktuálně ve fázi přípravy/výstavby, dokončení je plánováno dle harmonogramu developera ve druhé polovině r. 2028.

Základní informace:
dispozice: 3+kk
podlahová plocha: 95,13 m²
celková plocha: 104,42 m²
podlaží: 3. NP
terasa: 9,29 m²
parkovací stání v ceně
sklepní kóje v ceně
výtah v domě

Lokalita:
Lešetín představuje jednu z nejatraktivnějších částí Zlína, situovanou přímo v centru města. Lokalita nabízí výjimečnou kombinaci městského života a pohodlí – v docházkové vzdálenosti se nachází kompletní občanská vybavenost, restaurace, kavárny, obchody i zastávky MHD.

Pro více informací o projektu buildquote.cz, standardech provedení a termínu dokončení kontaktujte realitního makléře. Pro komunikaci uvádějte evidenční číslo zakázky N117395.

Cena
13 499 000 Kč /za nemovitost Spočítat hypotéku
Aktualizováno
17. 4. 2026
Adresa
Lešetín I, Zlín
ID
N117395
Stavba
Cihlová
Stav objektu
Projekt
Patro
3. z 7
Vybaveno
Ne
Vlastnictví
Osobní
Užitná plocha
95 m2
Třída energetické náročnosti
B - Velmi úsporná
Elektřina
230V
Odpad
Veřejná kanalizace
Komunikace
Asfaltová
Doprava
Vlak, Dálnice, Silnice, MHD, Autobus
Voda
Vodovod
Topné těleso
Podlahové vytápění
Zdroj topení
Tepelné čerpadlo
Zdroj teplé vody
Tepelné čerpadlo
Garáž
Sklep
Terasa
Výtah
Bezbarierový přístup
Parkování

Máte zájem o tuto nemovitost?

Tímto, v souladu s nařízením Evropského parlamentu a Rady (EU) 2016/679, v platném znění, prohlašuji, že mi je alespoň 16 let a uděluji tak svůj souhlas se zpracováním zadaných údajů (jméno, telefon, e-mail, ip adresa) společnosti B3 Technology, s.r.o., IČ: 07330600, se sídlem Novostavby 126/23, 435 11 Lom (správce dat), za účelem předání dotazu z tohoto formuláře Vámi vybranému inzerentovi a zpětného kontaktování mé osoby. Osobní údaje bude správce zpracovávat manuálně i automaticky přímo prostřednictvím svých zaměstnanců. Informace předané tímto formulářem budou uloženy v databázi správce maximálně po dobu 10 let. Odvolání souhlasu s uložením a zpracováním poskytnutých dat lze e-mailem na info@realitymat.cz. V případě podezření na neoprávněné použití Vámi poskytnutých údajů máte právo předat podnět k šetření Úřadu pro ochranu osobních údajů. Více informací
Chystáte se prodat nemovitost?
Pomůžeme Vám!

Kontakt

Pavla Jahodová

Pavla Jahodová

Přihlášení k odběru

Nenechte si ujít nejnovější nabídky prodeje bytů 3+kk v Zlíně.

Podobné nabídky