Prodej bytu 4+kk, Praha - Košíře, 75 m2 (ID: 2138334)

Praha, Košíře


16 990 000 Kč /za nemovitost
HYPOTÉKA od 75 935 Kč /měs.
Regionální dodavatelé v Praze 5

Stěhovací služby

Výkup a prodej starého nábytku

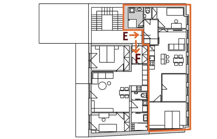
Popis

Jako přímí majitelé nabízíme k prodeji moderní byt 4+kk nacházející se ve klidné části města Praha. První tři patra domu prošli rekonstrukcí a nabízený byt se nachází ve 5.NP, které je novostavbou.
Dům se nachází v památkové zóně na rozhraní Smíchova a Košíř v klidné části jednosměrné ulice s kompletní občanskou vybaveností v okolí — školy, obchody, služby, restaurace.
Jedná se o klidnou oblast s bohatou historií a výbornou občanskou infrastrukturou. Náš projekt se nachází v blízkosti komplexu Gabriel Loci a vily Bertramka. Zdejší čtvrť nabízí široké spektrum služeb, včetně kaváren, restaurací, kulturních akcí a rekreačních center, vše doslova kousek od vašeho nového domova. Blízká Smíchovská náplavka, Husovy sady, Park Sacré Coeur nebo park Mrázovka jsou ideálními místy k trávení času venku na čerstvém vzduchu a pro odpočinek.
Byt disponuje celkovou plochou 74,37 m² a sklepní kójí ve výměře 2,80 m2. Osobní vlastnictví zajišťuje budoucímu majiteli plné možnosti rozhodování o svém bydlení.
Byt
• dispozice 4+kk,POUZE DVA BYTY NA PATŘE!
• umístění ve 5. nadzemním podlaží
• dostatek přirozeného světla díky množství oken
• klidová pozice bytu

Standardy bytu:
•dřevěná francouzská okna s trojsklem a teplým rámečkem
•bezpečnostní vstupní dveře RC3 s odhlučněním
•koncové prvky firmy Hansgrohe a Villeroy & Boch
•masivní interiérové dveře
•kvalitní vinylová podlaha v dekoru dubu
•koupelna s keramickou dlažbou
•sádrové omítky a kvalitní obklady


Technické vybavení:
•vlastní elektrokotel a bojler
•podlahové vytápění
•klimatizace
•optická internetová přípojka
•domácí videotelefon

Tato nemovitost je ideální volbou pro ty, kteří hledají pohodlné bydlení v klidné části Prahy, avšak s dostupností všech vymožeností velkoměsta. Prohlídky jsou možné po předchozí domluvě. Pro více informací o této nemovitosti nebo sjednání prohlídky nás prosím kontaktujte nebo vyplňte níže uvedený formulář, rádi Vám pomůžeme.
.

Cena
16 990 000 Kč /za nemovitost Spočítat hypotéku
Aktualizováno
16. 4. 2026
Adresa
Praha, Košíře
Stavba
Cihlová
Stav objektu
Velmi dobrý
Patro
5.
Vlastnictví
Osobní
Užitná plocha
75 m2
Garáž
Sklep

Máte zájem o tuto nemovitost?

Tímto, v souladu s nařízením Evropského parlamentu a Rady (EU) 2016/679, v platném znění, prohlašuji, že mi je alespoň 16 let a uděluji tak svůj souhlas se zpracováním zadaných údajů (jméno, telefon, e-mail, ip adresa) společnosti B3 Technology, s.r.o., IČ: 07330600, se sídlem Novostavby 126/23, 435 11 Lom (správce dat), za účelem předání dotazu z tohoto formuláře Vámi vybranému inzerentovi a zpětného kontaktování mé osoby. Osobní údaje bude správce zpracovávat manuálně i automaticky přímo prostřednictvím svých zaměstnanců. Informace předané tímto formulářem budou uloženy v databázi správce maximálně po dobu 10 let. Odvolání souhlasu s uložením a zpracováním poskytnutých dat lze e-mailem na info@realitymat.cz. V případě podezření na neoprávněné použití Vámi poskytnutých údajů máte právo předat podnět k šetření Úřadu pro ochranu osobních údajů. Více informací
Chystáte se prodat nemovitost?
Pomůžeme Vám!

Kontakt

Ing. Lenka Mixová

Ing. Lenka Mixová

Přihlášení k odběru

Nenechte si ujít nejnovější nabídky prodeje bytů 4+kk v Praze 5.

Podobné nabídky