Prodej bytu 2+1, Otrokovice, SNP, 60 m2

SNP, Otrokovice


3 900 000 Kč /za nemovitost
HYPOTÉKA od 17 431 Kč /měs.

(za nemovitost)


Regionální dodavatelé v Otrokovicích

Popis

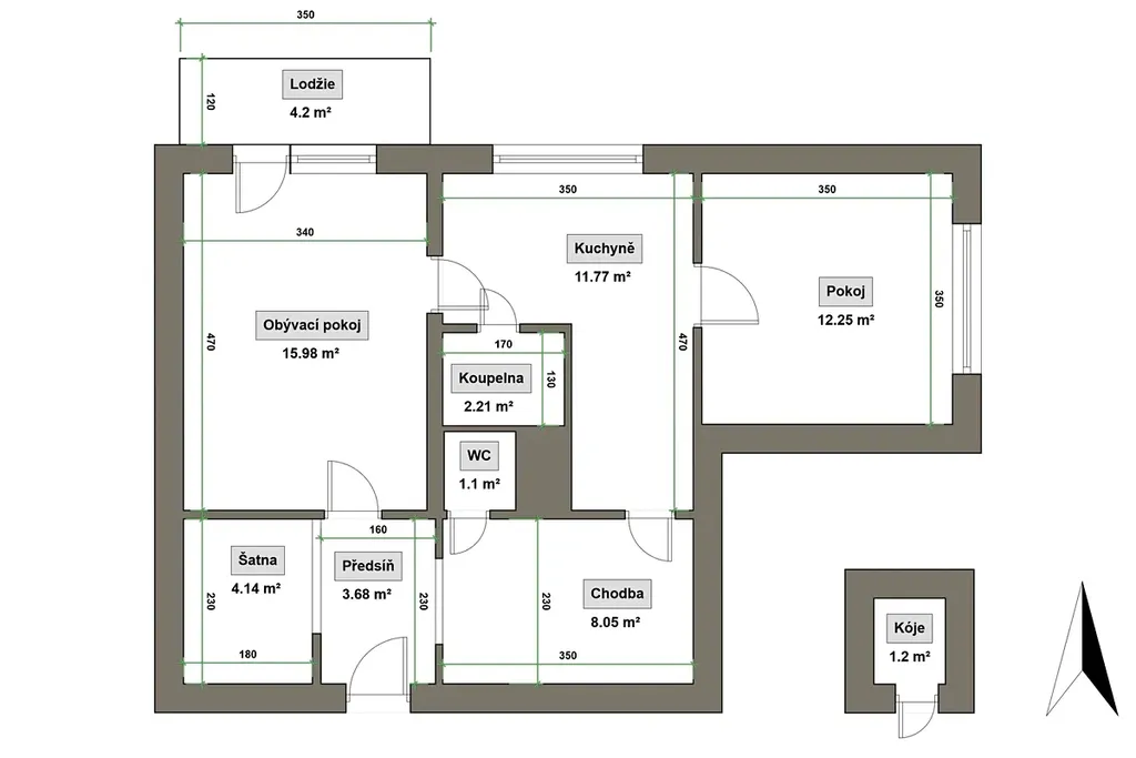
Ráda Vás provedu a představím Vám ke koupi byt o dispozici 2+1 určený k rekonstrukci, s jednou zasklenou lodžií, nacházející se ve vyhledávané a přitom klidné lokalitě Otrokovic – Trávníky, na ulici SNP.

Bytová jednotka je situována v 6. nadzemním podlaží panelového domu se dvěma výtahy. K bytu náleží praktická komora na patře a sklepní kóje v suterénu.

Nemovitost zaujme především svou prostorností a dispozicí, která nabízí ideální základ pro vytvoření bydlení přesně podle Vašich představ.

Hlavní přednosti bytu:
- byt je určen k rekonstrukci dle vlastních představ, zároveň je
obyvatelný ihned
- celková plocha bytu cca 60 m² + lodžie 4,2 m² + komora 1,2 m² +
sklep 2 m²
- zánovní kuchyňská linka
- dva samostatné, neprůchozí pokoje
- zděná koupelna s vanou a samostatné WC
- komora na patře
- prostorná chodba a velkorysé zádveří
- sklepní kóje

Byt působí velmi vzdušně a nabízí příjemný výhled do okolní zeleně, což vytváří harmonické propojení interiéru s venkovním prostředím.
Je ideální volbou pro ty, kteří hledají bydlení s možností rekonstrukce podle vlastního vkusu, ale zároveň chtějí mít možnost se ihned nastěhovat.

V bezprostřední blízkosti naleznete veškerou občanskou vybavenost – parky, cyklostezku, dětská hřiště, školu i školku, poštu, obchody, kavárny, zdravotnické středisko i zastávku MHD s výbornou dostupností do centra Otrokovic.

Tuto nabídku doporučuji všem, kteří hledají příjemné a dostupné bydlení s potenciálem.

Prohlídky jsou možné po předchozí domluvě s makléřkou Martinou.

Cena
3 900 000 Kč /za nemovitost Spočítat hypotéku
Poznámka k ceně
za nemovitost
Aktualizováno
16. 4. 2026
Adresa
SNP, Otrokovice
Stavba
Panelová
Stav objektu
Před rekonstrukcí
Patro
6.
Vybaveno
Částečně
Vlastnictví
Osobní
Užitná plocha
60 m2
Třída energetické náročnosti
G - Mimořádně nehospodárná
Elektřina
230V
Plyn
Plynovod
Odpad
Veřejná kanalizace
Telekomunikace
Internet
Doprava
Vlak, Dálnice, Silnice, MHD, Autobus
Voda
Místní zdroj vody
Zdroj topení
Centrální dálkové
Sklep
Lodžie
Výtah
Bezbarierový přístup

Máte zájem o tuto nemovitost?

Tímto, v souladu s nařízením Evropského parlamentu a Rady (EU) 2016/679, v platném znění, prohlašuji, že mi je alespoň 16 let a uděluji tak svůj souhlas se zpracováním zadaných údajů (jméno, telefon, e-mail, ip adresa) společnosti B3 Technology, s.r.o., IČ: 07330600, se sídlem Novostavby 126/23, 435 11 Lom (správce dat), za účelem předání dotazu z tohoto formuláře Vámi vybranému inzerentovi a zpětného kontaktování mé osoby. Osobní údaje bude správce zpracovávat manuálně i automaticky přímo prostřednictvím svých zaměstnanců. Informace předané tímto formulářem budou uloženy v databázi správce maximálně po dobu 10 let. Odvolání souhlasu s uložením a zpracováním poskytnutých dat lze e-mailem na info@realitymat.cz. V případě podezření na neoprávněné použití Vámi poskytnutých údajů máte právo předat podnět k šetření Úřadu pro ochranu osobních údajů. Více informací
Chystáte se prodat nemovitost?
Pomůžeme Vám!

Kontakt

Martina Sušňová

Martina Sušňová

Přihlášení k odběru

Nenechte si ujít nejnovější nabídky prodeje bytů 2+1 v Otrokovicích.

Podobné nabídky