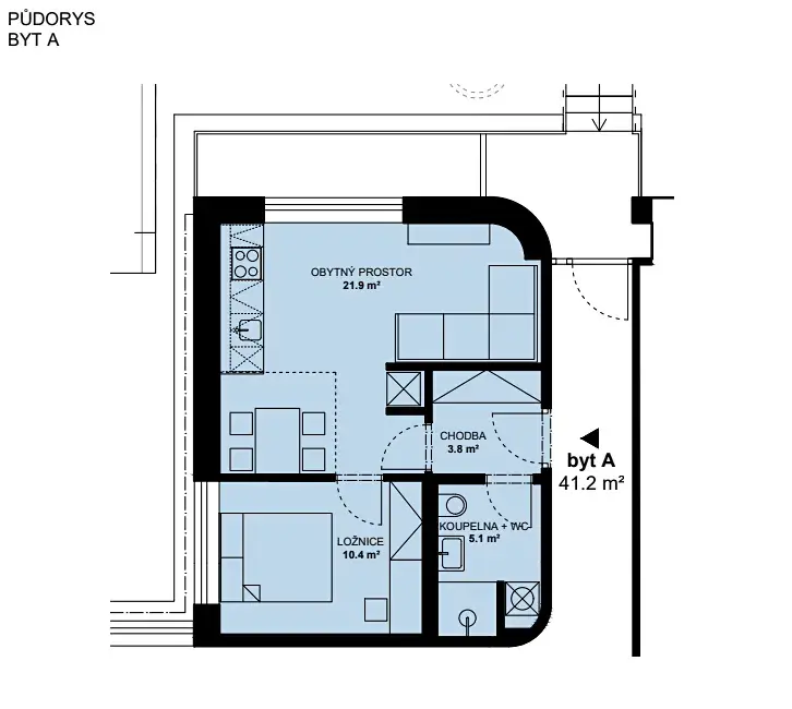
Pronájem bytu 2+kk, Nové Město na Moravě, 41 m2

Nové Město na Moravě


19 500 Kč /za měsíc
Získejte výhodnou HYPOTÉKU
Regionální dodavatelé v Novém Městu na Moravě

Popis

Nabízím Vám pronájem novostavby bytu 2+kk, umístěného prakticky v centru Nového Města na Moravě. Za sportem, kulturou, do obchodu, na kafe…do 5 minut. Světlý byt o velikosti 42m2 umístěný v 2. NP je orientovaný do zahrady, má plně vybavenou kuchyň, vestavěné skříně poskytují spoustu úložného místa a samotná dispozice je prakticky promyšlená. Podlahové topení umožňuje variabilní umístění nábytku ke stěnám a v neposlední řadě příjemný komfort v zimních měsících.

Ideální je pro jednotlivce či pár, kteří ocení městské bydlení, blízkost přírody a prakticky veškeré sportovní vyžití během celého roku. K bytu náleží jedno parkovací stání na vlastním pozemku za elektricky ovládanou bránou. K uložení sportovního vybavení, grilu atp. má byt svůj vlastní uzamykatelný box.

V ceně nájmu je internetové připojení vč. vlastní WIFI a rovnou také služby a energie pro dvě osoby. Kromě vlastního balkonu je nájemníkům domu k dispozici uzavřený dvorek ideální na relax u sklenky vína a dobré knihy.

Nové Město na Moravě se nachází v okrese Žďár nad Sázavou, pyšní se historickým jádrem a je známé svými zimními sporty a kulturním děním. Nabízí kompletní občanskou vybavenost, včetně nemocnice, škol, kultury, sportu a dopravního spojení do Prahy i Brna.

V případě Vašeho zájmu Vám ráda sdělím bližší informace.

Cena
19 500 Kč /za měsíc
Náklady na bydlení
Již zahrnuty v ceně nájmu.
Aktualizováno
16. 4. 2026
Adresa
Nové Město na Moravě
ID
NMN226
Stavba
Cihlová
Stav objektu
Novostavba
Patro
2. z 2
Vybaveno
Částečně
Lokalita objektu
Centrum obce
Vlastnictví
Osobní
Užitná plocha
41 m2
Elektřina
230V
Komunikace
Dlážděná
Telekomunikace
Internet
Doprava
Vlak, MHD, Autobus
Voda
Vodovod, Studna
Topné těleso
Podlahové vytápění
Zdroj topení
Tepelné čerpadlo
Zdroj teplé vody
Tepelné čerpadlo
Balkon
Bezbarierový přístup
Parkování

Máte zájem o tuto nemovitost?

Tímto, v souladu s nařízením Evropského parlamentu a Rady (EU) 2016/679, v platném znění, prohlašuji, že mi je alespoň 16 let a uděluji tak svůj souhlas se zpracováním zadaných údajů (jméno, telefon, e-mail, ip adresa) společnosti B3 Technology, s.r.o., IČ: 07330600, se sídlem Novostavby 126/23, 435 11 Lom (správce dat), za účelem předání dotazu z tohoto formuláře Vámi vybranému inzerentovi a zpětného kontaktování mé osoby. Osobní údaje bude správce zpracovávat manuálně i automaticky přímo prostřednictvím svých zaměstnanců. Informace předané tímto formulářem budou uloženy v databázi správce maximálně po dobu 10 let. Odvolání souhlasu s uložením a zpracováním poskytnutých dat lze e-mailem na info@realitymat.cz. V případě podezření na neoprávněné použití Vámi poskytnutých údajů máte právo předat podnět k šetření Úřadu pro ochranu osobních údajů. Více informací
Chystáte se prodat nemovitost?
Pomůžeme Vám!

Kontakt

Anna Čeketová

Anna Čeketová

Přihlášení k odběru

Nenechte si ujít nejnovější nabídky pronájmu bytů 2+kk v Novém Městu na Moravě.

Podobné nabídky