Prodej činžovního domu, Lipník nad Bečvou, Osecká, 1432 m2

Osecká, Lipník nad Bečvou I-Město


110 000 000 Kč /za nemovitost
HYPOTÉKA od 491 633 Kč /měs.

(+ DPH)


Regionální dodavatelé v Lipníku nad Bečvou

Popis

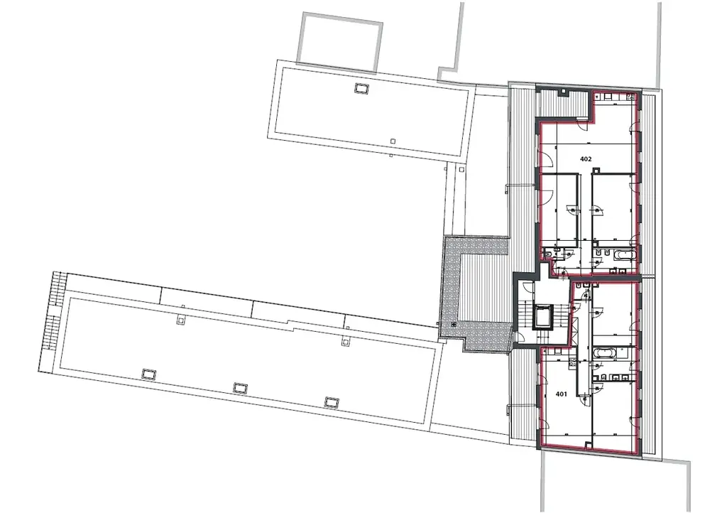
V zastoupení prodávajícího si vám dovolujeme zprostředkovat prodej novostavby bytového nájemního domu NOVÁ LÍPA v centru Lipníku nad Bečvou. Dům byl kolaudován v dubnu 2025 a díky použitým technologiím se jedná o moderní bydlení ve 30 bytových jednotkách. Nyní jsou všechny bytové jednotky pronajaty bezproblémovým nájemcům. V 1. NP jsou umístěny dvě nebytové jednotky s orientací do ulice. Obě nebytové jednotky se nyní stavebně dokončují, jedna již na základě požadavku budoucího nájemce. 1.PP s cihlovými klenbovými sklepy prochází rozsáhlou rekonstrukcí a vznikne tak možnost následného pronajmu i těchto prostor.

Zastavěná plocha domem a nádvořím je 1 453 m2, podlahová plocha všech jednotek je 1 432 m2 bez předzahrádek, balkonů a teras.

Bytové jednotky jsou navrženy v dispozicích 1+kk až 3+kk, všechny vybavené kuchyňskými linkami, zařizovacími předměty v koupelně a okenními žaluziemi. Jižní okna ve 4.NP mají elektrické předokenní rolety a klimatizaci.

Díky fotovoltaickým panelům osazeným na střeše a tepelným čerpadlům (země – voda) zajišťujícím jak vytápění celého domu, tak i ohřev teplé užitkové vody, má dům nízké náklady na energie. V 1. NP je umístěna společná prádelna s pračkou a sušičkou a kolárna.

Uzavřený klidný "vnitroblok" domu umožňuje přes elektronicky ovládanou vjezdovou bránu parkování 11 automobilů. Nájemci mají možnost pronájmu jednotlivých parkovacích stání (dvě PS jsou vybavena elektrickou dobíjecí stanicí pro elektroauta).

Centrum města bylo vyhlášeno městskou památkovou rezervací s unikátní atmosférou díky renesančním domům s arkádami a hradbami. Zámecká zahrada, která je v blízkosti domu NOVÁ LÍPA, nabízí příjemné procházky. Jedná se o jedno z mála měst, kde se historický ráz podařilo udržet bez necitlivých moderních zásahů.

Výborná dopravní dostupnost Olomouc, Zlín, Ostrava.

Cena
110 000 000 Kč /za nemovitost Spočítat hypotéku
Poznámka k ceně
+ DPH
Aktualizováno
16. 4. 2026
Adresa
Osecká, Lipník nad Bečvou I-Město
ID
18860
Stavba
Cihlová
Stav objektu
Novostavba
Vybaveno
Částečně
Lokalita objektu
Centrum obce
Užitná plocha
1432 m2
Zastavěná plocha
1453 m2
Třída energetické náročnosti
C - Úsporná
Plyn
Plynovod
Odpad
Veřejná kanalizace
Voda
Vodovod
Topné těleso
Podlahové vytápění
Zdroj topení
Tepelné čerpadlo
Zdroj teplé vody
Tepelné čerpadlo
Výtah
Parkování

Máte zájem o tuto nemovitost?

Tímto, v souladu s nařízením Evropského parlamentu a Rady (EU) 2016/679, v platném znění, prohlašuji, že mi je alespoň 16 let a uděluji tak svůj souhlas se zpracováním zadaných údajů (jméno, telefon, e-mail, ip adresa) společnosti B3 Technology, s.r.o., IČ: 07330600, se sídlem Novostavby 126/23, 435 11 Lom (správce dat), za účelem předání dotazu z tohoto formuláře Vámi vybranému inzerentovi a zpětného kontaktování mé osoby. Osobní údaje bude správce zpracovávat manuálně i automaticky přímo prostřednictvím svých zaměstnanců. Informace předané tímto formulářem budou uloženy v databázi správce maximálně po dobu 10 let. Odvolání souhlasu s uložením a zpracováním poskytnutých dat lze e-mailem na info@realitymat.cz. V případě podezření na neoprávněné použití Vámi poskytnutých údajů máte právo předat podnět k šetření Úřadu pro ochranu osobních údajů. Více informací
Chystáte se prodat nemovitost?
Pomůžeme Vám!

Kontakt

Ing. Irena Pavlišová

Ing. Irena Pavlišová

Přihlášení k odběru

Nenechte si ujít nejnovější nabídky prodeje činžovních domů v Lipníku nad Bečvou.

Podobné nabídky