Pronájem výrobních prostor, Ústí nad Labem, U Tonasa, 1168 m2 (ID: 2136616)

U Tonasa, Ústí nad Labem, Neštěmice


Cena na vyžádání /za měsíc
Získejte výhodnou HYPOTÉKU
Regionální dodavatelé v Ústí nad Labem

Okna a dveře

Pojištění a finance

Popis

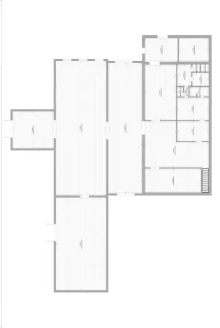
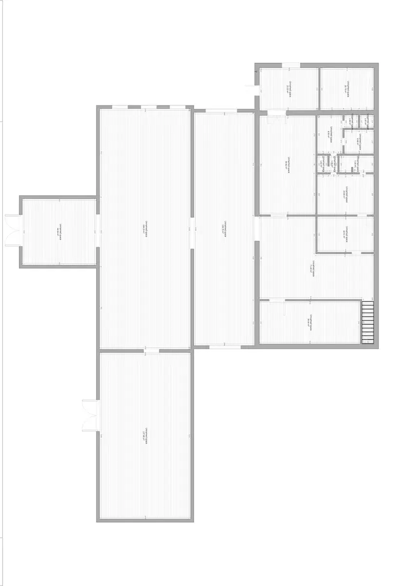
Pronájem skladové či výrobní haly č.706 nacházející se v průmyslové zóně TONASO Neštěmice.

Stručný popis:
- celková vnitřní plocha cca 1168 m2.
- Venkovní zpevněná plocha cca 600m2.
- V budově jsou k dispozici kanceláře se sociálním zázemím.
- Energie: Plyn, elektřina, voda, kanalizace.
- Připojení k internetu - optická síť.
- Ve výrobní hale se nachází celkem 2x Mostový jeřáb nosnost 3200Kg a 2x sloupový otočný jeřáb nosnost 250Kg.
- Prostor je součástí uzavřeného střeženého areálu.

- Možnost rozšíření pronájmu i o další prostory a venkovních plochy nacházejících se okolí haly.

Cena
Cena na vyžádání
Aktualizováno
29. 5. 2026
Adresa
U Tonasa, Ústí nad Labem, Neštěmice
Stavba
Smíšená
Stav objektu
Dobrý
Lokalita objektu
Okraj obce
Užitná plocha
1168 m2
Plocha zahrady
600 m2
Elektřina
230V
Plyn
Plynovod
Odpad
Veřejná kanalizace
Komunikace
Betonová, Asfaltová, Zpevněná, Štěrková
Telekomunikace
Internet
Doprava
Vlak, Silnice, MHD, Autobus
Voda
Vodovod
Zdroj topení
Plynový kotel
Výtah

Máte zájem o tuto nemovitost?

Tímto, v souladu s nařízením Evropského parlamentu a Rady (EU) 2016/679, v platném znění, prohlašuji, že mi je alespoň 16 let a uděluji tak svůj souhlas se zpracováním zadaných údajů (jméno, telefon, e-mail, ip adresa) společnosti B3 Technology, s.r.o., IČ: 07330600, se sídlem Novostavby 126/23, 435 11 Lom (správce dat), za účelem předání dotazu z tohoto formuláře Vámi vybranému inzerentovi a zpětného kontaktování mé osoby. Osobní údaje bude správce zpracovávat manuálně i automaticky přímo prostřednictvím svých zaměstnanců. Informace předané tímto formulářem budou uloženy v databázi správce maximálně po dobu 10 let. Odvolání souhlasu s uložením a zpracováním poskytnutých dat lze e-mailem na info@realitymat.cz. V případě podezření na neoprávněné použití Vámi poskytnutých údajů máte právo předat podnět k šetření Úřadu pro ochranu osobních údajů. Více informací
Chystáte se prodat nemovitost?
Pomůžeme Vám!
Theleadway banner

Kontakt

TONASO Holding

TONASO Holding

Přihlášení k odběru

Nenechte si ujít nejnovější nabídky pronájmu výrobních prostor v Ústí nad Labem.

Podobné nabídky