Pronájem bytu 3+1, Brno, Horní, 68 m2 (ID: 2136550)

Horní, Brno, Štýřice


25 000 Kč /za měsíc
Získejte výhodnou HYPOTÉKU

(služby 7000,- Kč)


Regionální dodavatelé v Brně

Popis

Nabízíme k pronájmu byt 3+1 s balkonem o výměře 72,7 m2 na ulici Horní.

Chcete být prvním nájemníkem v tomto zcela novém bytě ?
Byt aktuálně prochází rozsáhlou rekonstrukcí, která zahrnuje kompletní elektroinstalaci v mědi, nové omítky a zateplení stropů. Součástí úprav budou také interiérové dveře, podlahy, obklady i dlažby, vestavěné skříně v chodbě, moderní osvětlení, nové nátěry topení a obložení dveří, koupelna s vanou, umyvadlem a skříňkou, WC zn. Geberit.

Vše bude úplně nové, nepoužívané, připravené k nastěhování. Byt nabízí možnost dlouhodobého bydlení v moderně zrekonstruovaném a komfortním prostředí.

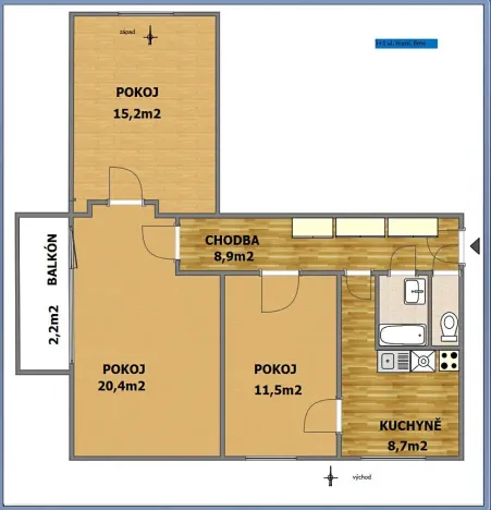
Dispozice bytu:
kuchyň 8,7 m2 a pokoj 11,5 m2 směrem k východu, pokoj 20,4 m2 s balkonem 2,2 m2, pokoj 15,2 m2 směrem k západu, chodba 8,9 m2, samostatná koupelna s vanou 2,3 m2, WC 0,8 m2.
Byt se nachází ve 4 .patře v domě bez výtahu.
Vybavení:
kuchyňská linka s myčkou, indukční deska, digestoř, vestavěné skříně v chodbě.

Prohlídky možné po domluvě. K nastěhování od 1.5.2026.

Měsíční platby:
nájemné 25.000,- + 7.000,- Kč služby včetně elektřiny, celkem tedy 32.000,- Kč.
Kauce je ve výši 35.000,- Kč
+ provize RK

Cena
25 000 Kč /za měsíc
Poznámka k ceně
služby 7000,- Kč
Aktualizováno
14. 4. 2026
Adresa
Horní, Brno, Štýřice
ID
N00056
Stavba
Panelová
Stav objektu
Velmi dobrý
Patro
4. z 5
Vybaveno
Ne
Lokalita objektu
Klidná část obce
Vlastnictví
Osobní
Užitná plocha
68 m2
Podlahová plocha
72 m2
Třída energetické náročnosti
G - Mimořádně nehospodárná
Elektřina
230V
Topení
Ústřední dálkové
Doprava
Vlak, Dálnice, Silnice
Voda
Vodovod
Topné těleso
Radiátory
Zdroj topení
Ústřední dálkové
Balkon
Sklep
Bezbarierový přístup

Máte zájem o tuto nemovitost?

Tímto, v souladu s nařízením Evropského parlamentu a Rady (EU) 2016/679, v platném znění, prohlašuji, že mi je alespoň 16 let a uděluji tak svůj souhlas se zpracováním zadaných údajů (jméno, telefon, e-mail, ip adresa) společnosti B3 Technology, s.r.o., IČ: 07330600, se sídlem Novostavby 126/23, 435 11 Lom (správce dat), za účelem předání dotazu z tohoto formuláře Vámi vybranému inzerentovi a zpětného kontaktování mé osoby. Osobní údaje bude správce zpracovávat manuálně i automaticky přímo prostřednictvím svých zaměstnanců. Informace předané tímto formulářem budou uloženy v databázi správce maximálně po dobu 10 let. Odvolání souhlasu s uložením a zpracováním poskytnutých dat lze e-mailem na info@realitymat.cz. V případě podezření na neoprávněné použití Vámi poskytnutých údajů máte právo předat podnět k šetření Úřadu pro ochranu osobních údajů. Více informací
Chystáte se prodat nemovitost?
Pomůžeme Vám!

Kontakt

Andrea Kopecká

Andrea Kopecká

Přihlášení k odběru

Nenechte si ujít nejnovější nabídky pronájmu bytů 3+1 v Brně.

Podobné nabídky