Pronájem obchodního prostoru, Brno - Bystrc, 150 m2

Brno, Bystrc


43 500 Kč /za měsíc
Získejte výhodnou HYPOTÉKU

(+ energie a sl. 10250.-Kč + provize RK)


Regionální dodavatelé v Brně

Popis

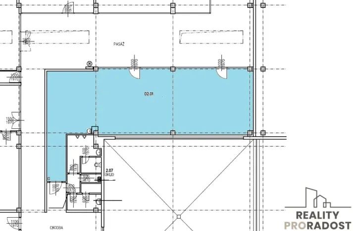
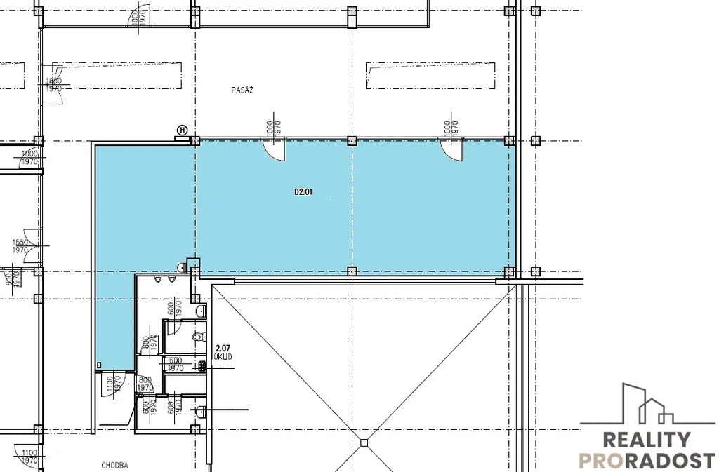
Se souhlasem majitele Vám nabízíme k pronájmu obchodní prostor o výměře 150m2 v Obchodním centru v Brně Bystrci. Jedná se o prodejní plochu s dlažbou a prosklenými výlohami do pasáže s přehlednou prodejní plochou. Je zde supermarket, velká drogerie, obchod z nábytkem a řada dalších obchodů včetně lékárny. Navštěvované místo s parkováním. Vhodné na maloobchodní prodejnu – NE služby, volné ihned.

Cena
43 500 Kč /za měsíc
Poznámka k ceně
+ energie a sl. 10250.-Kč + provize RK
Aktualizováno
14. 4. 2026
Adresa
Brno, Bystrc
ID
29625
Stavba
Cihlová
Stav objektu
Velmi dobrý
Patro
1. z 2
Vybaveno
Ne
Typ objektu
Patrový
Lokalita objektu
Rušná část obce
Užitná plocha
150 m2
Zastavěná plocha
150 m2
Podlahová plocha
150 m2
Třída energetické náročnosti
G - Mimořádně nehospodárná
Voda
Vodovod
Výtah
Bezbarierový přístup
Převod do OV

Máte zájem o tuto nemovitost?

Tímto, v souladu s nařízením Evropského parlamentu a Rady (EU) 2016/679, v platném znění, prohlašuji, že mi je alespoň 16 let a uděluji tak svůj souhlas se zpracováním zadaných údajů (jméno, telefon, e-mail, ip adresa) společnosti B3 Technology, s.r.o., IČ: 07330600, se sídlem Novostavby 126/23, 435 11 Lom (správce dat), za účelem předání dotazu z tohoto formuláře Vámi vybranému inzerentovi a zpětného kontaktování mé osoby. Osobní údaje bude správce zpracovávat manuálně i automaticky přímo prostřednictvím svých zaměstnanců. Informace předané tímto formulářem budou uloženy v databázi správce maximálně po dobu 10 let. Odvolání souhlasu s uložením a zpracováním poskytnutých dat lze e-mailem na info@realitymat.cz. V případě podezření na neoprávněné použití Vámi poskytnutých údajů máte právo předat podnět k šetření Úřadu pro ochranu osobních údajů. Více informací
Chystáte se prodat nemovitost?
Pomůžeme Vám!

Kontakt

Jaroslav Jakubec

Jaroslav Jakubec

Přihlášení k odběru

Nenechte si ujít nejnovější nabídky pronájmu obchodních prostor v Brně.

Podobné nabídky