Dražba louky, Chlistov, 4212 m2

Chlistov


41 000 Kč /za nemovitost
Získejte výhodnou HYPOTÉKU
Regionální dodavatelé v Chlistově

Stěhovací služby

Popis

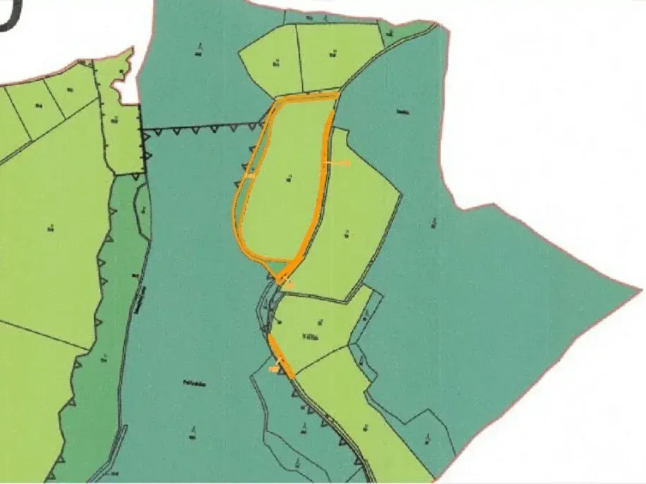
Předmětem dražby je soubor pozemků o celkové výměře 4 212 m2 nedaleko obce Chlistov. Dle katastru nemovitostí jsou pozemky evidovány jako trvalý travní porost. Okolí obce nabízí velké množství možností pro relaxaci, turistiku i sportovní vyžití v nádherné přírodě šumavského podhůří. Obcí prochází například cyklotrasa vedoucí z malé vsi Tržek do nedaleko vzdálené vesnice Srbice. Zhruba 10 km od obce se nachází rozlehlý hrad Velhartice, který patří mezi nejromantičtější šumavské objekty. Chlistov je také název katastrálního území. V případě zájmu nás neváhejte kontaktovat. Vždy je vhodné, aby se dražitelé dojeli osobně na pozemky podívat a řádně se s nimi seznámili.


Soudní exekutor výslovně upozorňuje, že neodpovídá za správnost ani úplnost výše uvedeného popisu předmětu dražby, který je zpracován pouze informativně z dostupných podkladů. Předmět dražby je závazně vymezen výhradně v dražební vyhlášce. Soudní exekutor zároveň doporučuje všem dražitelům, aby si předmět dražby před účastí v dražbě osobně prohlédli, ověřili jeho stav na místě a řádně se seznámili jak s jeho faktickým, tak i právním stavem.

Cena
41 000 Kč /za nemovitost
Aktualizováno
13. 4. 2026
Adresa
Chlistov
ID
213 DD 85/26-1
Plocha pozemku
4212 m2

Máte zájem o tuto nemovitost?

Tímto, v souladu s nařízením Evropského parlamentu a Rady (EU) 2016/679, v platném znění, prohlašuji, že mi je alespoň 16 let a uděluji tak svůj souhlas se zpracováním zadaných údajů (jméno, telefon, e-mail, ip adresa) společnosti B3 Technology, s.r.o., IČ: 07330600, se sídlem Novostavby 126/23, 435 11 Lom (správce dat), za účelem předání dotazu z tohoto formuláře Vámi vybranému inzerentovi a zpětného kontaktování mé osoby. Osobní údaje bude správce zpracovávat manuálně i automaticky přímo prostřednictvím svých zaměstnanců. Informace předané tímto formulářem budou uloženy v databázi správce maximálně po dobu 10 let. Odvolání souhlasu s uložením a zpracováním poskytnutých dat lze e-mailem na info@realitymat.cz. V případě podezření na neoprávněné použití Vámi poskytnutých údajů máte právo předat podnět k šetření Úřadu pro ochranu osobních údajů. Více informací
Chystáte se prodat nemovitost?
Pomůžeme Vám!

Kontakt

Štěpánka Kodymová

Štěpánka Kodymová

Přihlášení k odběru

Nenechte si ujít nejnovější nabídky dražby louk v Chlistově (okr. Klatovy).

Podobné nabídky