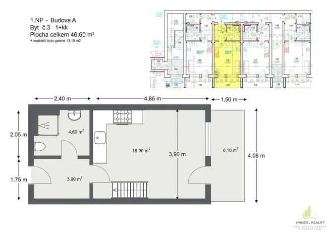
Prodej bytu 1+kk, Břeclav, 44 m2

Břeclav


4 750 000 Kč
HYPOTÉKA od 21 230 Kč /měs.

(včetně provize RK)


Regionální dodavatelé v Břeclavi

Popis

Nabízíme krásný byt 1+kk k prodeji v Břeclavi. S plochou 44,6 m² poskytuje dostatek prostoru pro pohodlné bydlení pro jednotlivce nebo pár. Byt se nachází v přízemí a disponuje moderním a útulným interiérem, je také vybaven vlastní klimatizací, tím zajistí příjemné a komfortní prostředí po celý rok. Vzhledem k výšce stropu, která činí 4,5 m na bytu naleznete i galerii, která je určená například pro vybudováno ložnice. Dále byt disponuje terasou o velikosti 5,5 m². K bytu přináleží kóje s vlastní přípojkou elektřiny.

Byt je součástí projektu Rezidence Za Bankou, jehož stavba započala v Prosinci 2024. Aktuálně jsou zde již vyhotoveny všechny jednotky včetně vnitřních příček, z velké části hotová fasáda, kde zbývá pouze část, kde se v následujících dnech bude budovat výtah. Dále se začíná s obkládáním koupelen. Dokončení projektu je v plánu na Q3/Q4 letošního roku.

V blízkosti se nachází veškerá občanská vybavenost, restaurace, obchody a zastávky MHD. Tato nemovitost je ideální pro ty, kteří hledají klidné a útulné bydlení v atraktivní lokalitě.

Cena
4 750 000 Kč Spočítat hypotéku
Poznámka k ceně
včetně provize RK
Aktualizováno
13. 4. 2026
Adresa
Břeclav
ID
A1.03
Stavba
Cihlová
Stav objektu
Po rekonstrukci
Vlastnictví
Osobní
Užitná plocha
44 m2
Třída energetické náročnosti
C - Úsporná
Ukazatel energetické náročnosti
85 kWh/m2 za rok

Máte zájem o tuto nemovitost?

Tímto, v souladu s nařízením Evropského parlamentu a Rady (EU) 2016/679, v platném znění, prohlašuji, že mi je alespoň 16 let a uděluji tak svůj souhlas se zpracováním zadaných údajů (jméno, telefon, e-mail, ip adresa) společnosti B3 Technology, s.r.o., IČ: 07330600, se sídlem Novostavby 126/23, 435 11 Lom (správce dat), za účelem předání dotazu z tohoto formuláře Vámi vybranému inzerentovi a zpětného kontaktování mé osoby. Osobní údaje bude správce zpracovávat manuálně i automaticky přímo prostřednictvím svých zaměstnanců. Informace předané tímto formulářem budou uloženy v databázi správce maximálně po dobu 10 let. Odvolání souhlasu s uložením a zpracováním poskytnutých dat lze e-mailem na info@realitymat.cz. V případě podezření na neoprávněné použití Vámi poskytnutých údajů máte právo předat podnět k šetření Úřadu pro ochranu osobních údajů. Více informací
Chystáte se prodat nemovitost?
Pomůžeme Vám!

Kontakt

Ing. Eliška Hřebíková

Ing. Eliška Hřebíková

Přihlášení k odběru

Nenechte si ujít nejnovější nabídky prodeje bytů 1+kk v Břeclavi.

Podobné nabídky