Prodej bytu 2+1, Praha - Nové Město, Ve Smečkách, 68 m2 (ID: 2132485)

Ve Smečkách, Praha, Nové Město


12 860 000 Kč /za nemovitost
HYPOTÉKA od 57 476 Kč /měs.
Regionální dodavatelé v Praze 1

Stěhovací služby

Výkup a prodej starého nábytku

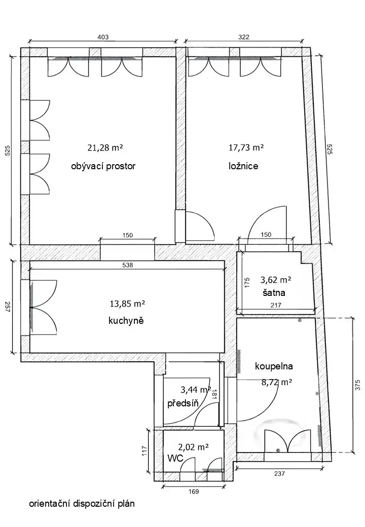
Popis

Světlý a plně vybavený byt 2+1 o podlahové ploše 68 m² se nachází ve 4. nadzemním podlaží domu v ulici Ve Smečkách, v samotném centru Prahy. Byt nabízí funkční a praktickou dispozici s dostatkem úložného prostoru, včetně samostatné šatny navazující na ložnici. Podlahy dřevěné - parkety / dlažba v koupelně a WC.

Teplo a ohřev vody zajišťuje moderní plynový kondenzační kotel. Dům má nově zrekonstruované plynové i elektrické rozvody. V bytě rozvody rekonstruovány cca před 20 lety. K bytu náleží také prostorný sklep v suterénu domu.

Vzhledem k tomu, že se dům nachází na území Městské památkové rezervace Praha, nevztahuje se na něj povinnost zpracování průkazu energetické náročnosti budovy (PENB), § 7 odst. 5 zákona č. 406/2000 Sb.

Cena
12 860 000 Kč /za nemovitost Spočítat hypotéku
Aktualizováno
11. 4. 2026
Adresa
Ve Smečkách, Praha, Nové Město
Stavba
Cihlová
Stav objektu
Velmi dobrý
Patro
4.
Vybaveno
Ano
Lokalita objektu
Centrum obce
Vlastnictví
Osobní
Užitná plocha
68 m2
Podlahová plocha
72 m2
Elektřina
230V
Plyn
Plynovod
Odpad
Veřejná kanalizace
Komunikace
Asfaltová
Telekomunikace
Telefon, Internet, Kabelové rozvody
Voda
Vodovod
Topné těleso
Radiátory
Zdroj topení
Plynový kondenzační kotel
Zdroj teplé vody
Plynový kondenzační kotel
Sklep
Výtah

Máte zájem o tuto nemovitost?

Tímto, v souladu s nařízením Evropského parlamentu a Rady (EU) 2016/679, v platném znění, prohlašuji, že mi je alespoň 16 let a uděluji tak svůj souhlas se zpracováním zadaných údajů (jméno, telefon, e-mail, ip adresa) společnosti B3 Technology, s.r.o., IČ: 07330600, se sídlem Novostavby 126/23, 435 11 Lom (správce dat), za účelem předání dotazu z tohoto formuláře Vámi vybranému inzerentovi a zpětného kontaktování mé osoby. Osobní údaje bude správce zpracovávat manuálně i automaticky přímo prostřednictvím svých zaměstnanců. Informace předané tímto formulářem budou uloženy v databázi správce maximálně po dobu 10 let. Odvolání souhlasu s uložením a zpracováním poskytnutých dat lze e-mailem na info@realitymat.cz. V případě podezření na neoprávněné použití Vámi poskytnutých údajů máte právo předat podnět k šetření Úřadu pro ochranu osobních údajů. Více informací
Chystáte se prodat nemovitost?
Pomůžeme Vám!

Kontakt

Jakub Hanák

Jakub Hanák

Přihlášení k odběru

Nenechte si ujít nejnovější nabídky prodeje bytů 2+1 v Praze 1.

Podobné nabídky