Prodej bytu 3+kk, Praha - Záběhlice, Hledíková, 54 m2

Hledíková, Praha, Záběhlice


Cena na vyžádání /za nemovitost
Získejte výhodnou HYPOTÉKU

(dohodou, cena včetně provize a právního servisu, včetně poplatků, včetně provize, včetně právního servisu)


Regionální dodavatelé v Praze 10

Stěhovací služby

Výkup a prodej starého nábytku

Popis

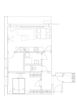
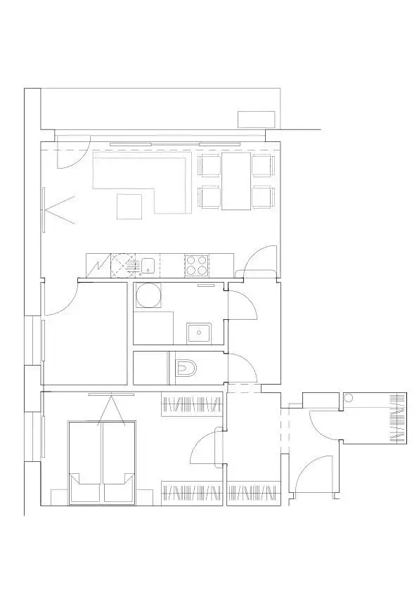
Nabízíme k prodeji světlý a kompletně zrekonstruovaný byt o dispozici 3+kk (54 m²) s prostornou lodžií (7 m²), situovaný v posledním 13. patře s krásným výhledem na oblast Hostivaře a okolní zeleň.

Byt prošel kompletní rekonstrukcí, díky které nabízí moderní a komfortní bydlení.

Hlavní přednosti bytu

- kompletní rekonstrukce včetně nových oken (plastová trojskla)
- klimatizace pro maximální komfort
- podlahové vytápění + radiátory
- nové bezpečnostní a protipožární vstupní dveře
- Walk - in sprchový kout
- lodžie 7 m² s otevřeným výhledem
- byt bez kuchyňské linky – možnost realizace dle vlastních představ

Dispozice a vybavení

- obývací pokoj s kuchyňským koutem 17,55 m²
- dvě samostatné pokoje 12,3 m² a 6 m²
- koupelna se sprchovým koutem, umyvadlem a přípravou na pračku 2,9 m²
- samostatné WC 1 m²
- komora v bytě 2 m²
- dostatek úložných prostor na chodbě 8,8 m²

Lokalita - Hostivař

- výborná dopravní dostupnost (tramvaj i autobus v blízkosti domu)
- nákupní centrum Vivo! Hostivař přes ulici
- ideální lokalita pro sport a volný čas (cyklostezky, běh)
- Hostivařská přehrada je v blízkosti - vhodné místo pro relax i sport
- rychlé napojení na výpadovky směr Hradec Králové a Mladá Boleslav

Parkování je možné přímo před domem.

Ideální volba pro vlastní bydlení i jako investice k pronájmu.

Doporučuji prohlídku

Cena
Cena na vyžádání Spočítat hypotéku
Poznámka k ceně
dohodou, cena včetně provize a právního servisu, včetně poplatků, včetně provize, včetně právního servisu
Aktualizováno
9. 4. 2026
Adresa
Hledíková, Praha, Záběhlice
ID
1160
Stavba
Panelová
Stav objektu
Velmi dobrý
Patro
12. z 12
Vybaveno
Ne
Lokalita objektu
Sídliště
Vlastnictví
Osobní
Užitná plocha
54 m2
Třída energetické náročnosti
D - Méně úsporná
Elektřina
230V
Plyn
Plynovod
Odpad
Veřejná kanalizace
Komunikace
Betonová, Asfaltová
Telekomunikace
Internet, Kabelová televize, Kabelové rozvody
Doprava
Silnice, MHD
Voda
Vodovod
Lodžie
Výtah
Bezbarierový přístup

Máte zájem o tuto nemovitost?

Tímto, v souladu s nařízením Evropského parlamentu a Rady (EU) 2016/679, v platném znění, prohlašuji, že mi je alespoň 16 let a uděluji tak svůj souhlas se zpracováním zadaných údajů (jméno, telefon, e-mail, ip adresa) společnosti B3 Technology, s.r.o., IČ: 07330600, se sídlem Novostavby 126/23, 435 11 Lom (správce dat), za účelem předání dotazu z tohoto formuláře Vámi vybranému inzerentovi a zpětného kontaktování mé osoby. Osobní údaje bude správce zpracovávat manuálně i automaticky přímo prostřednictvím svých zaměstnanců. Informace předané tímto formulářem budou uloženy v databázi správce maximálně po dobu 10 let. Odvolání souhlasu s uložením a zpracováním poskytnutých dat lze e-mailem na info@realitymat.cz. V případě podezření na neoprávněné použití Vámi poskytnutých údajů máte právo předat podnět k šetření Úřadu pro ochranu osobních údajů. Více informací
Chystáte se prodat nemovitost?
Pomůžeme Vám!

Kontakt

Mgr. Radka Váňová

Mgr. Radka Váňová

Přihlášení k odběru

Nenechte si ujít nejnovější nabídky prodeje bytů 3+kk v Praze 10.

Podobné nabídky