Pronájem kanceláře, Plzeň - Jižní Předměstí, Goldscheiderova, 60 m2

Goldscheiderova, Plzeň, Jižní Předměstí


12 000 Kč /za měsíc
Získejte výhodnou HYPOTÉKU

(+provize RK 15000,-Kč, + zálohy na energie)


Regionální dodavatelé v Plzni

Stěhovací služby

Pojištění a finance

Popis

Výhradně Vám zprostředkuji pronájem kancelářských prostor, které se nachází v plzeňské městské části Bory, ulice Goldscheiderova. Výhodou spatřuji umístění prostor v těsné blízkosti evropské silnice první třídy E53 spojující Plzeň s dálnicí D5 a s následnou snadnou dostupností do Německa. Pohodlné parkování v objektu nebo před objektem.

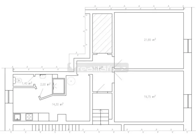
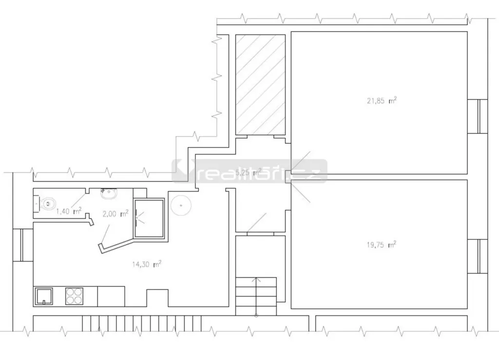
Kanceláře se nachází v budově, v uzavřeném areálu, kde sídlí další firmy. K dispozici nabízím prostory o celkové výměře 64,55 m2. Z toho kancelář č. 1 má výměru 21,85 m2 a kancelář č. 2 výměru 19,75 m2. Dále je zde kuchyňka a sociální zázemí. (viz půdorys prostor).

Vytápění kanceláří je zajištěno dálkovým vytápěním. Ohřev vody zajišťuje elektrický bojler. Rozvod kabelů po kancelářích. Internet si nájemce zajišťuje vlastním nákladem.

Přístupová cesta je zpevněná, asfaltová, osvětlená.

Rozpis plateb: nájemné 13.500,-Kč/měsíčně, režie: vytápění, elektřina a voda dle spotřeby nájemce, jistota: 2x nájemné (jednorázově), provize RK: je 15.500,-K (jednorázově).

Ihned k nastěhování.

Prohlídku a bližší informace u makléřky Michaely Bastlové.

Cena
12 000 Kč /za měsíc
Poznámka k ceně
+provize RK 15000,-Kč, + zálohy na energie
Aktualizováno
18. 5. 2026
Adresa
Goldscheiderova, Plzeň, Jižní Předměstí
ID
1002
Stavba
Cihlová
Stav objektu
Velmi dobrý
Vybaveno
Ano
Typ objektu
Patrový
Lokalita objektu
Okraj obce
Užitná plocha
60 m2
Zastavěná plocha
64 m2
Podlahová plocha
65 m2
Třída energetické náročnosti
G - Mimořádně nehospodárná
Elektřina
230V
Odpad
Veřejná kanalizace
Telekomunikace
Telefon, Internet, Kabelové rozvody
Doprava
Dálnice, MHD, Autobus
Voda
Vodovod
Parkování

Máte zájem o tuto nemovitost?

Tímto, v souladu s nařízením Evropského parlamentu a Rady (EU) 2016/679, v platném znění, prohlašuji, že mi je alespoň 16 let a uděluji tak svůj souhlas se zpracováním zadaných údajů (jméno, telefon, e-mail, ip adresa) společnosti B3 Technology, s.r.o., IČ: 07330600, se sídlem Novostavby 126/23, 435 11 Lom (správce dat), za účelem předání dotazu z tohoto formuláře Vámi vybranému inzerentovi a zpětného kontaktování mé osoby. Osobní údaje bude správce zpracovávat manuálně i automaticky přímo prostřednictvím svých zaměstnanců. Informace předané tímto formulářem budou uloženy v databázi správce maximálně po dobu 10 let. Odvolání souhlasu s uložením a zpracováním poskytnutých dat lze e-mailem na info@realitymat.cz. V případě podezření na neoprávněné použití Vámi poskytnutých údajů máte právo předat podnět k šetření Úřadu pro ochranu osobních údajů. Více informací
Chystáte se prodat nemovitost?
Pomůžeme Vám!
Theleadway banner

Kontakt

DiS. Michaela Bastlová

DiS. Michaela Bastlová

Přihlášení k odběru

Nenechte si ujít nejnovější nabídky pronájmu kanceláří v Plzni.

Podobné nabídky