Prodej bytu 2+1, Hrádek nad Nisou, Zlatá výšina, 60 m2 (ID: 2129067)

Zlatá výšina, Hrádek nad Nisou


4 500 000 Kč /za nemovitost
HYPOTÉKA od 20 112 Kč /měs.
Regionální dodavatelé v Hrádku nad Nisou

Rekonstrukce

Úklidové služby

Popis

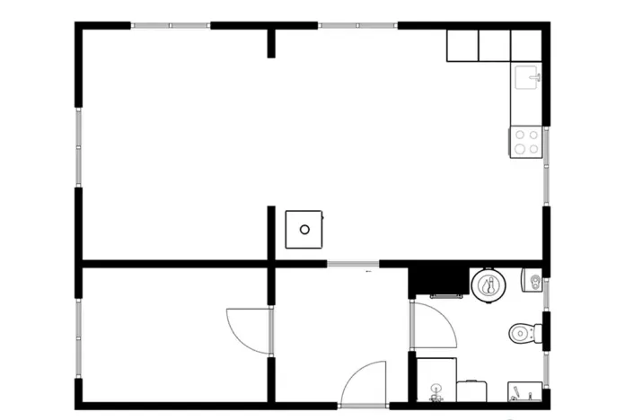
Prodej bytu 2+1 o výměře 60m2 v klidné lokalitě nedaleko centra města Hrádek nad Nisou. Dům je
zděný s okrasnou zahradou, která je kolem celého domu. V domě jsou 4 stejně velké bytové
jednotky. Celý dům je podsklepený, k bytu patří velký sklep a jedná místnost na půdě, kde je i okno.
Dále je zde společná půda i společný sklep.
Dům je ve velmi dobrém stavu, společenství je nezadlužené. Společné rozvody, společná chodbová
elektřina jsou po rekonstrukci, v celém domě jsou nová plastová okna a je zde nová střecha. Kolem
domu je společná zahrada s možností posezení a sušení prádla.
Byt je ve 2.patře s výhledem na město. Po vstupu ze společné chodby je menší předsíň. Z předsíně je
vstup do koupelny s WC, ložnice a kuchyně. V koupelně je elektrokotel, kterým se topí a ohřívá se
voda. Je zde WC, místo na pračku, sprchový kout a umyvadlo. V koupelně jsou 2 menší okna a díky
nim je zde denní světlo. Ložnice je orientována na východ a jsou zde parketové podlahy. Kuchyň je
spojena s obývacím pokojem. Je zde kuchyňská linka a díky několika oknům je zde hodně světla
sluníčka. Jsou zde krbová kamna na dřevo. Zde jsou také parketové podlahy. Byt prošel rekonstrukcí
topení, elektroinstalace. Po drobných opravách je byt připravený k bydlení.
U domu je garáž s přístupem z ulice o zastavěné ploše 31m2 a patří stejnému majiteli.
Před domem je parkování, dětská hřiště, spoustu zeleně. V blízkosti je veškerá občanská vybavenost,
zastávka MHD, školka, škola, nádraží, nákupní středisko a zdravotní středisko. Dobré napojení na
rychlostní komunikaci do Liberce. Byt lze financovat hypotékou, doporučujeme prohlídku.

Cena
4 500 000 Kč /za nemovitost Spočítat hypotéku
Aktualizováno
8. 4. 2026
Adresa
Zlatá výšina, Hrádek nad Nisou
ID
785
Stavba
Cihlová
Stav objektu
Dobrý
Patro
3. z 4
Lokalita objektu
Klidná část obce
Vlastnictví
Osobní
Užitná plocha
60 m2
Třída energetické náročnosti
G - Mimořádně nehospodárná
Elektřina
230V
Odpad
Veřejná kanalizace
Topení
Lokální tuhá paliva, Ústřední elektrické
Komunikace
Asfaltová
Doprava
Silnice, Autobus
Topné těleso
Radiátory, Kamna
Zdroj topení
Elektrokotel
Zdroj teplé vody
Bojler - elektro
Garáž
Sklep
Výtah
Bezbarierový přístup
Parkování

Máte zájem o tuto nemovitost?

Tímto, v souladu s nařízením Evropského parlamentu a Rady (EU) 2016/679, v platném znění, prohlašuji, že mi je alespoň 16 let a uděluji tak svůj souhlas se zpracováním zadaných údajů (jméno, telefon, e-mail, ip adresa) společnosti B3 Technology, s.r.o., IČ: 07330600, se sídlem Novostavby 126/23, 435 11 Lom (správce dat), za účelem předání dotazu z tohoto formuláře Vámi vybranému inzerentovi a zpětného kontaktování mé osoby. Osobní údaje bude správce zpracovávat manuálně i automaticky přímo prostřednictvím svých zaměstnanců. Informace předané tímto formulářem budou uloženy v databázi správce maximálně po dobu 10 let. Odvolání souhlasu s uložením a zpracováním poskytnutých dat lze e-mailem na info@realitymat.cz. V případě podezření na neoprávněné použití Vámi poskytnutých údajů máte právo předat podnět k šetření Úřadu pro ochranu osobních údajů. Více informací
Chystáte se prodat nemovitost?
Pomůžeme Vám!

Kontakt

Vanda Hrubešová

Vanda Hrubešová

Přihlášení k odběru

Nenechte si ujít nejnovější nabídky prodeje bytů 2+1 v Hrádku nad Nisou.

Podobné nabídky