Prodej obchodního prostoru, Brno - Zábrdovice, Koliště, 177 m2

Koliště, Brno, Zábrdovice


12 120 000 Kč /za nemovitost
HYPOTÉKA od 54 169 Kč /měs.
Regionální dodavatelé v Brně

Pojištění a finance

Popis

Komerční prostor v centru Brna s potenciálem showroomu či reprezentativního sídla firmy – 177 m², ulice Koliště

Hledáte prostor, který nebude jen „místem k podnikání“, ale skutečnou vizitkou vaší značky?

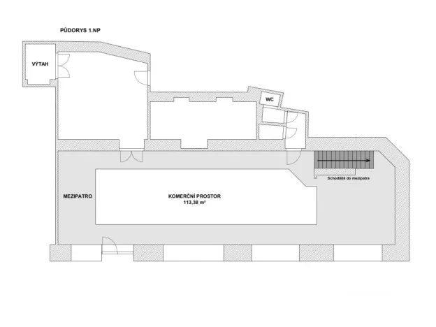
Nabízíme k prodeji komerční prostor o výměře 177 m² + mezonetový prostor, na prestižní adrese v širším centru Brna – ulice Koliště. Lokalita s vysokou frekvencí pohybu a výbornou dostupností dává tomuto prostoru výrazný obchodní potenciál.

Proč právě tento prostor?

- velkorysá plocha 177 m² + mezonetový prostor o výměře 105 m²
- výborná viditelnost a dostupnost
- možnost úpravy přesně podle vašich potřeb

Ideální pro:
- design showroom
- prodejnu
- studio / atelier
- reprezentativní kanceláře

Potenciál prostoru:

Prostor je aktuálně ve stavu vhodném k rekonstrukci, což vám dává jedinečnou příležitost vytvořit interiér přesně podle vaší značky a konceptu.

Díky své dispozici a výšce nabízí ideální základ pro moderní, vzdušný prostor s výrazným designovým charakterem.

Lokalita, která prodává:

Ulice Koliště představuje strategické spojení centra města s výbornou dopravní dostupností. V okolí se nachází kompletní občanská vybavenost, kancelářské budovy i obchodní prostory.

Prostor je možné zakoupit samostatně, nebo v kombinaci s vedlejší jednotkou a vytvořit tak velkorysý celek.

Neváhejte mě kontaktovat – ráda vám prostory osobně představím a zodpovím veškeré dotazy.

Cena
12 120 000 Kč /za nemovitost Spočítat hypotéku
Aktualizováno
8. 4. 2026
Adresa
Koliště, Brno, Zábrdovice
ID
193
Stavba
Cihlová
Stav objektu
Dobrý
Vybaveno
Ne
Typ objektu
Přízemní
Druh objektu
Rohový
Lokalita objektu
Centrum obce
Užitná plocha
177 m2
Odpad
Veřejná kanalizace
Topení
Ústřední dálkové
Komunikace
Asfaltová
Doprava
Vlak, Dálnice, Silnice, MHD
Voda
Vodovod
Topné těleso
Radiátory
Výtah

Máte zájem o tuto nemovitost?

Tímto, v souladu s nařízením Evropského parlamentu a Rady (EU) 2016/679, v platném znění, prohlašuji, že mi je alespoň 16 let a uděluji tak svůj souhlas se zpracováním zadaných údajů (jméno, telefon, e-mail, ip adresa) společnosti B3 Technology, s.r.o., IČ: 07330600, se sídlem Novostavby 126/23, 435 11 Lom (správce dat), za účelem předání dotazu z tohoto formuláře Vámi vybranému inzerentovi a zpětného kontaktování mé osoby. Osobní údaje bude správce zpracovávat manuálně i automaticky přímo prostřednictvím svých zaměstnanců. Informace předané tímto formulářem budou uloženy v databázi správce maximálně po dobu 10 let. Odvolání souhlasu s uložením a zpracováním poskytnutých dat lze e-mailem na info@realitymat.cz. V případě podezření na neoprávněné použití Vámi poskytnutých údajů máte právo předat podnět k šetření Úřadu pro ochranu osobních údajů. Více informací
Chystáte se prodat nemovitost?
Pomůžeme Vám!
Theleadway banner

Kontakt

Pavla Šimková

Pavla Šimková

Přihlášení k odběru

Nenechte si ujít nejnovější nabídky prodeje obchodních prostor v Brně.

Podobné nabídky