Pronájem kanceláře, Brno, Cejl, 23 m2 (ID: 2128904)

Cejl, Brno


7 624 Kč /za měsíc
Získejte výhodnou HYPOTÉKU

(+ DPH, + provize)


Regionální dodavatelé v Brně

Popis

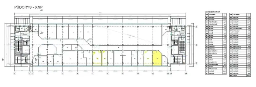
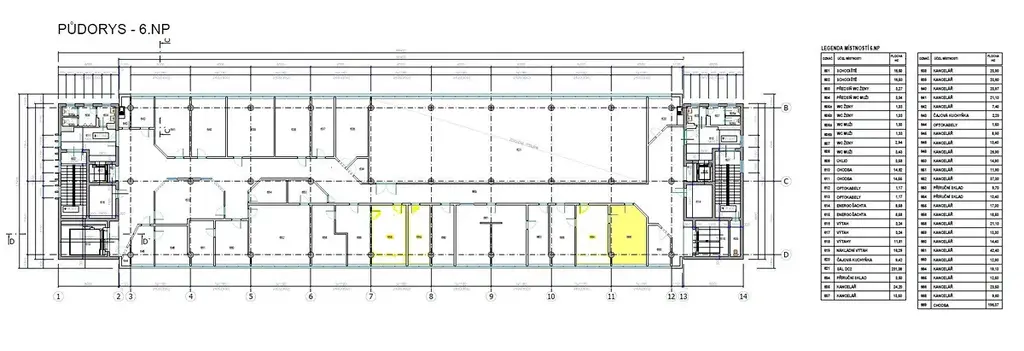
Nabízíme k pronájmu kancelářské prostory o velikosti 23,50 m2 v 6.NP komerčního objektu na ulici Cejl. Kancelář má velká plastová okna orientovaná na východ. Prostory jsou ve standardním stavu, na podlaze je koberec. Prostory se pronajímají bez vybavení.
V objektu jsou 3 osobní a jeden nákladní výtah. Sociální zázemí je na patře společné pro ostatní kanceláře.
Objekt se nachází v uzavřením a hlídaném areálu, přístupném 24 hod/7 dní týdnu.
Parkování je možné v areálu za poplatek.
Prostor je vhodný pro obchodní firmu, e-shop, ateliér a ev. podobnou firmu.

Pro více informací nebo sjednání prohlídky je Vám k dispozici realitní makléřka.

Cena:

- Nájemné, topení, vodné, stočné, služby areálu – 7.624,-Kč/ měs.
- Jistota – 2 x měsíční nájemné
- Parkovací karta pro nájemce - 1.500,-Kč/ měs.
- Uvedené ceny jsou bez DPH
- Provize za služby realitního zprostředkovatele

Cena
7 624 Kč /za měsíc
Poznámka k ceně
+ DPH, + provize
Aktualizováno
8. 4. 2026
Adresa
Cejl, Brno
ID
SR537
Stavba
Skeletová
Stav objektu
Dobrý
Patro
6.
Vybaveno
Ne
Lokalita objektu
Rušná část obce
Užitná plocha
23 m2
Třída energetické náročnosti
G - Mimořádně nehospodárná
Elektřina
230V
Telekomunikace
Internet
Doprava
Silnice, MHD
Výtah
Bezbarierový přístup

Máte zájem o tuto nemovitost?

Tímto, v souladu s nařízením Evropského parlamentu a Rady (EU) 2016/679, v platném znění, prohlašuji, že mi je alespoň 16 let a uděluji tak svůj souhlas se zpracováním zadaných údajů (jméno, telefon, e-mail, ip adresa) společnosti B3 Technology, s.r.o., IČ: 07330600, se sídlem Novostavby 126/23, 435 11 Lom (správce dat), za účelem předání dotazu z tohoto formuláře Vámi vybranému inzerentovi a zpětného kontaktování mé osoby. Osobní údaje bude správce zpracovávat manuálně i automaticky přímo prostřednictvím svých zaměstnanců. Informace předané tímto formulářem budou uloženy v databázi správce maximálně po dobu 10 let. Odvolání souhlasu s uložením a zpracováním poskytnutých dat lze e-mailem na info@realitymat.cz. V případě podezření na neoprávněné použití Vámi poskytnutých údajů máte právo předat podnět k šetření Úřadu pro ochranu osobních údajů. Více informací
Chystáte se prodat nemovitost?
Pomůžeme Vám!

Kontakt

Ludmila Lejsková

Ludmila Lejsková

Přihlášení k odběru

Nenechte si ujít nejnovější nabídky pronájmu kanceláří v Brně.

Podobné nabídky