Pronájem kanceláře, Brno, 61 m2 (ID: 2126010)

Brno, Černovice


22 041 Kč /za měsíc
Získejte výhodnou HYPOTÉKU

(+ zálohy energie 2.566Kč a služby objektu 2.639Kč/měsíc, bez DPH, včetně provize)


Regionální dodavatelé v Brně

Popis

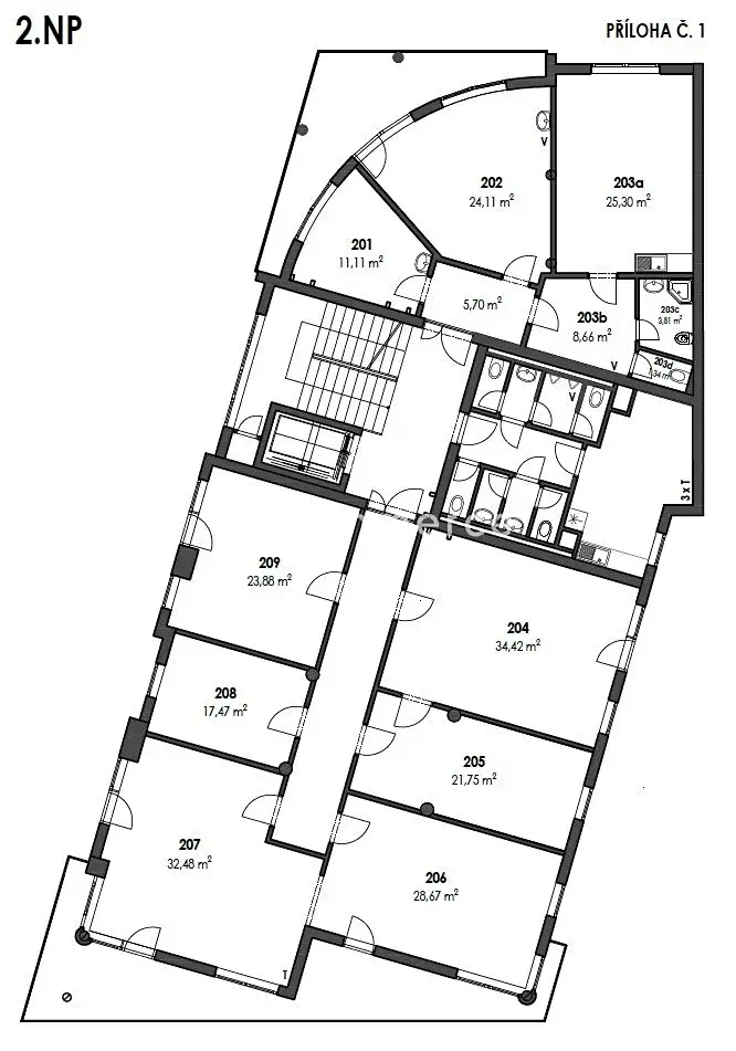
Nabízíme pronájem dvou propojených světlých klimatizovaných kanceláří v 2NP administrativní budovy, která se nachází v blízkosti Brna-střed na hranici čtvrti Brno Černovice. Kanceláře mají velikost 32,48m² a 28,67m2 a obě dvě mají vstup na prostorný balkon.
Ke kanceláři je možné pronajmout vyhrazené parkovací místo v krytých garážích za cenu 2.500Kč + dph (není podmínkou).
Budova je plně klimatizována, vybavená moderními systémy řízení a provozu, bezpečnosti, moderním výtahem a dostatečným počtem parkovacích míst zaručující parkovaní jak pro uživatele objektu, tak pro jeho návštěvníky. Veřejné parkování je zdarma, zóna "C". Kancelář je k dispozici od 01/08/2026, ale nájemce ji může po dohodě uvolnit i dříve, prohlídky možné ihned. Možné i pro neplátce DPH.
Více informací Vám rádi poskytneme v RK.
V přiloženém půdorysu se jedná o kanceláře 206+207 a terasu.

Cena
22 041 Kč /za měsíc
Poznámka k ceně
+ zálohy energie 2.566Kč a služby objektu 2.639Kč/měsíc, bez DPH, včetně provize
Aktualizováno
8. 4. 2026
Adresa
Brno, Černovice
ID
000156-28
Stavba
Cihlová
Stav objektu
Velmi dobrý
Patro
2. z 5
Vybaveno
Ne
Lokalita objektu
Centrum obce
Užitná plocha
61 m2
Třída energetické náročnosti
G - Mimořádně nehospodárná
Elektřina
230V
Odpad
Veřejná kanalizace
Komunikace
Asfaltová
Telekomunikace
Telefon, Internet, Kabelové rozvody, Ostatní
Doprava
Vlak, Dálnice, Silnice, MHD, Autobus
Voda
Místní zdroj vody
Výtah
Parkování

Máte zájem o tuto nemovitost?

Tímto, v souladu s nařízením Evropského parlamentu a Rady (EU) 2016/679, v platném znění, prohlašuji, že mi je alespoň 16 let a uděluji tak svůj souhlas se zpracováním zadaných údajů (jméno, telefon, e-mail, ip adresa) společnosti B3 Technology, s.r.o., IČ: 07330600, se sídlem Novostavby 126/23, 435 11 Lom (správce dat), za účelem předání dotazu z tohoto formuláře Vámi vybranému inzerentovi a zpětného kontaktování mé osoby. Osobní údaje bude správce zpracovávat manuálně i automaticky přímo prostřednictvím svých zaměstnanců. Informace předané tímto formulářem budou uloženy v databázi správce maximálně po dobu 10 let. Odvolání souhlasu s uložením a zpracováním poskytnutých dat lze e-mailem na info@realitymat.cz. V případě podezření na neoprávněné použití Vámi poskytnutých údajů máte právo předat podnět k šetření Úřadu pro ochranu osobních údajů. Více informací
Chystáte se prodat nemovitost?
Pomůžeme Vám!

Kontakt

Mgr. Ilona Van Der Wal

Mgr. Ilona Van Der Wal

Přihlášení k odběru

Nenechte si ujít nejnovější nabídky pronájmu kanceláří v Brně.

Podobné nabídky